夫妻买下48㎡带阁楼二手房,装出3室1厅+书房,5口之家太幸福了!老破小改造成功逆袭的经典案例深受刚需家庭的欢迎,今天小编就再带大家欣赏一个5口之家改造老旧二手房的家装设计,本身是一套48平米一室带给小阁楼的老房子,经过重新改造,竟然装出3室1厅和一个小书房,并轻松住下一家5口人,太不可思议了!【 卡座式|夫妻买下48㎡带阁楼二手房,装出3室1厅+书房,5口之家太幸福了!】

一层平面布置图

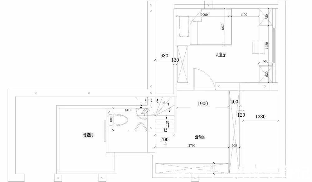
阁楼平米布置图这套房子加上阁楼也不过60平米多一点,小夫妻和5岁儿子及两位老人居住,改造的重点主要在一层公共区域,将厨房安排在过道内,餐厅做了卡座式,客厅间隔出老人房,让一层变两室,增加了居住功能。二层阁楼布局也重新调整,上楼就是小书房,里侧是儿童房,娱乐活动区十分宽敞,让孩子在娱乐、学习中健康成长。小家整修时尚舒适,温馨实用,5口之家太幸福了!

入户玄关

厨房从入户门进来是一个狭长的走廊通道,门口右手边定制了一个白色实木玄关鞋柜,用于收纳鞋子和置放随手小物品。前面的磨砂玻璃对开门内是卫生间的位置,对面是开放式厨房区域,定做了一排白色实木橱柜,底部嵌入洗衣机,旁边嵌入冰箱,让厨房空间得到充分利用。吊柜下增加隐形灯带,方便加工食材,整体收纳组合将厨房整理得井井有条。几何造型的小花砖地面与室内实木地板形式自然区域风格,文艺而有个性。

餐厅卡座式餐厅在厨房通道右侧转角位置,长条形实木餐桌搭配储物式卡座和两把小餐椅,与旁边到顶的白色餐边柜组合,布局紧凑,不占过道空间,温馨舒适实用,满足一家5口平时用餐交流的需要。

次卧餐厅对面的黑色边框玻璃隔断、移门内是次卧,通过内侧布遮挡隐私,这也是老人房,虽不常住,但老两口还在偶尔过来看孙子的,得有一个独立居住空间。

房间内定制了榻榻米床+置物搁架的组合设计,铺上整洁的床品,非常温馨舒适。平时老人不在这里时还可当客厅用,让功能更灵活多变。

主卧餐厅侧门的白色实木门内是主卧的位置,布置得舒适温馨,实木大床搭配整洁的纯白床品,与灰色窗帘和烟粉色衣柜拉帘组合,营造出宁静温馨健康自然的睡眠氛围。

旋转楼梯冰箱右侧是黑色钢制结构的旋转楼梯,通向二层小阁楼,坚固安全,只占1米空间。

二层书房从楼梯上到二层,是一个宽敞的小书房,依照天棚规划出带斜角的一面墙大书柜,里面整齐地摆满了各类书籍和儿童读物,搭配一个折叠实木书桌,让孩子从小养成阅读的良好习惯。书房内宽敞的地面空间也让孩子平时游戏更自如。
推荐阅读
- 贷款|5月起,“2道铁令”,今后这1种买房方式再也行不通了
- 饱和度|173㎡轻奢新中式,古典和现代的碰撞,唯美浪漫!
- 小钱|游点好笑!收手机的新方式,一抓一个准!这老师怕是柯南看多了?
- 卫生间|129平现代美式三居室,打造出一个舒适又温馨的美式家
- 墙面|过道能''挤''出空间 5种方式帮你充分利用每一寸,档次蹭蹭上涨
- 灵魂深处|全屋定制案例|儒雅新中式,展现灵魂深处的东方情怀
- |73㎡复古风两居室,年轻夫妻的高品质生活
- 胡润|窗边空荡荡有些浪费,找俩床头柜拼个卡座,“凹”字形挺舒服!
- |中式庭院,这才是最让我们心动的院子
- 邮储银行|邮储银行:推进“一站式”不动产抵押登记服务
