一套35㎡小公寓,原本是只带卫生间的开间格局,经过TsaiDesign的翻新,用一系列定制柜将其改造为舒适的一室一厅格局,同时也拥有了独立厨卫,还有隐藏式餐桌,兼具居家与办公属性,可以随心切换。
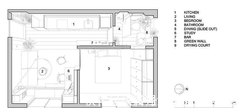
平面图

室内通过轻体墙与定制柜进行分区,客厅、卧室、卫生间各有一扇窗户,半开放式厨房从客厅和卫生间借光。

入户就是客厅,没有单独隔出玄关,只通过木饰面与客厅区分开,入户门的黑色门框在木饰面中添加了几分极简风。

入户门背后是定制的开放收纳柜,包含了衣帽架、酒架和鞋架等功能,紧凑实用~

进门正对的是半开放式厨房,一整面墙的定制柜体承担了90%以上的厨房收纳,连冰箱和洗衣机都包了进去,浅木色柜门与顶地面的木饰面颜色接近,减轻高柜的压迫感。

从客厅看向厨房,极简风橱柜的操作区用了大片的黑色,黑色的墙面、台面和黑色的水槽龙头,在视觉上增加延伸感,与入户门框相呼应。

厨房区没有窗户,因此在台面上方加装了一条灯带,保证整个操作区的光照。

厨房另一侧是卫生间,通过电控玻璃墙隔开,透光不透影,为厨房借来自然光,又很好地保护了隐私。

清玻璃的状态,可以清楚地看到卫生间的窗户和绿植墙。

橱柜对面放了窄窄的矮柜和几块搁板,搁板后面装了灯带,成就一个小小的bar,咖啡美酒和杯子通通放在这里,还可以收留厨房小电器。


bar和卧室之间的墙体藏了一个木制隔断,将隔断拉出来,打开就是一个简易餐桌,折叠餐椅则藏在电视墙里,用的时候拿出来,不用的时候就隐形~

客厅全貌,轻型的木质沙发组合,屋主的自行车安排在沙发墙上,靠窗做了一圈柜子,刚好形成飘窗。

靠窗的柜子用了镜面柜门,在视觉上显得更开阔~

电视藏在柜子里,需要看的时候把柜门打开叠上去即可。

电视下面的木板支起来就是书桌,侧面的柜子里则藏了电脑,打开就可以在家办公。
推荐阅读
- 屋主|56㎡小户型老房改造,小而美的设计!
- 现代风|168㎡现代风,带着浓郁的归属感与愉悦感
- 深色|155㎡简约风,承载着三代人的生活,不花哨让家务少一半
- 混淆感|146㎡北欧经典白色三居室,诠释令人心醉的优雅
- 饱和度|173㎡轻奢新中式,古典和现代的碰撞,唯美浪漫!
- 背景墙|97㎡现代风,以时尚打造空间,以新颖突出特点
- 地板|160㎡四居室,玄关比我家卧室都大,这才是真正的低调奢华有内涵
- 棚户区改造|开盘预告|合肥又有6盘要加推,均价1.39-2.54万/㎡全都有
- 小房间|参观140㎡大婚房,朋友都夸餐边柜有档次,我却更喜欢主卧的飘窗
- |73㎡复古风两居室,年轻夫妻的高品质生活
