当日常生活变得秩序井然、物质丰富时,人们对环境的向往,便转到了另一个方向,那就是家的装修;轻奢风是以极简主义为基调,通过一些精致、高档的软装元素来凸显质感,处处透露着不俗的品味;轻奢风格的这种简约与现代,北欧风不同,讲究的是精致、低调和内敛,比普通更考究,比奢华更自由,每个人的家在装修以后都会成为唯一。
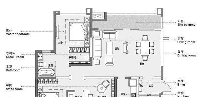
各个空间户型方正,方便室内家具布置;卧室厨卫等各个功能区的面积大小都比较合理,居住体验便利,整体舒适度高。
玄关处,复古的玄关柜及爱马仕橙色的装饰,明艳四方;插花与装饰雕塑,丰富了人的感官,金属、大理石与壁布之间形成冷暖对比,赋予空间另一种新生。#轻奢风格#
一杯咖啡、一本书,享受舒适的居家时光,午后暖阳慵懒地洒入、一切都变得温暖起来。装修可以呈现出主人高雅的生活环境,精致的生活品质,令身处国际都市的现代人所追求,为空间注入一股明媚,生气悠长。
本案的轻奢风格设计,色调成为主线,客厅空间的爱马仕橙色,将奢华氛围带入。它符合人们对现代生活的审美需求,其艳丽张扬、经典时尚的标签,成为永恒不变的奢侈品味,陪你奢华过一生。
座椅、茶几位于客厅一隅,辅以布艺的材质,自成一景。幽幽绿植,传达着生命的活力与艺术的肌理,在开放的空间里释放温婉灵动的气质。
金属与皮革的配搭,是现代感混搭的时尚新宠,而细节处的小心机,将轻奢进化到极致,装修效果总能让更多的业主喜欢上轻奢风。
餐厅是浪漫的,希望在这里用餐时优雅又有一丝格调,在这里享用烹饪的早餐,美好的一天从这里开始。
客餐厅一体,最大程度的地引用了客厅的自然光线,蕴含现代气息且充满韵味的的餐椅,以及饰品细节的摆放陈列,使空间整体通透敞亮大气严谨。
多功能房充满设计感的同时尽展古典与现代碰撞的美学,展现着轻奢的格调。让办公不再是窝在房间里的苦闷工作,同时也能更多地和家人互动与交流。
橘色配调的技巧,从颜值走进温度,藏在幻想里的一丝俏皮,惊现一瞥。
卫生间,质感由内而外的流露,方形台盆搭配金属质感的龙头,让空间更显大气的质感魅力。
儿童房巧妙的运用床品、挂画、墙布、个性的灯饰,营造空间别致的时尚韵味,通过色彩的深浅对比,拉伸空间的层次感,也使整体空间更加生动、活泼。
私密的卧室空间里,宁静、尊贵的优雅情调,在工作纷繁奔波后,留出一抹能够凝神静听的庇护所;衣帽间被设置于房间入口处,相信女主人会特别的喜欢。
推荐阅读
- 现代风|168㎡现代风,带着浓郁的归属感与愉悦感
- 深色|155㎡简约风,承载着三代人的生活,不花哨让家务少一半
- 饱和度|173㎡轻奢新中式,古典和现代的碰撞,唯美浪漫!
- 助贷|助贷咨询:企业抵押贷款常见风险
- 背景墙|97㎡现代风,以时尚打造空间,以新颖突出特点
- 三居室|118平现代风三居室,一个简单而纯粹还原生活色彩的家
- 简单感|现实的平衡取舍,才是生活之道!143平现代风格设计欣赏!
- 宋智雅|不只穿假货!宋智雅豪宅全是租的,公主风奢华住所都是TA在出钱供
- 木纹板|装修案例欣赏:小北欧风格的居家设计,简洁的同时又不失温馨感!
- |73㎡复古风两居室,年轻夫妻的高品质生活
