在深圳这样超一线城市能够拥有一套房子是很多人的梦想,哪怕买不了大房子,也愿意买个小户型,对于很多朋友来说,房子大小不重要,只是为了拥有一个安身之所,组建一个幸福的家庭,生一个可爱宝宝,陪着他们一起长大。

客厅
今天齐家敏敏给大家分享一套49㎡小户型装修案例,我觉得最棒的地方,是经过改造后,室内拥有超大储物空间,整个空间看起来也整洁有序,她家装修前期时候,就已经把收纳空间规划好了,女主是生怕因为收纳不够原因,后期再添置新家具,显得空间更加拥挤,造成不必要麻烦。我们一起来看看她家49㎡户型如何拥有30平米的收纳空间,卫生间也很有科技感,人漂亮不说,家也这么好看!

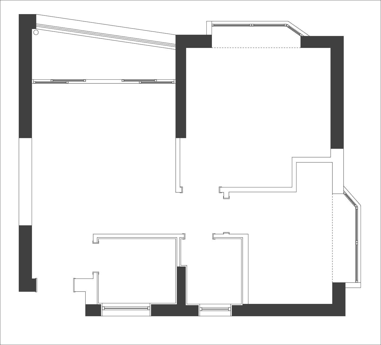
原始户型图

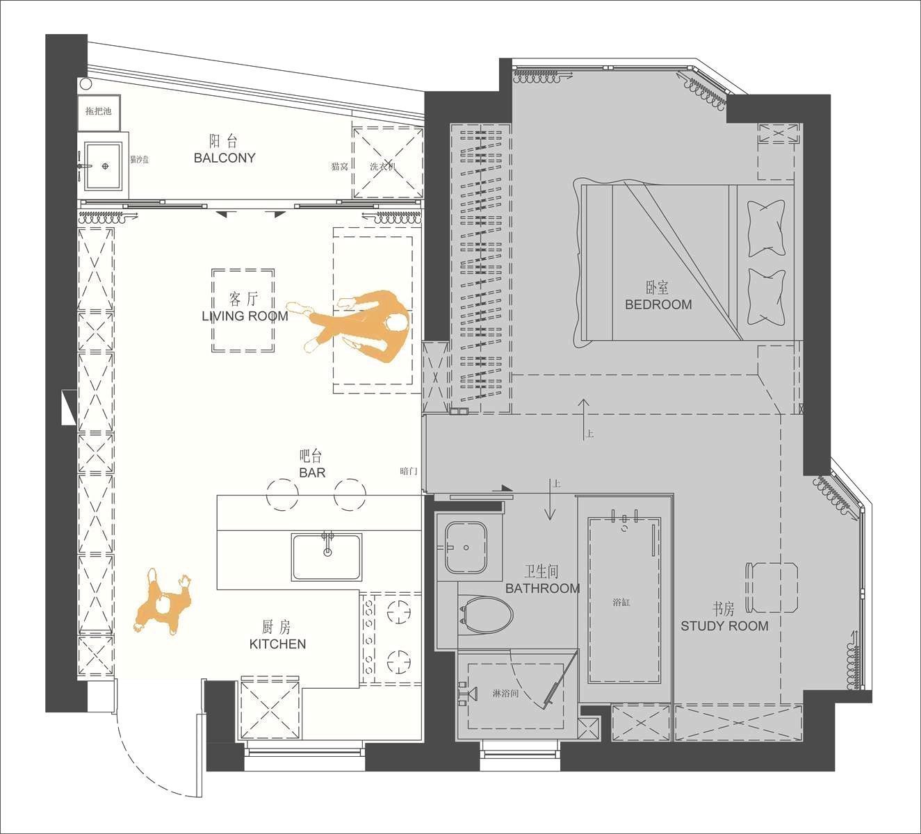
平面设计图
原本是两居室户型被女主人改造后成一个豪华的单身公寓,室内面积恰巧分开成2块相等的面积,一部分作为女主的公共区域,集客厅、餐厅、厨房为一体,电视背景墙和玄关连在一起形成一个超大收纳空间,干净整洁,另一部分是女主的私密区,将原本两间卧室打通,设计成一个多功能房,阶梯式榻榻米床,和窗台在一个水平线上,视觉延伸过去,舒服又美观。

玄关
入户即是玄关,从进门一直到阳台,整面墙的收纳柜设计,柜子采用白色柜门搭配原木色柜体拼接,封闭和敞开组合形式,更加美观实用,镂空区安装收纳界的王者“洞洞板”,上面灵活安装木棒和置物架,可以满足不同的需要。底部挑空设计,为了方便放鞋子,柜子里面都安装隐藏式灯带,营造温馨的氛围,让生活更加方便和舒适。
【 卫生间|她家49㎡,一个人生活,储物空间每一处都有,不拥挤还美观,真赞】

客厅
玄关柜挨着是客厅的收纳柜,无拉手的柜门让空间显得更加整齐,美观大方。顶部安装嵌入式空调,通过透气百叶窗进行调节室内温度,视觉上统一性更强,外观流畅线条,简约又时尚,镂空部分,放置一些精致摆件和陈设品,丰富了空间视觉效果。

客厅
客厅的休息区略显狭小,靠墙摆放一个灰色布艺沙发,和一个长形圆角的茶几,一个人居住也刚好够用,舒服又耐看。整个空间大量采用白色和原木色为主,营造温馨自然的氛围,再加入一点点黑色或者灰色块点缀,成为视线中亮点,经典的黑白灰组合,凸显出女主人高品质的生活方式。

客厅
从上面看,客厅的茶几选择是带有储物功能的,打开后,里面可以收纳很多东西,随时随地让桌面保持干净整洁,视觉极度舒适。
推荐阅读
- 屋主|56㎡小户型老房改造,小而美的设计!
- 现代风|168㎡现代风,带着浓郁的归属感与愉悦感
- 深色|155㎡简约风,承载着三代人的生活,不花哨让家务少一半
- 混淆感|146㎡北欧经典白色三居室,诠释令人心醉的优雅
- 饱和度|173㎡轻奢新中式,古典和现代的碰撞,唯美浪漫!
- 背景墙|97㎡现代风,以时尚打造空间,以新颖突出特点
- 地板|160㎡四居室,玄关比我家卧室都大,这才是真正的低调奢华有内涵
- 卫生间|129平现代美式三居室,打造出一个舒适又温馨的美式家
- 棚户区改造|开盘预告|合肥又有6盘要加推,均价1.39-2.54万/㎡全都有
- 收纳|去邻居家参观才知道,卫生间不装柜子这样设计,防潮耐脏好清洁
