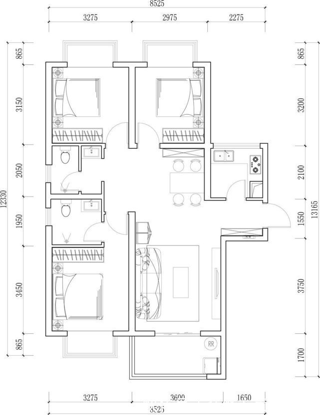
装修是费尽心思的过程,小编看到这套三居室的房屋应该能让人少走许多弯路,112平米的空间采用装修,8万的装修预算就搞定了全屋装修,现代风的装修风格特别符合现今80、90后的喜好。
客厅是全家活动、娱乐、休闲、团聚、就餐等活动场所,又是接待客人、对外联系交往的社交活动空间。在满足起居室多功能需要的同时,应注意整个起居室的协调统一;各个功能区域的局部美化装饰,应注意服从整体的视觉美感。

开敞、有各自功能独立的公共活动区,增加了更多家人之间的互动、其乐融融的享受。
卧室床怎么摆放?一般来说舒适是卧室最大的诉求,好的卧室能给你带来一个舒适、深度的睡眠。而床是卧室的整个中心,它的摆放影响到整间卧室的格局,我们在装修的时候可以在床的两侧都预留一定的空间,让活动作息不会受到影响。

卧室是所有空间中最私密,也最能让人放松、缓解疲惫的场所。
餐厅餐桌布及窗帘等布料饰品,尽量选用耐脏易清洁的面料,如果餐厅较为狭窄,可于墙面装上一面大镜子,另外餐厅背景墙上的装饰画的要依据餐厅整体来开展选择,图案最好是温馨和清爽的题材。

充足的光线、中性灰与暖驼色的交融,形体简约又不失质感,带来的不只是视觉上的素雅质朴,更有着触觉上的细腻柔和、亲切、与自然舒适。
中式家具是书房的最佳选择。但是它的颜色较重,虽可营造出稳重效果,但也容易陷于沉闷、阴暗,在书房中设计大面积的窗户,让空气流通,并引入自然光及户外景致就会很好地克服这种缺点。

质地优良、做工精细的原创家具,含而不露、端庄稳重,使得整个空间寄托着一定的文化追索的气息。
很多家庭都有独立的衣帽间设计,它不仅有强大的收纳能力,还是家居中一道独特的风景。由于衣帽间的整个空间都没有窗户,所以需要科学照明。最好选择内置灯泡,外加灯罩的灯具,以免造成安全隐患。

【 现代风|112平现代风三居室化繁为简,建造耐看、好用、亦可品家】空间中的每一件物品都有着独特的质感,充满了品位与品质。

推荐阅读
- 现代风|168㎡现代风,带着浓郁的归属感与愉悦感
- 深色|155㎡简约风,承载着三代人的生活,不花哨让家务少一半
- 饱和度|173㎡轻奢新中式,古典和现代的碰撞,唯美浪漫!
- 助贷|助贷咨询:企业抵押贷款常见风险
- 背景墙|97㎡现代风,以时尚打造空间,以新颖突出特点
- 卫生间|129平现代美式三居室,打造出一个舒适又温馨的美式家
- 三居室|118平现代风三居室,一个简单而纯粹还原生活色彩的家
- 简单感|现实的平衡取舍,才是生活之道!143平现代风格设计欣赏!
- 宋智雅|不只穿假货!宋智雅豪宅全是租的,公主风奢华住所都是TA在出钱供
- 木纹板|装修案例欣赏:小北欧风格的居家设计,简洁的同时又不失温馨感!
