采光和收纳一直都是老学区房业主的需求重点,我们今天要介绍的就是一个老小区改造的案例,业主家里有两个上学的小朋友,生活物品肯定少不了,这就对了初始面积只有86㎡的房子提出了收纳的挑战;而在家里的风格色调上,业主希望家里可以有温馨的氛围,设计时选择了木色和白色,并且把空间重塑,解决了业主的需求。
房屋信息????户型:二居室????房屋位置:南京市????使用面积:86㎡????装修预算:44万????装修风格:现代简约风
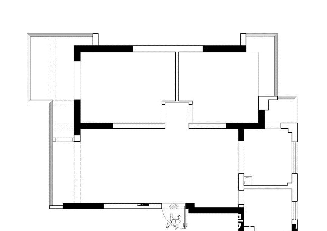
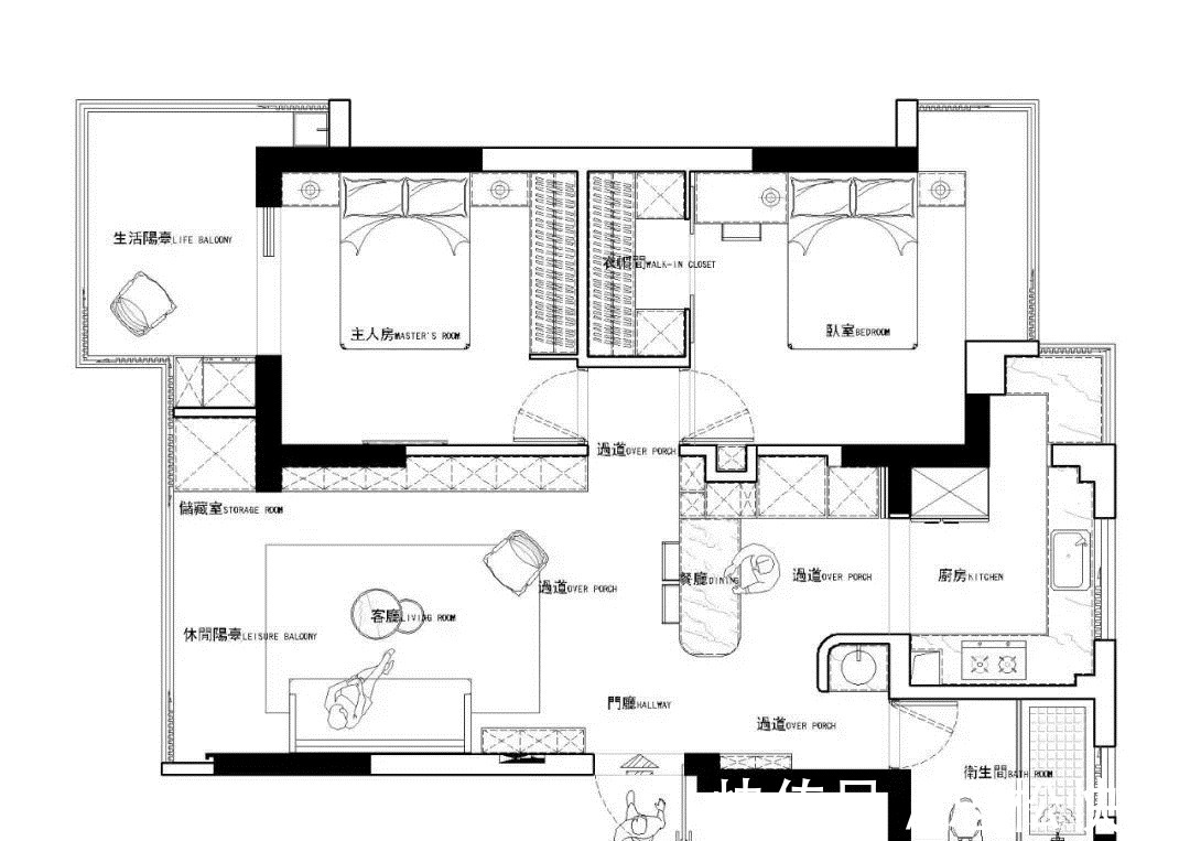
户型图
原始户型比较方正,可缺点也很明显:二手房位于3楼,采光受限入户没有明显的玄关收纳空间,缺少鞋子的换放的位置卫生间也不大,洗手台淋浴房马桶等一体很拥挤,洗漱体验感不佳餐厨位置小,整体显的拥挤原来的卧室空间也不算大,整体都缺少收纳
虽然原户型较为简单,设计师还是根据业主的需求做了不少改动:入户增加鞋柜,虽然空间不大,但尽可能的考虑其舒适度,进出家门,可以在门口换鞋;右手边加洞洞板,既作为装饰,也可以补充入户收纳需求,挂包包口罩,放放钥匙小物等客厅阳台并入客厅,优化客厅采光,取消传统的电视机,这样可以拥有一整面收纳墙。预留投影幕槽,满足家人偶尔的观影需求厨房空间不大,直接做开放式,中西厨结合,把原来餐厅墙边做了一整面餐边柜,满足其功能的需求,视野也开阔了卫生间原来很拥挤,将下水移位,干区外置,做干湿分离式,这样原来的淋浴空间,也不拥挤了孩子们的房间本来也不大,但是小朋友衣物都挺多的,于是借了大人房一些空间,做了一个步入式衣帽间,收纳问题也解决了卧室里的生活阳台比较大,这里可以晾晒也可以是休闲区域,除了洗衣机干洗机的嵌入,在转角的地方也不浪费,做了一个清洁角,在这里可以清洗抹布,拖把
客厅
客厅取消电视机,暗含一整排收纳墙,可以用来给孩子收纳玩具,手办,书籍。取消主灯,用点光源、线型灯满足采光需求。入户的悬挂式鞋柜,柜子里可以放鞋子,而悬空下方,可以放一些拖鞋和常穿的鞋子,下面暗藏感应灯带,作为补充光源,也更有设计感。不装电视可以尽量减少孩子看电子产品时间,但留有投影仪可以满足家人偶尔的观影需求。投影幕布槽与吊顶刚好做成一个好看的弧度,功能和美观,相互成全,投影幕实用也方便,需要看的时候,放下就可以。这里是文章图片\8.gif一整排的收纳柜,顶天立地,简约流畅的线条,白净的色调,好看更耐看。柜体里暗藏感应式灯带,开门的时候亮起,倍感温暖,体验感十足。在保证充分的收纳上, 在柜体里设计了感应式开门灯带,来做空间使用时的补光。
草编蒲团,作为客厅补充的坐敦,一家人在客厅观影交流,小朋友在地毯上打闹开怀大笑。
纯白色沙发背景墙,清爽纯净,不管从哪一个角度来捕捉,都是治愈的状态。
推荐阅读
- 客厅|参观向华强和陈岚的豪宅,房子层高太矮了,住着不压抑吗
- 烤漆面|老公坚持餐厅不做柜子,原来用吊兰做隔断可以这么漂亮,学到了
- 亮点|等了6个月终于能晒晒新房了,都挺满意的,客厅是最大的亮点
- 庭院|取消客厅三件套,只摆一张大长桌,79㎡的家简洁质朴,太满意了
- 餐厅|这套新房真有创意,客厅改主卧,电视背景墙后面设吧台!
- 布局|餐厅布局有很多不一样的设计,看看有没有合适你家装修的效果
- 装修|越来越多人阳台不装推拉门了,如今流行将阳台包进客厅,太聪明了
- 客厅|有钱人从不在家里放这4样东西,暗喻越住越穷,有钱人都会避开
- 隔断|112㎡清新北欧风,客厅砌个半墙隔出一间书房,2居变3居真实用
- 客厅|西安一对夫妻在客厅打羽毛球,两人水平不相上下,网友:房子够大
