这套57㎡的小公寓位于历史悠久的乌克兰城市中心,屋主希望感受城市的古老文化氛围,同时Get一个都市里寄托心灵的静谧角落。


▲
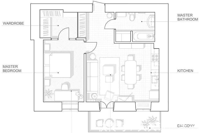
平面布局图
房子呈规则形布局,除卫浴、卧室套房保持独立外,其余公共空间全开放。
玄关

▲
从客厅看向玄关
保留4米层高,柔和中性色调搭配类塔斯干柱式线条装饰。

进门一侧利用结构凹陷嵌入
整排高柜
。
客厅

客厅的软装家具均选择经典设计款,鹅黄、墨绿、咖啡色混搭。

充分利用
4米的层高优势
,设计非常规的加高门洞。

▲
休闲阅读角

▲
透明茶几组合,灵巧不占地方
餐厨区

▲
一体式餐厨区
局部吊柜+搁板组合,可以随手取用调味品,鹅黄色柜门和客厅呼应。

地砖一圈拼贴
黑白马赛克砖
,于细节处增加古典韵味。

▲
临窗吧台,闲时可小酌一杯


▲
冰箱
两盏小壁灯避免操作时背光,单盆深水槽+黄铜水龙头,简单好用。
卧室



一体式床头背板
+独立箱体床,两盏小壁灯方便起夜照明。

【 石膏线|57㎡极简,石膏线和复古家具,增加高级感;粉色卫浴间,太好看了】临窗增加办公区。
衣帽间

▲
独立衣帽间

卫生间

卫生间特别选用陶土粉+浅灰蓝撞色,戏剧感十足。

浴室的置物柜同样选择悬空款式,不留卫生死角。

推荐阅读
- 屋主|56㎡小户型老房改造,小而美的设计!
- 现代风|168㎡现代风,带着浓郁的归属感与愉悦感
- 深色|155㎡简约风,承载着三代人的生活,不花哨让家务少一半
- 混淆感|146㎡北欧经典白色三居室,诠释令人心醉的优雅
- 饱和度|173㎡轻奢新中式,古典和现代的碰撞,唯美浪漫!
- 背景墙|97㎡现代风,以时尚打造空间,以新颖突出特点
- 地板|160㎡四居室,玄关比我家卧室都大,这才是真正的低调奢华有内涵
- 烂尾楼|水泥电线杆是如何制造的?里面的钢索有什么用?今天算明白了!
- 棚户区改造|开盘预告|合肥又有6盘要加推,均价1.39-2.54万/㎡全都有
- 炒房|房子有多难卖?三线城市炒房者:降价20万送车位都卖不掉
