今天齐家小灵儿给大家分享一套面积120平米的美式风格案例,精装房改造,三室变四室,功能强大实用。业主三口之家,长辈偶尔同住,和很多精装房业主一样,他们不想自己家装修得和别人家一样,希望通过微改造和软装的搭配,可以让设计出来的家营造出一种适合自身品味、喜好的独有空间氛围。

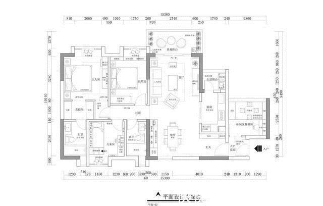
玄关
▲玄关过道的两侧分别设计了鞋柜和换鞋凳+挂钩,满足日常进出门换鞋、挂衣的需求。餐厅
▲穿过玄关过道,来到了餐厅。黑胡桃餐桌椅,沉稳大气,低调典雅,是美式风格的格调。
▲一侧墙面做满了餐边柜,烤箱也被纳入其中,强大的收纳空间,能让家里看起来干净整洁不少呢。客厅
▲餐厅和客厅在同一空间里,中间以过道分割,形成了两个独立的功能区。电视墙旁边的玻璃推门里面是厨房。
▲米白色的沙发背景墙,利用石膏线划分层次,是典型的美式装修方式。长条沙发凳与沙发椅的搭配,让客厅打破单调和沉闷,变得生动有创意。
▲浅蓝色的电视背景墙,搭配黑桃木电视柜和绿植,简单自然。厨房
▲厨房的地面选用了防滑地砖,保证日常行走的安全性。L型布局,将洗、切、炒整个做饭的过程安排在一个三角形的动线中,更便利快捷。主卧
▲主卧室的床头背景墙延续了客厅墙面的色彩与设计,精美的石膏线搭配浅蓝色墙面,视觉效果极具层次,看着非常舒服。
▲黑胡桃的实木床铺和床头柜,搭配柔软雅致的棉质床品,营造了一个温馨宁静的休息空间。
▲飘窗设计成了一个小小的休闲区,坐着看书,发呆都不错,关键光线还很好哦!床尾摆了张梳妆台和斗柜,为卧室增加了更多的储物空间。次卧
▲次卧的床头背景墙则选用了草绿色乳胶漆涂刷,搭配胡桃木家具和绿植图案的床品,大气又清新。飘窗同样设计成了休闲区,只不过坐垫底下做成了储物柜,与侧边的立柜相连接,满足收纳需求。
▲实木推拉门衣柜,百叶窗款式的柜门,提升了质感与层次感。书房
▲书房的功能很强大,榻榻米中间做了升降台,随时可变身为茶室。旁边的书柜+书架+书桌的一体式设计,是一个书房该有的样子。
推荐阅读
- 屋主|56㎡小户型老房改造,小而美的设计!
- 现代风|168㎡现代风,带着浓郁的归属感与愉悦感
- 深色|155㎡简约风,承载着三代人的生活,不花哨让家务少一半
- 混淆感|146㎡北欧经典白色三居室,诠释令人心醉的优雅
- 饱和度|173㎡轻奢新中式,古典和现代的碰撞,唯美浪漫!
- 背景墙|97㎡现代风,以时尚打造空间,以新颖突出特点
- 地板|160㎡四居室,玄关比我家卧室都大,这才是真正的低调奢华有内涵
- 棚户区改造|开盘预告|合肥又有6盘要加推,均价1.39-2.54万/㎡全都有
- 小房间|参观140㎡大婚房,朋友都夸餐边柜有档次,我却更喜欢主卧的飘窗
- 她家148平米,进门就被玄关迷住,不做吊顶跟背景墙,阳台超漂亮
