本项目是为关于一名有想法、追求品质的独居IT男一居室小户型改造案例,打破原始制式的格局框架,重新安排空间序列,以黑白经典色+深色柚木搭配出简单、个性,既符合男业主沉稳硬朗的形象,又不失温馨便利的生活之居。
这次改造的房子虽然不像之以往改造的旧房那般破旧,但还是有大部分二手房的通病:①卫生间在厨房里面;②空间利用率低,阳台区域闲置;③放置家居、家电后严重影响生活动线。
尽管男屋主是独居,但还是很注重房子整体的格调与实用性,由于从事IT行业,因此更加注重房子整体感,不希望有不协调的元素,也不喜欢过多的装饰,简约的较小的空间也能满足他日常的生活需求。
他还特别提到自己很喜欢家里的阳台,采光以及窗外的景色都很好,希望可以充分利用到。
项目信息:
地址:广州乐怡路嘉怡街
户型:一室
面积:46㎡
预算:约25w
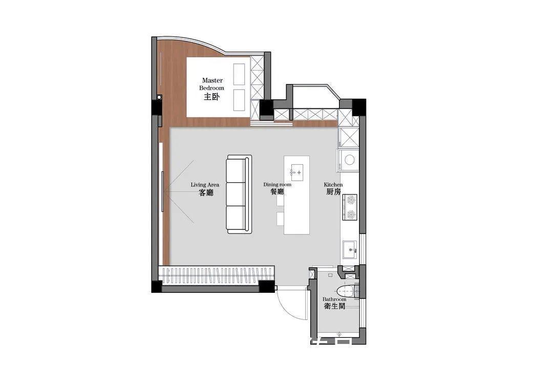
户型图

对于46㎡的小户型,一个舒适、不局促、空间充分利用的环境是可以实现的,摒弃传统的空间分隔观念,模糊功能区的界限,实现最大限度的空间共享。
改造重点:
①破除无用的墙体,把全屋的收纳柜体都靠墙,把中间的区域留出来,把空间共享最大化,形成“客餐厨一体化生活空间”,创造2条流畅的洄游动线,使生活更加便利和灵活;
②打掉墙体后厨房变成开放式,使空间更加通透大气,卫生间的洗手台外置,扩大卫生间的同时避免厨卫在同一个空间里;
③把阳台纳入室内变成主卧,并且封了落地窗玻璃,把室外景色保留之余,增加全屋的采光;
④在小户型创造一些模糊的界限,透过隐形门与可变推拉门,让空间与空间之间变得弹性。
客厅

从高强度的工作回到家后,干净舒适是一位独居男士对居所空间的期待。
房子的整个色调以大面积白色为主,少量黑色打底用作空间体块的区分,一深一浅明确体块的层次关系,加上全屋无主灯设计营造简约无物感,干净清爽没有多余的装饰更符合屋主的审美。

客厅摆放着舒适的灰调沙发,与浅灰色水泥地砖相呼应,整体空间只有直线线条,白色和木色体块,没有多余的家具,让待客空间干净利落。
破除无用的墙体,让视线一镜到底,贯穿客厅、餐厅、厨房,流畅的布局成就自由无拘束的生活品质。

电视背景墙是黑色打底,大面积纯白色悬浮柜与电视背景墙一体式连接,客厅的整体性得到了保证,使空间过渡得非常流畅。
悬浮式收纳柜既不占用地面面积,又不会显得突兀,与电视墙在平稳交错中突出立体效果,尽显简单大方的特质。
电视墙地下悬浮的柚木一直贯穿到卧室,使公共区与睡眠区自然衔接,抬高的柚木划分了客厅与卧室两个空间的场域,木地板提升了卧室的温暖感。
厨房

由于屋主是单身男性,平时很少料理,所以厨房选用了开放性的空间设计,纯黑的厨房使空间更显沉静,突显出现代质感。
厨房空间厨具功能设施齐全,满足男业主的日常需求,明朗干净的线条与钢板硬朗的材质交叠出冷静的高级感。左侧的隐形门里面,是嵌入的冰箱与干衣机,不使用时可用隐形门遮挡,避免大件家电外露的突兀感。
推荐阅读
- 屋主|56㎡小户型老房改造,小而美的设计!
- 现代风|168㎡现代风,带着浓郁的归属感与愉悦感
- 深色|155㎡简约风,承载着三代人的生活,不花哨让家务少一半
- 混淆感|146㎡北欧经典白色三居室,诠释令人心醉的优雅
- 饱和度|173㎡轻奢新中式,古典和现代的碰撞,唯美浪漫!
- 背景墙|97㎡现代风,以时尚打造空间,以新颖突出特点
- 地板|160㎡四居室,玄关比我家卧室都大,这才是真正的低调奢华有内涵
- 棚户区改造|开盘预告|合肥又有6盘要加推,均价1.39-2.54万/㎡全都有
- 小房间|参观140㎡大婚房,朋友都夸餐边柜有档次,我却更喜欢主卧的飘窗
- 罗伯特·清崎|男子买8000多套房,全部拿来出租:还会继续买
