水泥漆|88㎡小三居,磐多魔+水泥漆,她家的“毛坯房”太酷了
屋主是一名85后,性格慢热,特别喜欢宅在家里,希望家里有自己喜欢的一切元素。平时是夫妻二人和3岁的女儿居住,还有两只可爱的狗狗。
屋主需求:
1. 想要水泥地
2. 对“深蓝色”有执念,希望空间能加入蓝色元素
3. 希望整体空间通透开阔



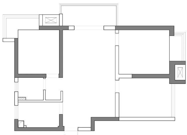
▲ 原始户型图

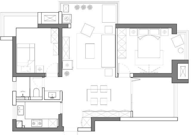
▲ 平面布局图
入户

一进门就可以看到透亮的阳台,贯通的两个厅让日常活动区域增大不少。

就像屋主说的那样:“我想象中的场景就是这样的,通透且没有太多遮挡,简洁明了,靠在沙发上适合神游。”

客餐厅墙面采用清水混凝土,并通过局部墙面的形式实现屋主对于“深蓝色”的执念。
餐厅

餐厅的无把手隐形门设计将存在感降到最低,虽在入户区显眼位置,却丝毫不会影响空间整体美感。

姜黄与深蓝的颜色碰撞,给整体空间带来复古摩登气氛,长条吊灯也独具风格。

▲ 长虹玻璃折叠门
餐厅连接多功能房,用长虹玻璃折叠门代替实墙,保证房间独立性的同时也不影响餐厅区的采光。

平时打开折叠门,将多功能房融入餐厅,空间视觉延伸更开阔。
厨房

厨房面积仅3.5㎡稍显局促,设置L型的操作台,更好地利用了空间。
为了延续整体空间风格,墙面选用不锈钢和水泥两种材质,代替传统贴砖的处理方式。

咖啡区、灶台、备菜区一字排开,橱柜下内嵌小冰箱,专供厨房空间使用,虽面积小但动线流畅,功能性与颜值都在线。

操作台用整面的本色不锈钢作为墙面,方便日常打理。

灶台旁的墙面安装洞洞板,用来收纳调味罐。为了统一空间风格,咖啡机和调味罐都选了不锈钢金属材质。


▲ 一些的厨房用具
客厅

▲ 地面:Pandomo(磐多魔)
公共地面采用Pandomo(可以理解为进阶版的水泥自流平,价格略高对工人的施工要求也更高),基本能规避掉普通水泥自流平易裂缝难打理的情况。
推荐阅读
- 屋主|56㎡小户型老房改造,小而美的设计!
- 现代风|168㎡现代风,带着浓郁的归属感与愉悦感
- 深色|155㎡简约风,承载着三代人的生活,不花哨让家务少一半
- 混淆感|146㎡北欧经典白色三居室,诠释令人心醉的优雅
- 饱和度|173㎡轻奢新中式,古典和现代的碰撞,唯美浪漫!
- 背景墙|97㎡现代风,以时尚打造空间,以新颖突出特点
- 地板|160㎡四居室,玄关比我家卧室都大,这才是真正的低调奢华有内涵
- 烂尾楼|水泥电线杆是如何制造的?里面的钢索有什么用?今天算明白了!
- 棚户区改造|开盘预告|合肥又有6盘要加推,均价1.39-2.54万/㎡全都有
- 小房间|参观140㎡大婚房,朋友都夸餐边柜有档次,我却更喜欢主卧的飘窗
