原木色|66㎡两居,以储物柜做隔断,以墨绿和原木配色,实用的文艺范儿( 二 )






卫生间选择了一个浅绿色的浴室柜,借此与其它空间的绿色保持呼应,墙面搭配北欧小白砖,地面搭配复古黑白花砖,沐浴区用黑色细框玻璃隔断,北欧复古风格的优雅气质得到了充分的体现。
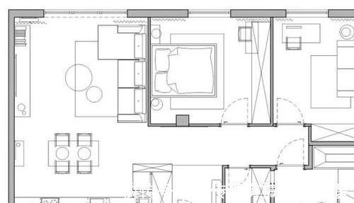
户型图

【 原木色|66㎡两居,以储物柜做隔断,以墨绿和原木配色,实用的文艺范儿】案例并没有展示主卧和次卧的照片,但从户型图上看,还是比较紧凑的。这套66㎡两居,以储物柜做隔断,以墨绿和原木配色,成为了实用主义的文艺范儿装修案例。
推荐阅读
- 屋主|56㎡小户型老房改造,小而美的设计!
- 现代风|168㎡现代风,带着浓郁的归属感与愉悦感
- 深色|155㎡简约风,承载着三代人的生活,不花哨让家务少一半
- 混淆感|146㎡北欧经典白色三居室,诠释令人心醉的优雅
- 饱和度|173㎡轻奢新中式,古典和现代的碰撞,唯美浪漫!
- 背景墙|97㎡现代风,以时尚打造空间,以新颖突出特点
- 地板|160㎡四居室,玄关比我家卧室都大,这才是真正的低调奢华有内涵
- 三居室|118平现代风三居室,一个简单而纯粹还原生活色彩的家
- 棚户区改造|开盘预告|合肥又有6盘要加推,均价1.39-2.54万/㎡全都有
- 小房间|参观140㎡大婚房,朋友都夸餐边柜有档次,我却更喜欢主卧的飘窗
