高房价之下,小户型是很多刚需族的选择之一,面积虽然不大,好歹也是一处安稳的容身之地,不像租房那么不稳定,无缘无故被要求搬走,动不动就涨房租,想想就闹心。

今天齐家安安要分享的是一套34㎡小户型装修案例,房子面积虽小,但在设计师的巧妙设计下,装出了两房两厅一厨两卫,该有的都有,这就是所谓的麻雀虽小五脏俱全。

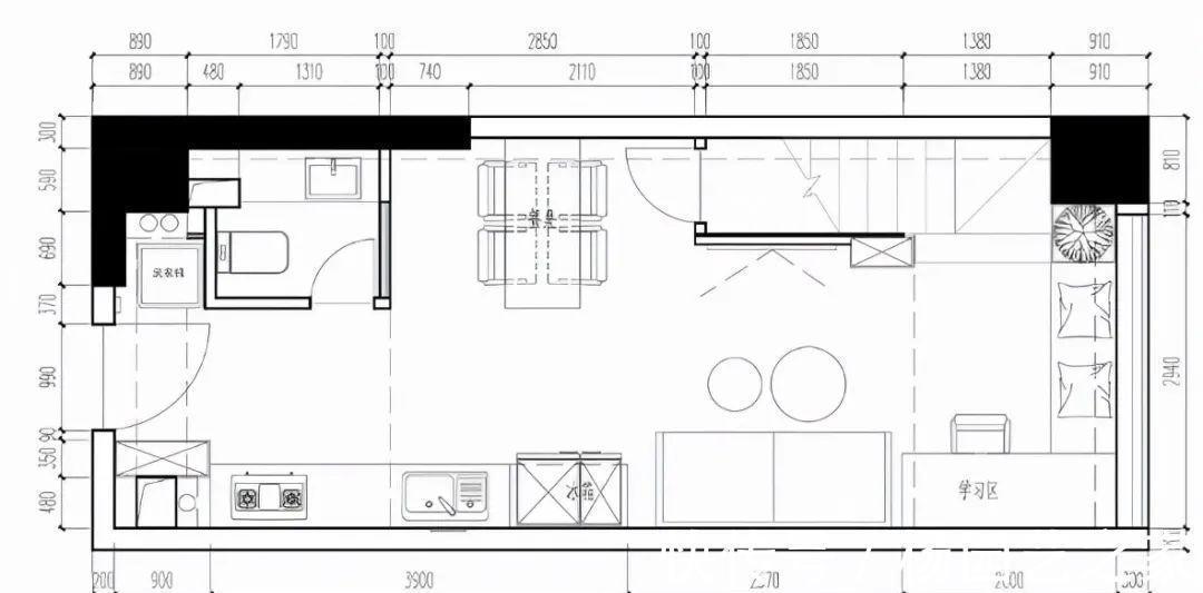
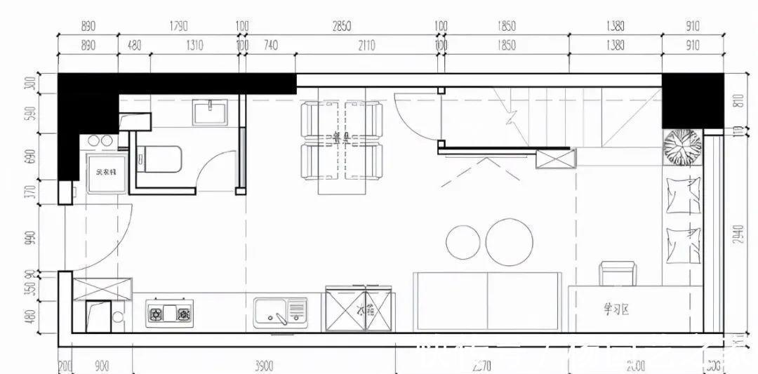
▲一层平面布置图
一楼主要是日常活动区域,集合了厨房、卫生间、客厅、餐厅、学习区,还有就是杂物间。整体采用开放式设计,大开间的户型,空间采光通透明亮。
【 空间|没钱买大房子?小户型好好设计一下,34㎡小蜗居也能五脏俱全!】

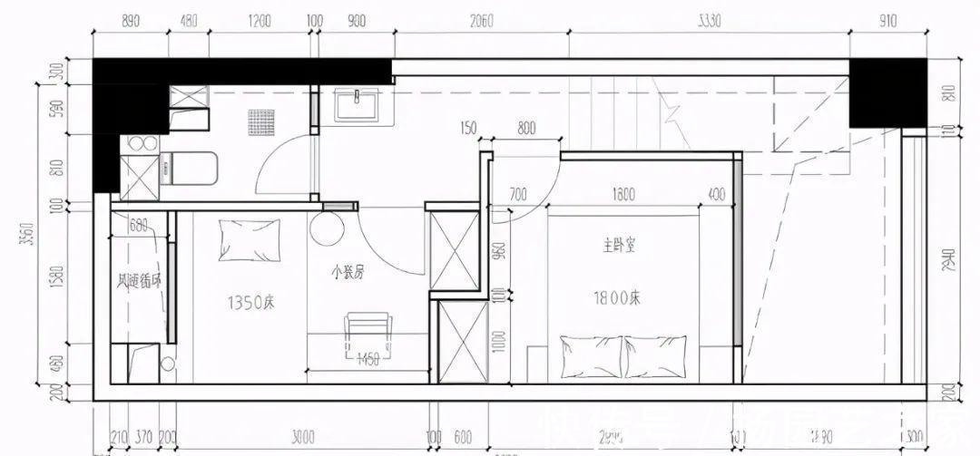
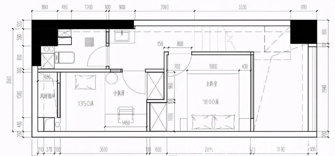
▲二层平面布置图
二楼主要是居家休息空间,布置了主卧和儿童房。考虑到生活便利,借用部分儿童房空间也设计了卫生间,让日常生活更简单舒适。

进门左右两侧空间一点不浪费,一侧定制嵌入式鞋柜,另一侧则打造成换鞋凳与挂衣区,让进门空间功能更加完善,提高舒适度。

玄关进来就是厨房空间,利用过道空间定制一字形橱柜,吊柜+地柜满足日常收纳需求。


餐厅选用了简易轻轻造型的桌椅,增加了空间通透与灵活性。考虑到空间通透感,餐厅与卫生间的墙面加入长虹玻璃,透光不透隐私,改善了卫生间的采光。

客厅电视墙采用嵌入式安装,让空间利用最大化,并且居家动线也更流畅,不需要担心来回走动会磕碰到电视。

没有做复杂的吊顶,拉平一体化设计,整洁统一又显大气。舍弃了单一照明设计,以点状光源结合的形式,让光线分布更均匀,照明效果更充分。

学习区采用定制设计,充分利用落地窗与台阶的高度落差,定制了一排地柜,可收纳又可以是休闲区。书桌与地柜一体设计,简约大气,整体性强。

卫生间,整体设计延续了简洁基调,浅灰色纹理的瓷砖,搭配脏粉色的浴室柜,一冷一暖,颇有一番既视感。

主卧,灰白色定调简约气质,落地窗为室内提供了良好的采光,即便层高有限,也不会显得太过压抑。入墙式的衣柜设计,维持了室内的整洁效果。

儿童房采用榻榻米床+衣柜+书桌组合定制设计,打造一个功能齐全,且独立的空间。
推荐阅读
- 美好生活|欧哲门窗副总经理周志军:「拓」不忘初心同心同德,成为美好生活空间首选品牌
- 银行|请注意!今日起各地房贷利率普遍下降5个基点 业内预期:部分地区房贷利率或仍有下调空间
- 背景墙|97㎡现代风,以时尚打造空间,以新颖突出特点
- 购房置业|上海女子拍下对楼住户家无敌露台,超大空间网友酸了:买房送操场
- 限购|没钱买洋房,只好买两梯四户带连廊房的,该如何选择呢?
- 墙面|过道能''挤''出空间 5种方式帮你充分利用每一寸,档次蹭蹭上涨
- 全屋|次卧空间小,老婆灵机一动不装“床”,孩子一眼就喜欢上了晒晒
- 轻奢风|什么样的生活空间,才算得上是美好现代轻奢风,大道至简
- 购房置业|三四线城市的住房真的值得购买吗?不能一概而论,还是有升值空间
- |西晒房、东晒房,一个没人要,一个抢着买,有钱没钱万万要选对
