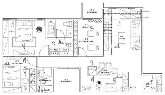
从事金融业的沈氏夫妻,相当重视健康无毒的住家环境。深入了解屋主所需之后,设计师采用玻璃架构半开放式空间,敞开全室通透视野,并善用房屋既有楼高优势,拓展出专属小儿子的卧室,亦使衔接的龙骨梯成为电视墙一抹独特风景。屋主需求1、指定简约纯白风格。2、二个儿子需有独立房间,期待将两房拓展成三房格局。3、重视无毒健康的环境,希望触及之处均使用欧德绿建材。户型图室内坪数98平米/格局3 1房2厅2卫/居住人数2大2小。

纯白基调运用系统板材堆砌,透过温润木质、朴素水泥与仿旧木调呈现简而不单的空间形象,在简净轻盈间流露淡淡轻工业与北欧风气息,完美实践一家四口的理想家居。

玄关设计:踏进玄关,简白鞋柜采用悬浮式设计,底层空间则能收放室内拖鞋与清扫器具,透过暖黄间接光源来照亮归来的家人,将冷暖色调相互穿插,利用斑驳木质背板搭衬水泥灰板材,来构筑温韾自然的门面印象。

顾及小户型的空间不是大,所以运用L型设计拓展充裕收纳机能,并于穿鞋椅一端搭配深型抽屉柜,使袜子妥善摆放,大幅提升替换鞋履的便利性,同时置入一道带有古铜金色调的全身镜,不仅能整理仪容也缓和入门后的仓促感。

客厅设计:进到客厅前,以一道纯白窗花屏风界分玄关与厨房,镂雕造型使视线若隐若现,增添优雅层次韵味,往前继续走可以看到仿旧木质饰板框构健身空间。将单杠锁于楼板确保稳固,并辅以平钉天花修饰楼高,实现男主人希望将单杠与室内相融合的愿望,赋予过道多功能用途。


净白明亮的客厅基调,严选具细腻亚麻外层的欧德波昂沙发,温润柔适触感与高回弹舒压泡棉内材,给予一家人宽敞舒适的坐感体验,透过轻柔浅灰的主色调,来营造出简约静谧氛围。

考量男主人拥有众多游戏设备,顺其阶梯造型构筑高度合适的电视矮柜,利用开放式设计达到良好散热效果外,也使收藏的历代游戏手把成为空间缀饰元素。

厨房/餐厅设计:鉴于厨具上柜顶端采以明管方式配置污水管,致使空间视野被零碎分割,于是巧妙运用水泥灰色调的包框柜遮饰凌乱管线,筑起一道兼具储物用途的平整柜体,也便于日后清洁维护。

同步运用系统板材于冰箱左侧砌筑二座收纳柜体,从半开放式电器柜接续朝玄关开合的吸尘器柜,并贴心顾及身为上班族的夫妻俩习惯在早晨泡杯咖啡,因此顺延窗花屏风拓展摆放咖啡器具的矮柜,与生活习惯完美结合。

考量女主人经常下厨,规划中岛与餐桌椅相互衔接,勾勒出流畅回字型料理动线,让不常使用的烹调器具拥有摆放位置,不再随处堆积,并于天花垂降铁件层架,经由灯饰与绿意植栽点缀,形成一抹惬意景致。书房设计:从使用者角度出发,采用通透玻璃框是书房环境更加的明亮,使夫妻俩在专心阅读工作时,仍可随时留意客餐厅状况。将书桌依循墙面展开,即使二人共同作业也丝毫不局促,同时于壁面覆以几何饰板与开放层架,从细节彰显独到品味。
推荐阅读
- 屋主|56㎡小户型老房改造,小而美的设计!
- 小钱|游点好笑!收手机的新方式,一抓一个准!这老师怕是柯南看多了?
- 烂尾楼|水泥电线杆是如何制造的?里面的钢索有什么用?今天算明白了!
- 公示|一处体育中心项目、一处小型口袋公园!市北两项目规划公示,配套升级
- 碧桂园|小城市的房住不炒,遇上返乡置业
- 小户型|发现丈夫赠人房产 妻子怒讨买房款
- 小房间|参观140㎡大婚房,朋友都夸餐边柜有档次,我却更喜欢主卧的飘窗
- 卫生间|什么才叫好户型?来看看这5个标准,你家房子符不符合?
- 修建|精选10套三层户型图纸,占地面积均不足百平,尤其适合新农村修建
- 楼层|对于买房选楼层,一旦你忽视这5件小事,就只能买到“垃圾楼层”
