来源:家居生活一身轻松
家,对于在外漂泊的人来说,成了一种奢望。努力的工作,只为能有一个属于自己的港湾。房子面积不需要多大,温馨舒适便可。这次分享的案例位于上海,一套建筑面积80㎡的两居室,屋主是一对年轻夫妻,喜欢丰富、个性又不失温馨的居家空间。装修围绕简约风展开,其中穿插工业风元素,打造出属于自己风格的生活空间。
▼房屋信息
项目面积:建筑面积80㎡
项目地址:上海市
项目设计:犀宅原创设计
【 收纳|80㎡两房,面积虽小,却舒适自然好温馨!我也想这么装】
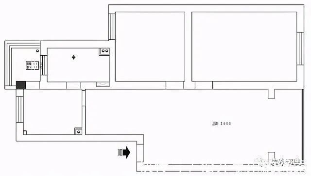
▼原始结构图
建筑面积80㎡,实际使用面积67㎡,户型整体还是比较不错的,当然也存在一些小缺陷,比如厨卫空间布局不合理,不仅使用不便,还导致空间很拥挤。

▼装修布置图
最大限度保留原有格局,通过细微的改动,重新规划生活动线。厨卫空间分离,让日常生活更舒适合理。

▼玄关设计
原本开门见厅的格局,利用鞋柜隔断,分割出玄关空间。鞋柜采用上下柜组合,中间镂空设计,打破封闭视觉感,引入自然光线改善玄关采光。一面红砖墙奠定了些许工业风基调,搭配一面穿衣镜,方便出门前检查着装。

进门左转正对次卧,考虑到屋主收藏丰富,利用次卧门洞移位留出的空间,定制了一面展示柜,用于摆放屋主收藏的CD。

▼客厅设计
客厅简洁舒适,以尽可能少的装饰还原生活场景。原有阳台直接纳入客厅,增加客厅使用面积,采光和视野也更直接。简易吧台设计,打造一隅休闲区域,为日常生活增添一丝情调。

主卧采用隐形门设计,保证了电视墙视觉统一性和完整性。做旧风格的材质,让空间多了几分复古精致感。一条轨道射灯作为电视墙的光源补充,光线照射在电视墙可以减少电视节目带来的光度差。

▼餐厅设计
餐厅简单实用,水泥墙作为工业风主要元素之一,整体涂刷让人很难接受,但局部的涂刷尝试,还是有意想不到的效果。冰冷粗犷的水泥墙与柔暖的沙发墙相互映衬,一冷一暖恰到好处的搭配。

鉴于屋主平日下厨频次不高,厨房采用开放式设计,空间更开敞通透,采光也更好更直接。

▼厨房设计
原户型结构进入卫生间要经过厨房,局部改造后实现厨卫空间分离,各自独立彼此不影响,生活动线更舒适。

推荐阅读
- 屋主|56㎡小户型老房改造,小而美的设计!
- 现代风|168㎡现代风,带着浓郁的归属感与愉悦感
- 深色|155㎡简约风,承载着三代人的生活,不花哨让家务少一半
- 混淆感|146㎡北欧经典白色三居室,诠释令人心醉的优雅
- 饱和度|173㎡轻奢新中式,古典和现代的碰撞,唯美浪漫!
- 背景墙|97㎡现代风,以时尚打造空间,以新颖突出特点
- 地板|160㎡四居室,玄关比我家卧室都大,这才是真正的低调奢华有内涵
- 棚户区改造|开盘预告|合肥又有6盘要加推,均价1.39-2.54万/㎡全都有
- 收纳|去邻居家参观才知道,卫生间不装柜子这样设计,防潮耐脏好清洁
- 小房间|参观140㎡大婚房,朋友都夸餐边柜有档次,我却更喜欢主卧的飘窗
