禹州市国有建设用地使用权拍卖出让公告
(禹自规告字【2021】31号)
经禹州市人民政府批准,禹州市自然资源和规划局决定以网上拍卖方式出让以下5(幅)地块的国有建设用地使用权,并指定禹州市自然资源和规划局组织实施。现将有关事项公告如下:
(2021)064号

(二)地块位置: 浅井镇浅井村境内
(三)地块四至范围:
(四)出让面积(平方米):21509
(五)土地权属来源批复文件:
(六)土地估价报告备案号:
(七)土地用途: 仓储用地
(八)规划容积率: 容积率
(九)规划建筑密度(%): 建筑密度
(十)绿地率(%): 绿化率≤20
(十一)土地开发程度:
(十二)土地使用权出让年期(年):50
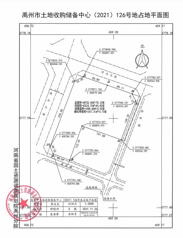
(2021)126号

(二)地块位置: 开元大道南侧、南北大街东侧
(三)地块四至范围:
(四)出让面积(平方米):43217
(五)土地权属来源批复文件:
(六)土地估价报告备案号:
(七)土地用途: 城镇住宅用地
(八)规划容积率:1≤容积率
(九)规划建筑密度(%): 建筑密度
(十)绿地率(%):35≤绿化率
(十一)土地开发程度:
(十二)土地使用权出让年期(年):70
(2021)127号

(二)地块位置: 东西一街南侧、南北大街西侧
(三)地块四至范围:
(四)出让面积(平方米):40874
(五)土地权属来源批复文件:
(六)土地估价报告备案号:
(七)土地用途: 城镇住宅用地
(八)规划容积率:1≤容积率
(九)规划建筑密度(%): 建筑密度
(十)绿地率(%):35≤绿化率
(十一)土地开发程度:
(十二)土地使用权出让年期(年):70
(2021)128号

(二)地块位置: 药城路东侧、大学路北侧
(三)地块四至范围:
(四)出让面积(平方米):64974
(五)土地权属来源批复文件:
(六)土地估价报告备案号:
(七)土地用途: 城镇住宅用地
(八)规划容积率:1≤容积率
(九)规划建筑密度(%): 建筑密度
(十)绿地率(%):35≤绿化率
(十一)土地开发程度:
(十二)土地使用权出让年期(年):70
(2021)129号

(二)地块位置: 学府西路东侧、万福路南侧
(三)地块四至范围:
(四)出让面积(平方米):55841
(五)土地权属来源批复文件:
(六)土地估价报告备案号:
(七)土地用途: 城镇住宅用地
(八)规划容积率:1≤容积率
(九)规划建筑密度(%): 建筑密度
(十)绿地率(%):35≤绿化率
(十一)土地开发程度:
【 买房|禹州五宗土地即将拍卖,买房投资注意了!】(十二)土地使用权出让年期(年):70
举报/反馈
推荐阅读
- 贷款|5月起,“2道铁令”,今后这1种买房方式再也行不通了
- 住宅|现在买房,选“高层”还是“低层”好专家20年后差别很大
- 购房置业|上海女子拍下对楼住户家无敌露台,超大空间网友酸了:买房送操场
- 郑州|买房月供曝光!郑州最新平均工资8694元,撑得起房贷么?
- 购房置业|为什么买房不要买靠边的房子?这些问题要注意,开发商不会告诉你
- 小户型|发现丈夫赠人房产 妻子怒讨买房款
- |2022年房价走势已清晰,准备买房的刚需家庭,提前看看这4大忠告
- 购房置业|买房界的黄金法则:好房子横向要宽、纵向要薄,多面朝南
- 买房|二手房指导价意义非凡,主要有这4点,想购房的来看看
- 购房置业|上半年能再买房吗?2个消息接踵而至,央媒定调,答案很明显
