虽然现在农村二层的小别墅随处可见,但是对于一些成员较多的家庭来讲,三层的房子更实用,而且造价也高不了多少。下面小编就给大家推荐几套三层别墅的设计图,建房干货满满,千万别错过!
别墅风格:中式占地面积:155㎡预估造价:77万别墅层数:三层建筑占地:17.5m×8.9m建筑面积:426㎡建筑结构:砖混结构
新中式风格的三层带露台别墅,经典的黑色屋顶加白墙设计,每个窗口都单独设计窗檐,方便下雨天排水。
一层设有堂室、客厅、公共卫生间、厨房、餐厅、仓库等,格局方正,户型紧凑。
二层主要是休息空间,卧室分布合理,有独立的窗户。三层设置有三室两厅两卫,可满足家人日常休闲使用。
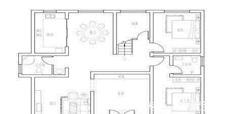
占地面积:131㎡建筑占地:11.5m×11.4m建筑面积:311㎡
建筑为新中式风格,造型简约,露台和开放式阳台使立面的层次感突出。
一层有公共功能空间,堂屋、茶室、餐厅、玄关等面积充足,开放式设计使空间整体更开阔。
二层增设客厅丰富建筑休闲功能,其余空间均为居住空间。三层西北侧增加露台,丰富了建筑的室外活动功能。
开间:12m进深:11.7m建筑面积:394㎡
建筑为简欧风格,一层入户位置为大面积的堂屋,老人房设计了私卫。
二层主要功能为日常居住,开阔的衣帽间充分满足了日常生活中的需要,使用非常方便。
三层相对偏向于娱乐休闲,空间比较宽敞,走廊和楼梯不会显得局促和拥挤。
别墅风格:欧式建筑占地:13.7m×9.6m建筑面积:347㎡
建筑整体偏向欧式风格,一层以棕色衬托二、三层的暖黄色,配合蓝色屋顶赋予建筑更多清新感。
一层主要为父母活动空间,入户正对堂屋,并将神位设计在中间位置。
二层共三间卧室,主卧带有卫生间和衣帽间,整体通透性极佳。
三层主要是自用,洗衣房、书房、露台以及配套齐全的主卧让三层更加独立,多样功能也提高室内豪华感。
别墅风格:现代占地面积:240㎡建筑占地:21.7m×11.1m建筑面积:520㎡
推荐阅读
- 建房子|面宽11米, 进深16.5米的农村三层别墅, 前后有花院还带车库, 完美!
- 别墅|参观亲戚上海的豪宅,别墅硬是住成农村房,真是糟蹋了好房子
- 购房置业|今年起,农村老家的老房子,统统按照“新规”处理,子女提前知晓
- 修建|精选10套三层户型图纸,占地面积均不足百平,尤其适合新农村修建
- 上海市|2022年农村人要“享福了”?实行按户补贴,跟村民们的房子有关
- 洗衣房|这三款农村四合院设计图让不少城里人羡慕,父母看了也欢喜
- 购房置业|农村建新房就选这套四层别墅,占地100多平,8间卧室人人都有地睡
- 别墅|土豪农村盖大别墅,人人羡慕,如今却成为全村人眼中的大笑料
- 李沧|农村建房不能超过几层?面积是怎么规定的?农村建房的流程及条件一览
- 露台|推荐5款三层别墅设计图纸,最适合农村建的房子
