小户型|86平的小三房, 正好适合一家三口的小户型
今天分享的是一套建筑面积86个平方,套内69个平方的小户型,有着两间卧室和一个比较小的书房,正好适合一家三口居住。装修的风格为现代简约风,没有太多复杂的设计,一切以简单、温馨为主。

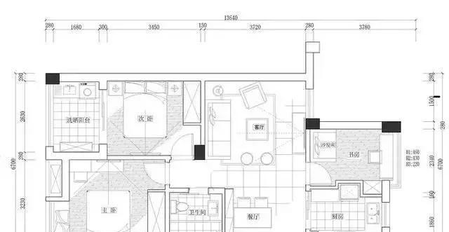
平面布置图

入户没有玄关,利用厨房我的墙面做了个迷你的嵌入式鞋柜,方便日常更换鞋子,卡座式的餐厅也可以作为换鞋凳。

靠在角落里的卡座餐厅,墙边也利用起来做了部分的收纳,大理石的台面上可以摆放各种绿植、挂画、装饰品。【 小户型|86平的小三房, 正好适合一家三口的小户型】

厨房的空间还是比较宽敞的,做了U字型的橱柜,为了避免太过压抑,也用部分的隔断来代替吊柜。

餐厅的另一侧就是客厅,浅灰色的布艺沙发搭配简约风的照片墙,简约而又舒适。黄色的矮凳、干花和抱枕也给客厅增添了一丝活力。

复古范的木质茶几和电视柜让人感觉多出了一些典雅的感觉。吊灯、射灯和落地灯搭配起来,让客厅变得更加丰富。

主卧室的设计更加简单,浅灰色的墙面和白色的天花板分开,让卧室更有层次感。角落里的小飘窗满足屋主收纳和休闲的需求。

次卧同样是比较简约的设计,屋主暂时还没有宝宝,所以次卧的设计也会偏于中性化,方便以后进行改造。
推荐阅读
- 屋主|56㎡小户型老房改造,小而美的设计!
- 小钱|游点好笑!收手机的新方式,一抓一个准!这老师怕是柯南看多了?
- 卫生间|129平现代美式三居室,打造出一个舒适又温馨的美式家
- 三居室|118平现代风三居室,一个简单而纯粹还原生活色彩的家
- 郑州|买房月供曝光!郑州最新平均工资8694元,撑得起房贷么?
- 公示|一处体育中心项目、一处小型口袋公园!市北两项目规划公示,配套升级
- 碧桂园|小城市的房住不炒,遇上返乡置业
- 小户型|发现丈夫赠人房产 妻子怒讨买房款
- 石家庄|144平的面积,无人值守棋牌室,这是如何做到的?
- 小房间|参观140㎡大婚房,朋友都夸餐边柜有档次,我却更喜欢主卧的飘窗
