配色和灯光,可以说是居家装修的灵魂,很多人在装修的时候,往往容易忽视这点。其实巧妙地运用色彩和灯光,会使得房子的装修效果事半功倍。比如这期的案例,就很好地证明了这一点。套内83㎡的空间,灰泥与木纹的交织,展开低调沉静的叙事背景,利用灯光营造回家后的舒缓情绪,整体效果让人好喜欢,如果再买房,一定照着他家这样装。
房屋基础信息
项目面积:83㎡(套内面积)
项目地址:中国台湾

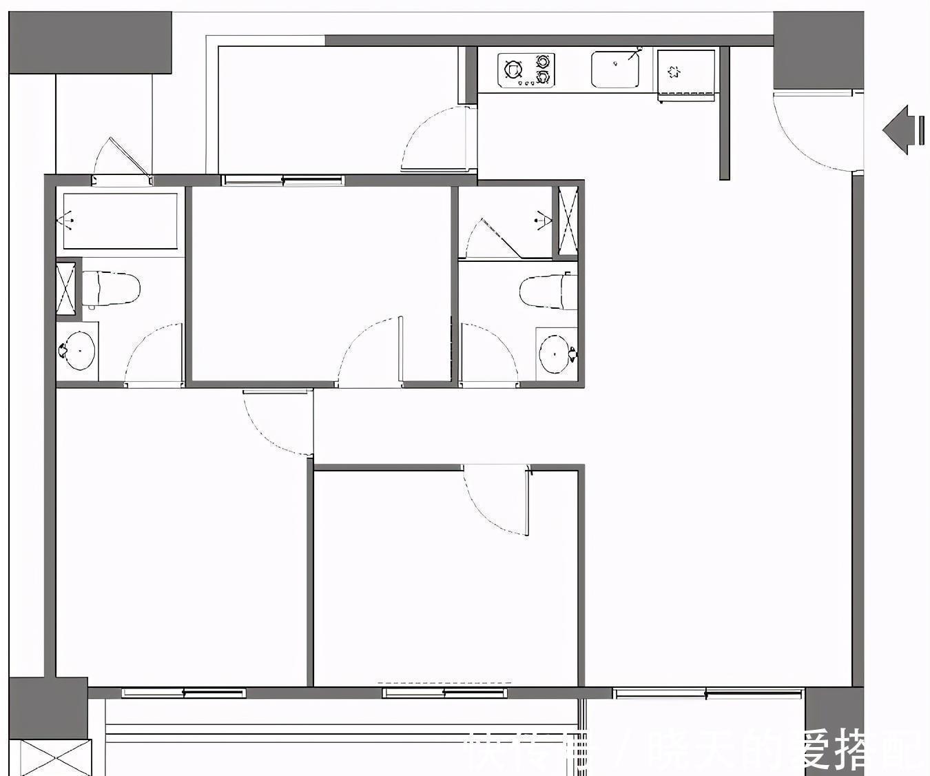
原始结构图
套内83㎡三房,整体布局合理,装修不需要太大改动,只需优化细节设计,增加储物柜设计,提高居家储物收纳水平。

装修布置图
基本保留了原始格局,因高收纳需求,通过退移、通高设计等方式隐藏柜体,使美感并存之余,扩大储物空间。

玄关空间
玄关是家的第一印象,装修不仅要实用,还得美观。为了避免窒息且厚重的柜体设计,与横梁齐平推出木纹组合柜,同步划分出收纳、换鞋凳与挂衣空间,有开有合的设计,加上木色的亲和力,营造轻松无压的视觉体验。


客厅空间
一抹线性灯,打亮黑镜装饰,同步串连木质格栅,引领居家动线。木质格栅不仅遮挡了突兀的电表箱,还分区界定了客餐厅,同时也呼应了玄关木纹组合柜。

灰泥与木纹的交织,打造低调沉稳的电视背景墙。利用材质粗糙的纹理感,降低光线反射困扰,提高后期观影舒适度。电视墙右侧,打造一组玻璃展示柜,内置光条照映柔和氛围,同时呼应左侧线性灯。

客厅摆脱了传统方方正正的勾勒,以圆弧设计优雅的抚平锐利的转角,拥有更舒适的空间体验。多种照明结合的方式,弥补了仅有一面的采光条件。沙发墙同样采用灰泥材质,与电视墙呼应,渲染出沉稳基调。爱马仕橘沙发的融入,让空间多了几分休闲跳脱。

餐厅空间
餐厅延用了灰泥材质,搭配银狐大理石餐桌、悬落而下的工业风吊灯,承接沉稳的空间基调,同时也不缺乏时尚大气。长虹玻璃与铝框拉门结合,分隔餐厨空间。一改开放式格局,阻隔油烟又牵起隐性交流界限。

主卧空间
主卧由浅入深引领空间动线,背景墙以蓝灰色装饰,床尾以深色柚木筑起衣柜,奠定宁静舒适基调。床头拥有横梁结构,以斜角天花设计抚平压迫感,同步开孔落下吊灯,带出活泼气质。

百叶设计,让主卧拥有更灵活的光影变化。窗前设计了卧榻,与床头柜形成一体,浅木纹色减轻视觉体量,让空间不那么拥挤。卧榻采用上掀式设计,方便日常收纳。
推荐阅读
- 春节|如果能重来,阳台一定“9不装”,并非迷信,是过来人的经验教训
- 贷款|5月起,“2道铁令”,今后这1种买房方式再也行不通了
- 美好生活|欧哲门窗副总经理周志军:「拓」不忘初心同心同德,成为美好生活空间首选品牌
- 管道|为什么说:再穷也不买二层?了解这些弊端之后,就知道多糟心了!
- 银行|请注意!今日起各地房贷利率普遍下降5个基点 业内预期:部分地区房贷利率或仍有下调空间
- 背景墙|97㎡现代风,以时尚打造空间,以新颖突出特点
- 购房置业|上海女子拍下对楼住户家无敌露台,超大空间网友酸了:买房送操场
- 疯狂|1月20日广州新房网签210套,增城以43套再次蝉联榜首!势头强劲!
- 旧城改造|5万亿旧改来了,20年以上的老房子再度吃香?这两类人有福了!
- 购房置业|上半年能再买房吗?2个消息接踵而至,央媒定调,答案很明显
