独居对于现在很多年轻人来说,属于比较常见的一种现象了。独居,一个人生活着更无拘无束,更不会受到他人的影响和限制。拥有一套属于自己的房子,即使一个人生活,也会让很多人羡慕了。
这次给大家带来95后女孩人生第一套套内面积60平新房,只有两居室也足够使用了。考虑了很长一段时间,最终选择装修北欧风格,全屋整个空间花了很多心思设计,完工后的效果很漂亮,装出了屋主她想要的效果。已经搬进来入住一段时间了,一个人独居很幸福,看着都羡慕啊。真心希望以后也能拥有这样一套小房子,按自己的想法把家装好。给大家看看全屋,喜欢的话可以参考。

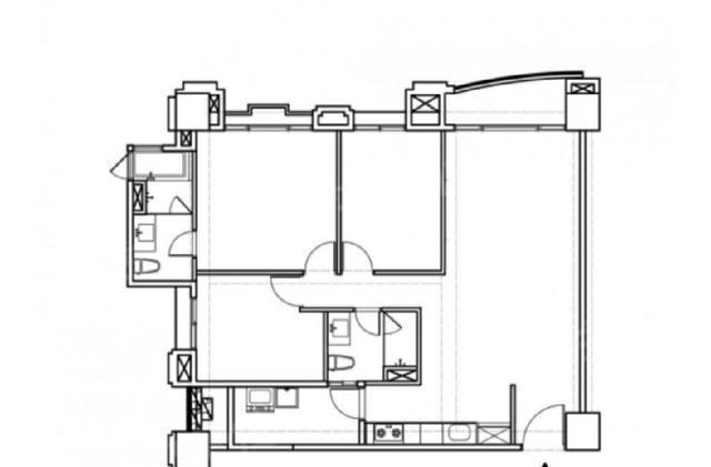
先来看看户型图,属于比较常见的两居室户型,客厅与餐厅是在一个空间,并且厨房没有划分一个区域,需要砌墙。同时主卧空间不是很大,需要一个更多的收纳空间。

保持着原来客厅和餐厅在同个空间一体,让整个空间看起来更宽敞。打造了玄关鞋柜和餐边柜,可以增加更多的储物空间。利用次卧作为功能区,方便屋主使用。客厅与阳台打通,增加了很多室内面积,可以更好利用起来,作为与猫的活动区域。

根据需求,刚好利用玄关过道区域设计了一个带换鞋凳上下两层的鞋柜,原木色与白色搭配,简单又好看,特别美观大气。自带换鞋凳可以方便坐着换穿鞋子,同时安装了全身镜,进出门的时候都可以对着镜子整理自己穿着,毕竟是女孩子比较注重衣着哈,其实也很有必要哈。一个人独居生活,拥有这样的鞋柜真的很给力啦!

餐厅布置一张灰色方形餐桌,岩板的材质非常有质感,与整个空间的原木风完美搭配,协调又好看。即使平时家里来客人了,也足够方便位置就座用餐。不管是横竖摆放餐桌,都比较合适。


由于入户大门正对着客厅沙发直到阳台区域,其实就是望穿客厅,考虑到这点设计了一个吧台作为隔断,同时与餐边柜组合,显得非常大气,可以提供大量的储物空间。以后生活过程中,再多的东西都方便收纳起来,非常赞。柜子都是全屋定制的,质量与做工都还不错,细节处理也比较好。

客厅与阳台打通,增加了很多室内面积,空间显得更宽敞了。电视墙直接贴的是石膏线条,做一些比较简单的造型还是很有必要,不会显得那么单调。电视机直接挂墙上,比直接放在电视柜安全,更节省空间。电视柜和茶几都是白色,搭配起来比较协调,真心不错。

电视背景墙侧面的角度,可以看到石膏线条做电视墙的话,造型上非常简约,不会让人有压抑感,看着很舒服。电视机直接挂墙上,比放在电视柜安全,更节省空间。角度刚好合适,比较符合人体工程学。顶面安装的吊灯真心不错,非常个性,亮度足够。
推荐阅读
- 装修|淋浴房还可以坐着洗澡,一开始很不理解,装修后才发现太实用了!
- 大悦城|家里这两个地方别漏了贴瓷砖,许多人为了省钱,入住就后悔了
- 贷款|5月起,“2道铁令”,今后这1种买房方式再也行不通了
- 住宅|现在买房,选“高层”还是“低层”好专家20年后差别很大
- 管道|为什么说:再穷也不买二层?了解这些弊端之后,就知道多糟心了!
- 床头柜|95后姑娘的“穷装”卧室火了,环保又精致,软装的力量真强大
- 建房子|面宽11米, 进深16.5米的农村三层别墅, 前后有花院还带车库, 完美!
- 拉萨|付金雅律师解读:婚前房产, 婚后共同还贷离婚后能分得财产吗
- 房子|退休以后当“包租婆”,该庆幸还是后悔?答案或许和你想的不一样
- 垃圾桶|家庭主妇:厨房地柜不要全打满,空一格更实用!后悔我家装太早了
