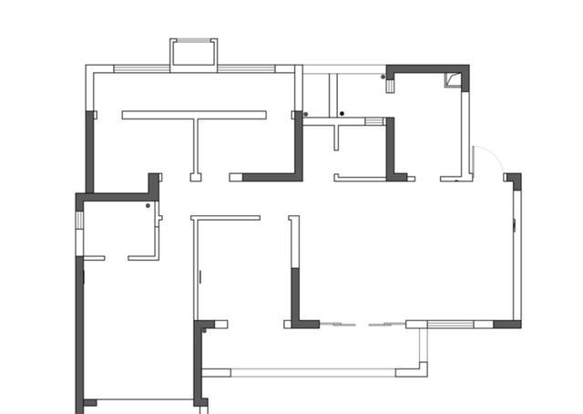
虽说在装修新房时,可以对户型结构进行改造,但户型优质的新房,肯定是会受到更多人青睐的。因为这样不仅在装修设计时会非常省心,还能提高空间使用率,从而增加居住舒适度。而什么样的户型才能称得上优质户型呢?其实除了常见的南北通透户型,带“横厅”结构的户型,也越来越受欢迎了。比如本期给大家分享的这套案例,就是一套典型的横厅户型,全屋不仅结构布局非常的合理,空间功能性也相当的不错;或许也只有居住过,才能感受到有多爽吧。原始结构图

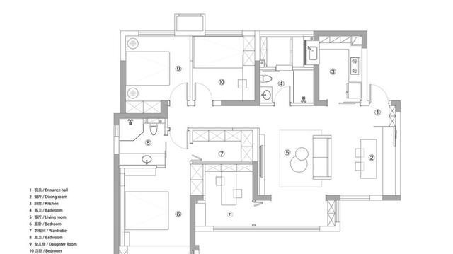
新房套内拥有110㎡,四室两厅两卫的户型,屋主为一对年轻的小夫妻。其实对于新房的要求,屋主夫妇的要求并不高,只希望有一个轻松温馨的居住氛围,且要能拥有充足的收纳、休闲、娱乐、办公等功能。从原户型结构来分析,除了进门处没有独立的玄关,其它空间都还是比较工整的,且没有明显浪费的情况。不过考虑到家里目前只有两个人居住,四个房间完全用不到,所以在房间的功能定位上,则重新做了规划。平面方案图

户型结构改造如下1、进门处增加隔断,解决玄关功能,餐厅以卡座的结构来设计,从而使空间更加的工整。2、将南边的次卧一分为二,一部分面积用来规划衣帽间,另一部分则作为功能间来使用。3、北边的阳台全部纳入房间当中,分别作为儿童房及客房来使用。4、厨房外面的小阳台做为生活阳台来使用,以释放南阳台的空间。玄关

鞋柜设计在进门左手边的内陷空间处,采用分体式结构来规划柜体,可以起到不同的衣物收纳需求,底部预留20公分做悬空设计,既表现出了柜体的轻盈性,也方便了卫生打理。而利用一扇长虹玻璃做为玄关隔断,则在保留通透性的情况下,也增加了视觉美感。

在客餐厅地面铺地板的情况下,单独给玄关铺上六角地砖,不仅起到了非常不错的实用性,也增加了两者衔接后的美观度。同时,由于地砖还延伸到了餐厅里,所以也表现出了视觉延伸效果。餐厅
【 收纳|难怪“横厅”结构的新房,越来越受欢迎,看了她家才知道有多爽!】
紧挨着鞋柜采用卡座结构来设计餐厅,在保证空间工整性的情况下,也解决了餐厅杂物的收纳需求。而给墙面安装上悬挂壁灯,以及配置的落地灯,也让该角落又兼具了阅读、办公等功能。客厅

纵观整个客餐厅,由于是属于横厅结构的,所以不管是空间感,还是动线体验,又或是空间互动性,都非常的不错。而顶部的无主灯设计,不仅表现出了空间的简洁性,微弱的灯光也能很好的烘托出空间气氛。

给电视墙做上灰色的艺术涂料,既与墙面的乳胶漆很好的融合在了一起,也能突显出不错的质感。底部部分墙体做内陷设计,并配置上灯带,则起到了烘托气氛的作用,以便让整个客餐厅可以表现得更加温暖。

推荐阅读
- 春节|如果能重来,阳台一定“9不装”,并非迷信,是过来人的经验教训
- 阿里巴巴|宝龙地产“期望”过高 未达销售目标
- 贷款|5月起,“2道铁令”,今后这1种买房方式再也行不通了
- 住宅|现在买房,选“高层”还是“低层”好专家20年后差别很大
- 集体经济|征拆赔款找,查了才知有这么“多”…
- 宝龙地产|银行大厦几十层高,能“物尽其用”吗?各个楼层都是干啥的?
- |“最惨购房者”相关话题登热搜榜首,到底是怎么一回事?
- 房贷|“重启”拆迁?这2类房子或全拆重建,两类人受到影响
- 床头柜|95后姑娘的“穷装”卧室火了,环保又精致,软装的力量真强大
- 收纳|去邻居家参观才知道,卫生间不装柜子这样设计,防潮耐脏好清洁
