收纳|90后创业小夫妻的家,虽然不大但足够温暖,让漂泊都有了意义
90后创业小夫妻的家,虽然不大但足够温暖,让漂泊都有了意义
业主是一对忙碌的年轻人,他们远离家乡到广州创业,打拼多年的小两口终于给自己一个安稳的家,因为平时还需要在家中工作,所以业主希望自己的家时一个兼具生活和工作的地方。同时也需要更多的收纳空间,来满足日常的工作和生活需求。

房屋户型
:三室
房屋面积:
50平方米
装修预算:4
0万
所在城市
【 收纳|90后创业小夫妻的家,虽然不大但足够温暖,让漂泊都有了意义】:广州
设计师:
李文伟
主要建材
:线板、木皮、喷漆、大理石、黑铁漆、铁件、玻璃、木地板、壁纸

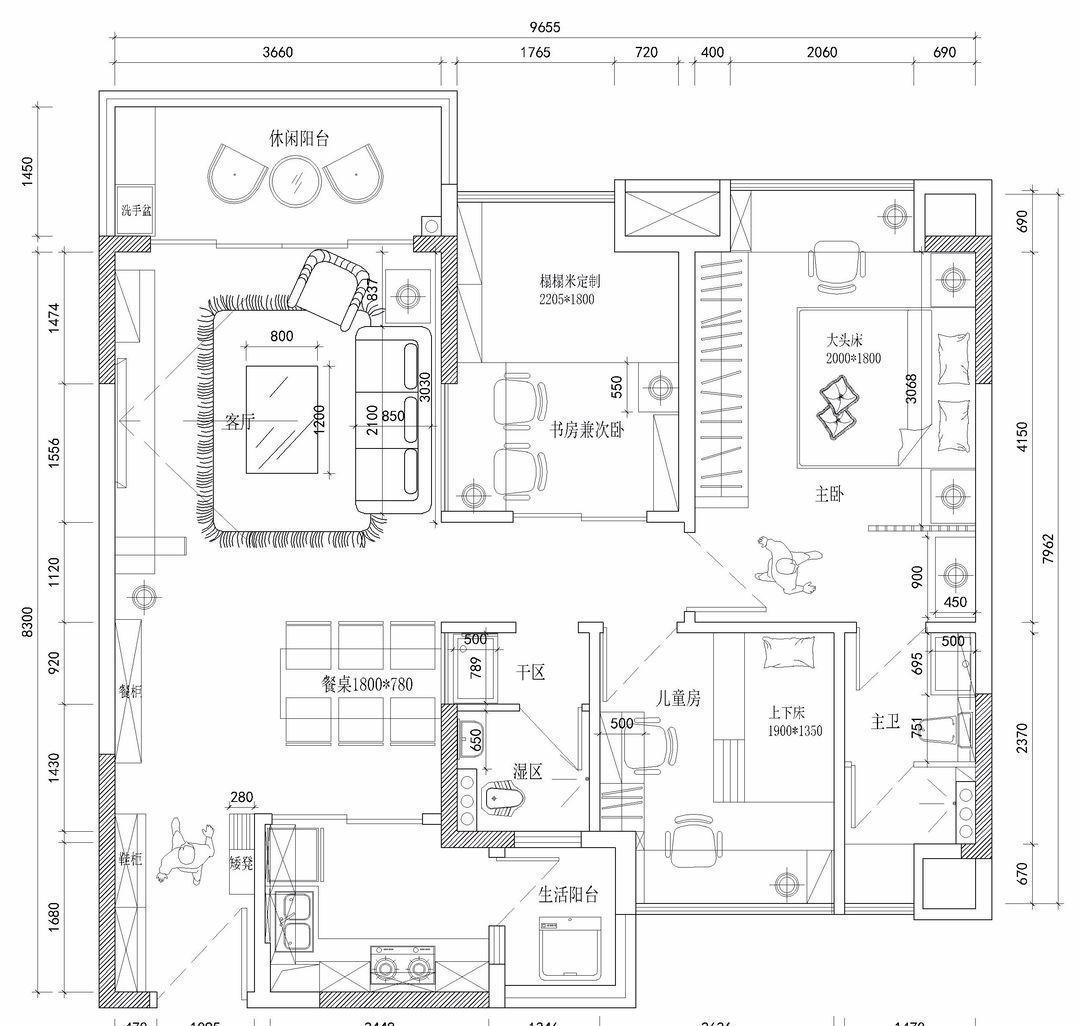
【户型图】


房屋的面积虽然不大,但是设计师还是把有限的空间划分出功能齐全的三室一厅。
不仅有足够宽敞的生活区,还为业主两个人在家中打造出一个温馨的休息娱乐区,让夫妻两个人可以在忙碌的生活之余,抽出时间来享受下难得的休闲时光,共同畅想未来更加幸福的生活和岁月。

【玄关】

设计重点:增加大容量收纳区
玄关区域改造之后主要增加更多的实用功能。增加了鞋柜一直延伸到天花板上,可以收纳非常多的鞋子。中间留出放置小物件的位置,隐藏的灯带巧妙不占用空间,又能渲染的玄关更加清透明亮。
【客厅】


设计重点:理石地面可以反射亮光
客厅的设计非常有质感,鲜艳的明黄色皮质沙发大气又高级,可以变换位置的组合茶几十分的小巧,业主两个人可以在这里舒服的休息或者招待朋友。


考虑到空间的采光,所以客厅的没有多余的隔断,阳台的全景落地窗更是保证了有足够的光源照射进来。和其他空间也是用玻璃门做隔断,这样还可以让阳光照射到其他的空间里。


干净的理石地面,流畅的空间线条不仅勾勒出了空间的立体感还划分出更加明确的格局。

【餐厅】


设计重点:开放式布局敞亮又温馨
餐厅位于客厅和玄关之间,开放式布局没有明确的界限划分餐厅,感受到足够的宽敞和明亮。餐边柜的背景墙和天花板相连,一直延伸到餐桌晾一边,视觉上形成了包围感。
推荐阅读
- 装修|淋浴房还可以坐着洗澡,一开始很不理解,装修后才发现太实用了!
- 大悦城|家里这两个地方别漏了贴瓷砖,许多人为了省钱,入住就后悔了
- 贷款|5月起,“2道铁令”,今后这1种买房方式再也行不通了
- 住宅|现在买房,选“高层”还是“低层”好专家20年后差别很大
- 管道|为什么说:再穷也不买二层?了解这些弊端之后,就知道多糟心了!
- 床头柜|95后姑娘的“穷装”卧室火了,环保又精致,软装的力量真强大
- 收纳|去邻居家参观才知道,卫生间不装柜子这样设计,防潮耐脏好清洁
- 建房子|面宽11米, 进深16.5米的农村三层别墅, 前后有花院还带车库, 完美!
- 拉萨|付金雅律师解读:婚前房产, 婚后共同还贷离婚后能分得财产吗
- 房子|退休以后当“包租婆”,该庆幸还是后悔?答案或许和你想的不一样
