建房子是人生大事,所以准备工作一定要做好,房子一定要设计好,这样建好之后才不会留下遗憾。其实建房子除了外观看上去美观,住起来一定要舒适合理。今天推荐的这三款二层自建房设计图,占地虽然还没有超过120平米,但是室内布局一点不紧凑,布局非常合理,一家人住足够了。户型一:农村二层楼房设计图,占地102平米,主体造价不到20万图纸介绍:本户型占地102平方米左右,一楼进入室内就是宽阔的大客厅,方便接待客人,餐厅与厨房相连,一起设在西北侧,中间用推拉门隔开,减少油烟气味对就餐的影响,提供业主更优渥的就餐环境,二层主要作为生活居住区,满足一般家庭的人口居住条件。占地面积:10.76m*10m,102平方米左右;建筑层高:二层;建筑高度:8.69米(含屋顶);设计功能:一层户型:客厅、厨房、餐厅、卧室x2、卫生间;二层户型:卧室(带书房)、茶室、卧室x2、卫生间、露台、阳台;



二层楼房设计图户型二:农村小户型二层别墅设计图,占地不到100平米,旋转楼梯设计图纸介绍:本户型占地不到100平米,外观简单精致,小户型设计,还带旋转楼梯!带超大落地窗美观且实用,使室内客厅显得更加宽敞明亮,是现代年轻人的喜爱;二层四间卧室,足够满足一家人的住房需求,该户型功能设计合理,布局紧凑,实用性较强,住房体验佳,非常适合农村自建房。占地面积:10.6m*10.8m,97.08平方米左右;建筑层高:二层;建筑高度:9.3米(含屋顶);设计功能:一层户型:客厅、神位、棋牌室、卧室x2、卫生间;二层户型:起居室、卧室x4、卫生间、阳台;


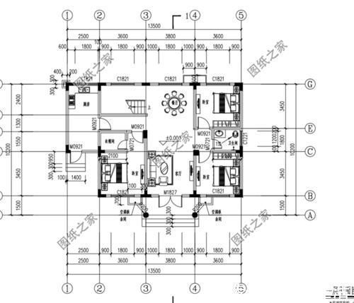
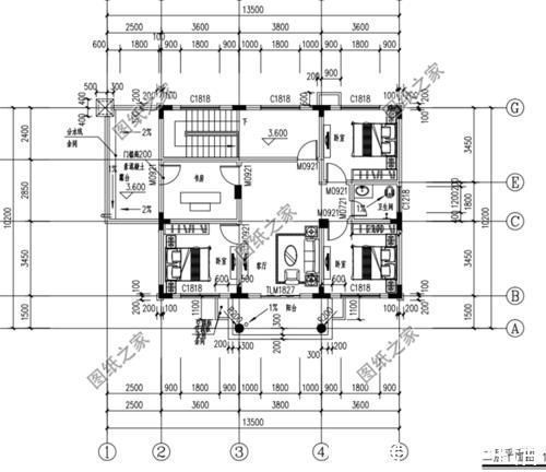
二层楼房设计图户型三:农村二层楼房设计图,占地110平米左右,外观简单时尚图纸介绍:这款二层楼房设计占地110平米左右,外观简单时尚,非常大气,黄色外墙装饰深浅有度,搭配协调有质感,小楼二层的阳台可以亲近大自然。占地面积:13.5m*10.2m,110平方米左右;建筑层高:二层;建筑高度:9.77米(含屋顶);设计功能:一层户型:客厅、餐厅、厨房、卫生间、主卧(带衣帽间)、卧室×2;二层户型:客厅、、卧室x3、书房、卫生间、阳台、露台;



二层楼房设计图这三款户型大气简约,不知道大家最喜欢哪一款呢?欢迎下方评论留言。
推荐阅读
- 卫生间|129平现代美式三居室,打造出一个舒适又温馨的美式家
- 收纳|去邻居家参观才知道,卫生间不装柜子这样设计,防潮耐脏好清洁
- 卫生间|什么才叫好户型?来看看这5个标准,你家房子符不符合?
- 卫生间|房屋装修6大暗坑,哪个踩了都会导致返工,希望你没踩到。
- 家庭成员|卫生间进门洗漱台,中间马桶,里面淋浴,怎么装?有哪些设计方案?
- 洗衣房|这三款农村四合院设计图让不少城里人羡慕,父母看了也欢喜
- 马桶|把洗手台埋到墙里,卫生间一下变大了很多,美观又实用,好处多多
- 露台|推荐5款三层别墅设计图纸,最适合农村建的房子
- 淋浴房|越来越多人卫生间不装马桶了,如今流行这样设计,实在太聪明了
- 矮墙|小户型卫生间别再装玻璃淋浴房了,头一次见这种设计,太聪明了
