她为了孩子搬到上海,花费半年多,将38平一居室变成温馨的家
在寸土寸金的上海,能够有一个属于自己的家是很多年轻人的梦想。业主因为考虑到孩子上学问题,所以在上海购买了一个小户型的学区房,整个房间只有38平方米,可以说是非常的狭小了,但是业主希望住在里面能够让孩子有足够的空间休息和学习,所以对家居设计更侧重于实用性能。

房屋户型:
一室
【 台式|她为了孩子搬到上海,花费半年多,将38平一居室变成温馨的家】房屋面积:
38平方米
装修预算:
30万
所在城市
:上海
设计师:
李文伟
主要建材:
线板、木皮、喷漆、大理石、黑铁漆、铁件、玻璃、木地板、壁纸

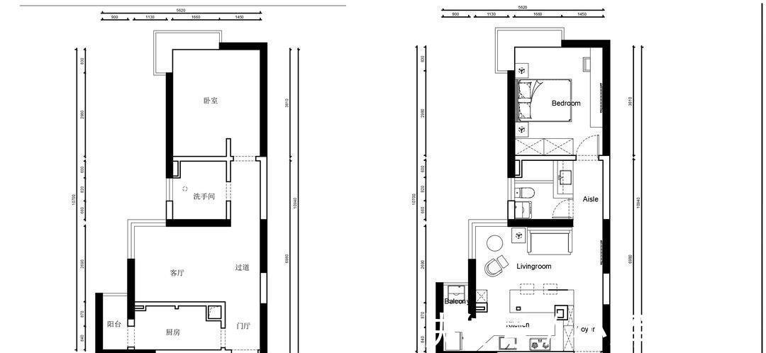
【户型图】


因为业主一家人平时很少在这里住,所以希望能够在最少的成本里打造出一个足够实用简洁的家。因为户型结构问题,整个空间的采光非常差,在客厅里甚至感受不到阳光,厨房更是一个暗室。

所以设计师在经过多次的测量和考察之后,最终敲定了改造方案,为业主一家打造出一个简单但是足够实用的38平方米的小家。

【客厅】


设计重点:拆除隔断保证足够采光
客厅的原始结构比较的拘束,因为隔断较多影响了采光,所以设计师改造之后打破了传统的空间布局,把不必要的隔断全部拆除,打造出一个一体式空间布局。


重新改造过后的客厅以浅白色为主,让空间在视觉上能够更加干净整洁。原始的沙发和电视位置进行了调换,沙发对面设计成了吧台式餐厅,大大地提高了空间的利用率。


客厅的角落里有两面落地窗,保证了整个空间的光源。没有阻挡的空间改造之后变得更加的清透和大气,没有了之前的压抑和昏暗。
【厨房】


设计重点:隐藏灯带确保空间明亮
原来的厨房就是一个暗室,改造之后设计师更换了整个厨房的墙面和地板,全部采用暖白色的材质。定制的橱柜和吊柜可以收纳更多的厨房工具,吊柜里的隐藏灯带又可以确保厨房的明亮度。


推荐阅读
- 大悦城|家里这两个地方别漏了贴瓷砖,许多人为了省钱,入住就后悔了
- 她家148平米,进门就被玄关迷住,不做吊顶跟背景墙,阳台超漂亮
- 薄荷蓝|走进她家,才知什么叫美观与实用并存,全屋温暖又清爽,太舒服了
- 主卧室|为了20㎡小院子,老公坚持买一楼,完工进屋就被迷住了,晒晒
- 乳胶漆|看她家装修,比样板房还漂亮,电视墙特别实用,值得做参考!晒晒!
- 购房置业|为什么这个阿姨开发商给她退房后,还要大闹售房部
- 老房|她坚持买下73㎡一楼老房,完工后逆袭『双花园美宅』,太睿智了!
- 罐罐|听我一句劝:厨房别再摆瓶瓶罐罐,学她家这样做,美观方便还不贵
- 北京市|京房回忆023,长安6号,唐巢,成远大厦,为了钱信用算个屁
- 黄晓明|她还买不起房?
