一楼,潮湿又昏暗,大部分人买房都不愿意选。但本期女主却是个例外,她坚持买下这套73㎡的一楼老房子,改造之后不仅实用美观,还多了两个花园,快来一起看看吧!本期,甜茶为大家分享的是一套面积约73㎡的两居室老房改造案例。屋主是一位90后单身女孩,平时都是一个人住,周末父母来家的话,偶尔会留宿。两个卧室对于屋主来说足够了,她的主要诉求是能够提升空间利用率,同时保证居住的舒适性!

▲装修实拍图//户型分析//和大部分老房子一样,没有明确划分客厅和餐厅,而且公共区域的面积非常小。卧室旁边是一个大的天井,主要起采光的作用。

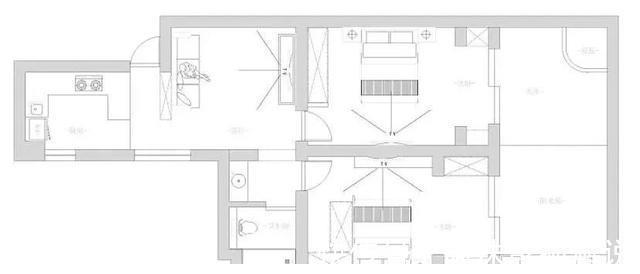
▲户型平面图//设计亮点//①玄关增加透明玻璃隔断,保证屋内的私密性;②厨房台面向外延伸做餐桌,增加餐厅的功能;③将天井一分为二,改做小院,增加休闲区和清洗区。

▲装修平面图01玄关:收纳柜 长虹玻璃隔断,简约实用原户型是没有玄关的,一进家门就能看到客厅全貌,私密性较差。为了保证屋内隐私,同时提升收纳性,设计师这玄关处做了“收纳柜 长虹玻璃隔断”的组合设计,兼具鞋柜、储物和换鞋凳等多重功能,简约实用且不会影响采光。

▲玄关实拍图02客厅:空间小巧紧凑,采用无主灯设计客厅空间比较小,而且采光也不是很好。为了减少空间的压抑感,客厅选择做无主灯设计,并用筒灯、射灯和落地灯进行替代,光源更加丰富!

▲客厅实拍图客厅一侧墙面上,悬挂了穿衣镜,方便屋主出门前整理仪容,同时也能提升屋内的空间感。

▲客厅实拍图电视背景墙用立体白砖做了造型,简约又有层次感。65寸的大电视机靠墙摆放,尺寸刚刚好,观影效果也超级棒!

▲客厅实拍图03厨房:L型厨房设计,动线合理厨房为L型的格局,配色以“白色 薄荷绿”为主,视觉感简单又清新。薄荷绿色的橱柜特别少见,刚开始屋主还担心效果不好,安装好以后彻底被它的颜值所征服。

▲厨房实拍图厨房内的小家电,颜色也都以白色为主,契合整屋装修风格。不过,屋主的锅具,专门挑选了马卡龙粉色,和薄荷绿色的橱柜搭配在一起,少女心满满!

▲厨房实拍图04餐厅:与厨房相连,精致迷你原户型是没有独立的餐厅区域,于是设计师将厨房台面进行延伸,将L型的吧台作为餐桌,可容纳2-3人同时用餐。台面与地面保持一致,均选用了水磨石花纹,简洁又大气。

▲餐厅实拍图05主卧:与小院相连,有独立的办公区设计师将卧室空间向外延伸了一部分,并做了白框玻璃推拉门,以此连接主卧与小院两个空间。由于卧室的承重墙垛不能拆除,于是屋主在两侧墙垛与分户墙之间,分别嵌入了衣柜和书桌,提升了空间利用率。
推荐阅读
- 屋主|56㎡小户型老房改造,小而美的设计!
- 她家148平米,进门就被玄关迷住,不做吊顶跟背景墙,阳台超漂亮
- 薄荷蓝|走进她家,才知什么叫美观与实用并存,全屋温暖又清爽,太舒服了
- 旧城改造|5万亿旧改来了,20年以上的老房子再度吃香?这两类人有福了!
- 购房置业|今年起,农村老家的老房子,统统按照“新规”处理,子女提前知晓
- 烤漆面|老公坚持餐厅不做柜子,原来用吊兰做隔断可以这么漂亮,学到了
- 购房置业|夫妻俩大胆改造老房,坚持把3房改为1房,过于舒适了
- 主卧室|为了20㎡小院子,老公坚持买一楼,完工进屋就被迷住了,晒晒
- 乳胶漆|看她家装修,比样板房还漂亮,电视墙特别实用,值得做参考!晒晒!
- 购房置业|为什么这个阿姨开发商给她退房后,还要大闹售房部
