▲床尾灰色斗柜上布置黑白墨色的装饰画与花瓶,也让空间显得更加优雅高级。
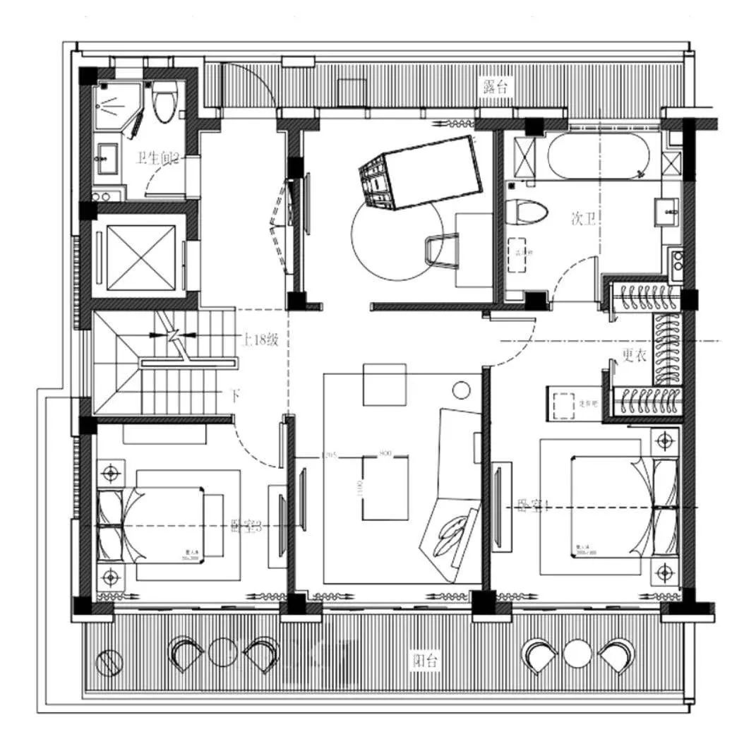
次卧

▲次卧也是灰色的软硬包墙面空间基础,加入灰蓝配的床单,带来一种儒雅端庄的舒适与档次感。
女孩房

▲女孩房在床头墙加入灰色软包,床头挂上一幅黑白粉色组合的装饰画,布置粉色调的装饰画,两侧床头柜对称摆上粉色的床头灯,带来一种温馨优雅的睡眠氛围感。

▲床侧边的斗柜上,布置粉色装饰画与花瓶插花,也让空间显得更加清新温情而舒适。
男孩房

▲男孩房在无主灯的空间下,床头墙与床铺都是未来科技主题的设计,飞船造型的床铺,布置在灰白色的的地毯上面,让空间显得现代优雅而有趣。

▲床旁边一张休闲沙发椅,也为小主人提供了一个放松休闲的小位置。
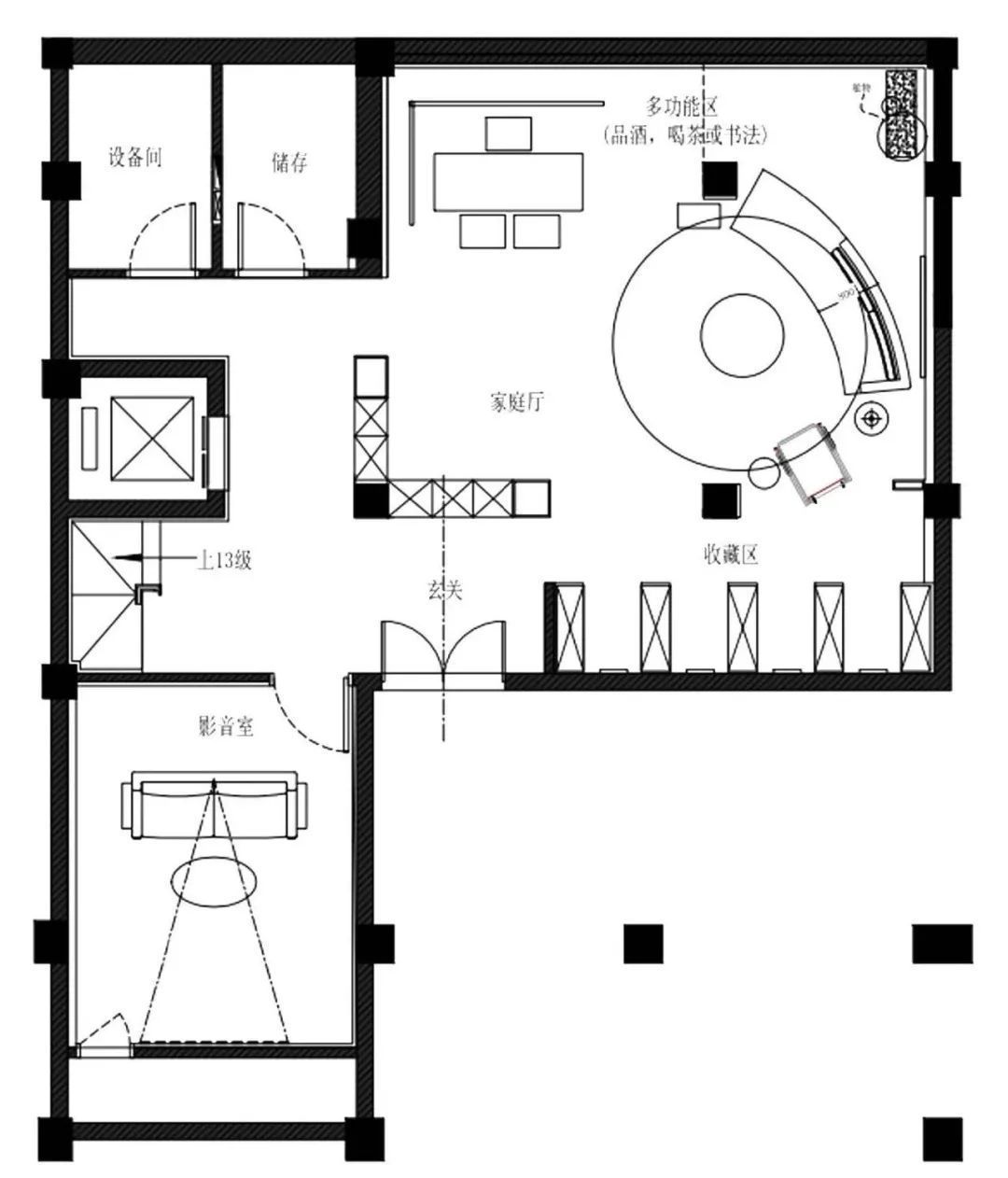
休闲厅

▲休闲厅也是以灰色的墙面、沙发与地毯,背景墙挂上一个圆形的装饰画,搭配玻璃材质的茶几,让空间显得格外的现代优雅而时尚高级。
品茶区

▲地下室里还设置了一个品茶区,为主人招待客人、喝茶聊天提供了一个情趣优雅的空间。

▲茶台上布置儒雅的茶具、花瓶与卷子书籍,书桌后方还布置了独特的屏风装饰,让空间充满禅意端庄的高级感。
儿童玩耍区

▲隔层位置布置一个儿童玩耍区,地面铺上地毯,摆上颜色活泼可爱的儿童小凳子,墙面加入仙人掌造型的装饰,还有独特的艺术摆饰品,带来一种童趣可爱的活动空间感。
衣帽间

▲主人专属的衣帽间,里面开放定制柜里,合理地做了挂衣区、鞋子展示区、包包区与梳妆台,为主人更衣打扮提供了一个私密而舒适的空间。
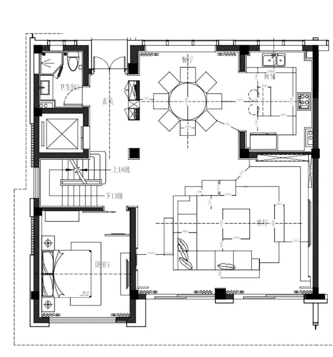
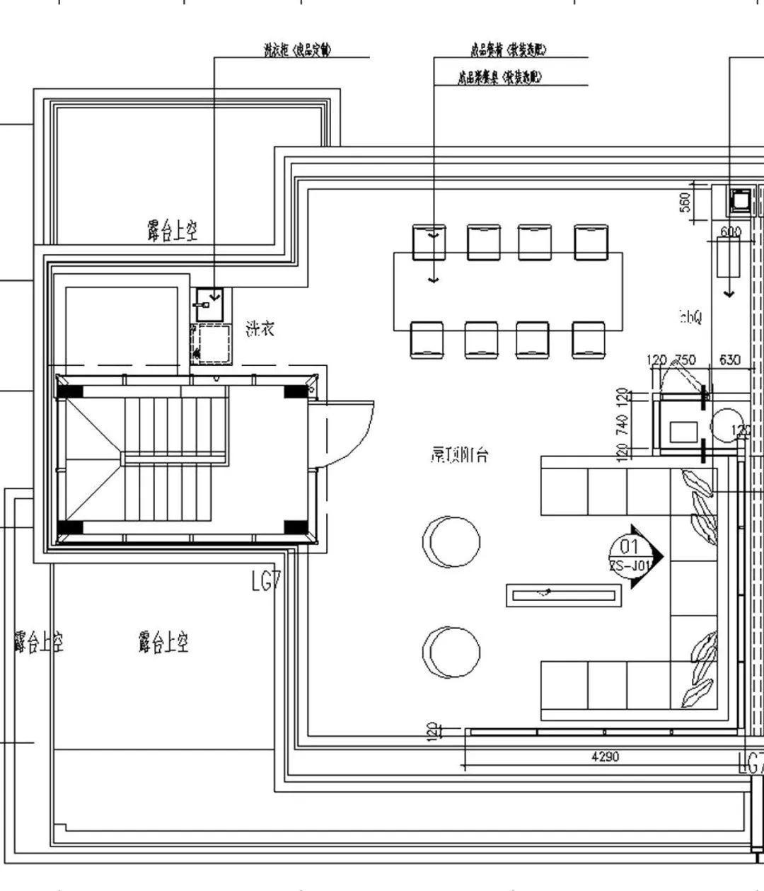
平面布置图






硬装设计:梁景華,软装:元禾大千,摄影:鲁哈哈、张浩,点评:设计馆
推荐阅读
- 屋主|56㎡小户型老房改造,小而美的设计!
- 现代风|168㎡现代风,带着浓郁的归属感与愉悦感
- 深色|155㎡简约风,承载着三代人的生活,不花哨让家务少一半
- 混淆感|146㎡北欧经典白色三居室,诠释令人心醉的优雅
- 饱和度|173㎡轻奢新中式,古典和现代的碰撞,唯美浪漫!
- 背景墙|97㎡现代风,以时尚打造空间,以新颖突出特点
- 地板|160㎡四居室,玄关比我家卧室都大,这才是真正的低调奢华有内涵
- 棚户区改造|开盘预告|合肥又有6盘要加推,均价1.39-2.54万/㎡全都有
- 小房间|参观140㎡大婚房,朋友都夸餐边柜有档次,我却更喜欢主卧的飘窗
- |73㎡复古风两居室,年轻夫妻的高品质生活
