燃气灶|家装经验谈 篇八十二:【那个胖师傅】厨房橱柜设计施工如何避雷( 三 )
我们一开始也没有考虑的那么多……
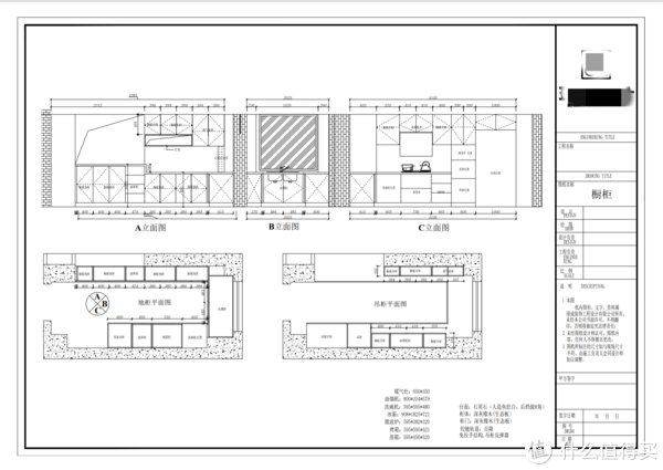
二次复测以后你会拿到最终下单的图纸。
如果这个时候你没有发现问题,直接下单,那么后面的“损失”基本上需要自己承担。
我们目前的图纸长上面那样。
- 【 燃气灶|家装经验谈 篇八十二:【那个胖师傅】厨房橱柜设计施工如何避雷】橱柜需要你配合的事情大多数已经完成了,剩下就是厂家生产---送货---安装,安装好之后,现场需要把开孔的地方开好,台盆安装完毕之后预定好的家电就可以入场安装。
小TIPS:
- 在复测之前,请一定要把需要用的设备确定下来,并且告之商家具体型号,且有文字说明。这样万一以后有了错误,你已经尽到了告知义务,责任在谁就比较容易划分了。
- 这里要跟朋友们特别提醒一下:如果你选择的是台下盆,请要求商家把台盆带到厂里进行安装加固。


这样加固盆和台面之间胶挤得足够充实,牢固度会高非常多。现场安装通常就是现场切割打点玻璃胶。
胖师傅这周的碎碎念结束了,小伙伴们如果遇到什么问题,也欢迎留言一起讨论啊。
推荐阅读
- 垃圾桶|家庭主妇:厨房地柜不要全打满,空一格更实用!后悔我家装太早了
- 装修|总结我的新家装修完就后悔的37条防坑经验!记住少走弯路!
- 乳胶漆|看她家装修,比样板房还漂亮,电视墙特别实用,值得做参考!晒晒!
- 布局|餐厅布局有很多不一样的设计,看看有没有合适你家装修的效果
- 石材|2022年室内家装新趋势,极简风或成“冷门”?
- 衣帽间|退休阿姨晒出自己的新家装修全屋大面积护墙板造型,温馨有个性
- 山水|我把家装修成了五星级酒店!完了,凉凉……
- 户型房|进门没有“玄关”的户型,学学人家这样改造,每家装修都能用得上
- 飘窗|学她家装修,电视墙很大气,过道打柜子太实用了,全屋都很喜欢
- 地面|头一次见卫生间贴瓷砖留空一排,真是太聪明了,后悔我家装早了
