卧室|三层农村自建房户型图设计,带车库,一层带多少间卧室才算合适
隋着农村的生活环境和生活水平逐渐变好,越来越多的人选择回农村建房,未来农村发展不亚于城市,新农民,新职业不断吹生以及大家的环保意识和生态意识有了全新的认识,农村发展前景一片光明!
落叶归根选择回老家盖房,你会是其中的一员吗?下面给大家分享一套户型设计图,请笑纳!分享之前叨叨几句。
地基尺寸:12*16.8m
一层:设计客厅、厨房、2卧室,一公共卫生间、一车库、一洗衣间;
一层很多人关心的问题是卧室到底设计几间合适?下面我们一起讨论讨论
一层方便,不用爬楼梯,当然土豪的话可以设计电梯,但目前大多数人而言这造价太高,所以对一层卧室设计而言就重要了,主要问题是针对老人,一层可以设计一到两间卧室,方便老人居住,避免爬楼梯,面积大的可以设计两间,面积小的一间就好了,有条件的老人卧室可以带个卫生间,虽说对老人而言是方便,但是也会有不少隐患,在此略去,大家想想会有哪些安全问题?
【 卧室|三层农村自建房户型图设计,带车库,一层带多少间卧室才算合适】二层:设计4卧室、一小厅、一公共卫生间、一阳台(针对只设计一间卫生间问题这里不再叙述)
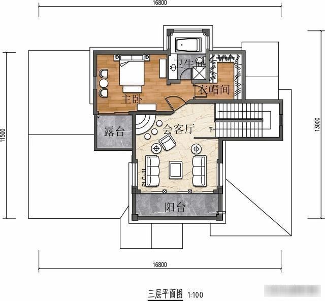
三层:设计主卧室一间带卫生间和衣帽间、设计会客厅一间、阳台和露台分别一处;
三层设计主卧安静、避免打扰、整层只有一间大主卧;有露台和阳台,生活足够满足!
具体户型设计图分享如下!
一层平面设计图
二层平面设计图
三层平面设计图
推荐阅读
- 地板|160㎡四居室,玄关比我家卧室都大,这才是真正的低调奢华有内涵
- 床头柜|95后姑娘的“穷装”卧室火了,环保又精致,软装的力量真强大
- 建房子|面宽11米, 进深16.5米的农村三层别墅, 前后有花院还带车库, 完美!
- 别墅|参观亲戚上海的豪宅,别墅硬是住成农村房,真是糟蹋了好房子
- 购房置业|今年起,农村老家的老房子,统统按照“新规”处理,子女提前知晓
- 修建|精选10套三层户型图纸,占地面积均不足百平,尤其适合新农村修建
- 上海市|2022年农村人要“享福了”?实行按户补贴,跟村民们的房子有关
- |龙吟师傅教你在卧室找到自己的桃花位
- 洗衣房|这三款农村四合院设计图让不少城里人羡慕,父母看了也欢喜
- 购房置业|农村建新房就选这套四层别墅,占地100多平,8间卧室人人都有地睡
