李文伟|240平大平层结构,用艺术诠释空间,为业主打造灵魂的栖息之所
240平大平层结构,用艺术诠释空间,为业主打造灵魂的栖息之所
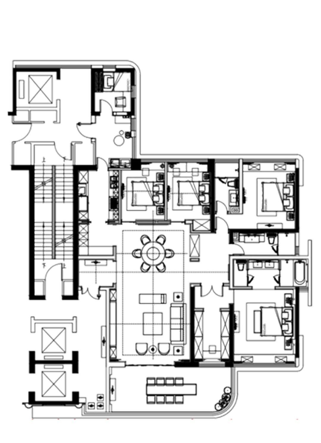
这个房屋是一个使用面积240平方米的大平层结构,整个房屋的内部空间非常宽阔通透,业主也是一个很有想法的人,在装修的时候希望可以打破传统的构思,摒弃大家对于中式风格的固有印象,融入现代感的设计,创作出一片灵魂的栖息之所。
房屋户型:
四室
房屋面积:
240平方米
装修预算
:50万以上
所在城市
:惠州
设计师:
李文伟
主要建材
:线板、木皮、喷漆、大理石、黑铁漆、铁件、玻璃、木地板、壁纸

大平层的结构可以说是一个比较完美的户型了,整个房间通透明亮,业主比较喜欢中式的质朴,但又不希望自己的家里过于沉闷,所以装修的时候设计师对中式风格进行了改造,加入了现代化的设计,打造了一个更加完美的生活空间。
【玄关】
设计亮点:入户即风景
入户的玄关区域是定制的储物柜,底部的储物柜可以满足一家人放置鞋子的需求,大理石的面板很有质感,搭配上绿植让整个入户空间变得更加完美。
【餐厅】
设计亮点:富有设计感的吊灯
餐厅极具设计感的吊灯为整个空间注入了灵气和活力,搭配上精致的餐具和充满活力的绿植,让整个用餐空间都变得很有品位。

餐厅的桌椅和整个空间的色调一致,给人一种沉稳大气的感觉,同时也保证了空间的整体性和统一性。
用鲜花和绿植装点空间,让空间多了一种生活的纯净气息,让我们在享受美味的同时也有也会更加放松。

【客厅】
设计亮点:通透大气
整个客厅空间都是开放式的设计,打通的环境加上落地窗,让整个空间十分的通透大气,让人觉得十分的放松和悠闲。

设计师通过恰到好处的艺术手法和中式的元素,为整个空间注入了一种优雅的理念,恰到好处的东方韵味,在客厅当中和时尚现代感相互交融,找到了一种更适合年轻人的中式家装风格。

轻柔的白色纱帘搭配淡雅的绿植,让我们在享受温暖阳光的同时,也可以和家人聊天畅谈,十分惬意。

【卧室】
推荐阅读
- 中产家庭|预计新增2400万中产家庭,除去吃喝年入7万才达标,超45岁也不算
- 现代简约|240㎡现代简约 | 演绎东方人文逸趣,简洁舒怡
- 重构?预见?|颜伟阳:受益于家居家装下乡政策,2022年是行业发展好时机 | 颜伟阳
- 乔伟|简单耐看不易过时的装修风格你喜欢吗?
- 新动态|橡树湾怎么样?看置业顾问王伟发布了一条项目新消息
- 李伟龙|买房时被要求购买装修包合理吗?律师:有权拒绝,可以不买
- 空间|240㎡现代轻奢,欧美范的硬装,复古范的家具,营造轻奢的高级
- 红桥|天津红桥西于庄1月最贵的小区均价超过3万/平,均价23240元/平
- 床尾凳|240㎡叠拼,简洁大气的现代别墅,150万打造出质感生活,羡煞旁人
- 镜面|错层设计太牛了,四层空间布局,让60㎡小户型秒变240㎡大豪宅
