设计师|开门即见厅他家经设计师一改,轻松拥有大宅独立玄关!
常常听到这句话:没有烂的户型,只有懒惰的设计师。其实,在小编看来,真正的室内设计,一般都会遵循这样的准则:从业主的角度出发,运用创意的设计手法,来解决业主现存的居住问题,改善居住者的生活习惯,提升居住者的生活品质。正如今天要和大家分享的这套案例,则最能体现这样的设计理念,设计师以人为本,通过对空间布局的把控和对风格材料的仔细拿捏,从而创造出一个集颜值与功能于一体的理想家居。

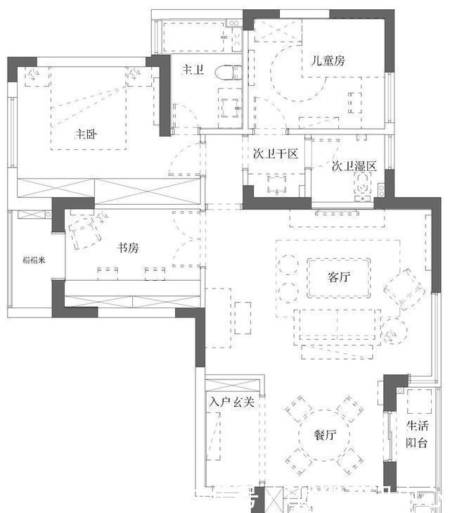
本案为98平简美三居,整体风格设计低调复古,简约温馨。设计师根据业主的家庭构成和生活习惯,对空间做了合理周全的布局与规划。 开门见厅的原始户型,于正对门处打造了一面通顶的收纳柜,隔出独立的玄关空间; 由于有两个阳台,所以将卧室的阳台打通,改造成榻榻米式的多功能空间。玄关玄关作为室内与室外的连接地带,是塑造家的第一印象的关键所在。设计师巧妙利用正对门的通顶玄关柜,打造出一个大宅范儿的独立玄关空间。
简约大气的吊顶,铺上一圈深色的马赛克,凸显了空间的层次质感。靠墙处摆放了素雅端庄的弯脚雕花矮柜,搭配各色装饰摆件和装饰艺术画,营造出复古典雅的空间氛围。客厅从玄关往里走,便是开放式的客餐厅空间。两个主要的功能空间以窗户之间的墙体与吊顶的横梁为隔断,既相互联系,又彼此独立。顶面采用井字吊顶+美式吊灯,营造出复古浪漫的美式情调。
整体空间以浅绿色为基调,渲染了清新自然的空间氛围。浅绿色皮质沙发与空间整体基调相呼应,搭配深棕色丝绒坐垫和各色抱枕,让两种材质产生有机的组合,让人捕获到空间的视觉焦点。
电视背景墙涂刷着浅绿色乳胶漆,并通过白色石膏线来做造型,丰富了空间的层次感。深色原木电视柜与茶几彼此呼应,为现代空间注入了含蓄而高雅的生活气息。
设计师通过复古精致的经典美式软装,来凸显空间的文化内涵。曲线优雅的复古家具,呈现出流动的韵律感,搭配精致的雕花设计和典雅的古典配饰,给人以古香古色的空间体验。
餐厅餐厅延续客厅的风格色调,复古典雅的美式烛光吊灯,营造了雅致浪漫的空间氛围。深棕色的原木餐桌椅,是追求品质生活的人们所喜爱的,简洁的线条非常有质感。
厨房厨房以浅米色橱柜+石英石台面,奠定简朴自然的空间氛围。而彩色复古的菱格花砖,瞬间成为空间的跳脱色,挑逗着人们的感官,赋予空间以复古、俏皮的个性。
阳台阳台与餐厅相邻,彰显自然肌理与质感的木饰面贯穿墙面与顶面,搭配一张简约优雅的铁艺单椅和落地灯,并席地摆放清新的花束,营造出清新自然的休闲空间。
推荐阅读
- 衣帽间如何装修?设计师推荐5大黄金布局|小小屋装修网| u型
- 屋主家|人生第一套140平新房,没请设计师,效果很漂亮,女儿特别开心!
- 厨房|日本人的厨房设计太巧妙了,这5个设计,值得国内设计师借鉴学习
- 家居|一启宅设计师品牌:一键开启美好生活 为大众创造理想家
- 上海|龙光2022年迎来“开门红”:上海首个项目开盘即售罄,获市场认可
- 设计|越来越多人家里不买餐桌,头次见这种设计师傅都惊呆了,太聪明了
- 新房|新房到手女主去验房,推开门懵了,售楼小姐:房间不见了
- 设计师|2.95亿!全美国史上最贵豪宅,中国买家出手了
- 动势|版式设计的几大技巧,知道的设计师早就已经升职了
- 房门|设计师真聪明,卧室房门这样设计,面积顿时增加一倍
