房梁|她家80㎡两室,一室改客厅,南北通透,改造得很温馨舒适,羡慕!
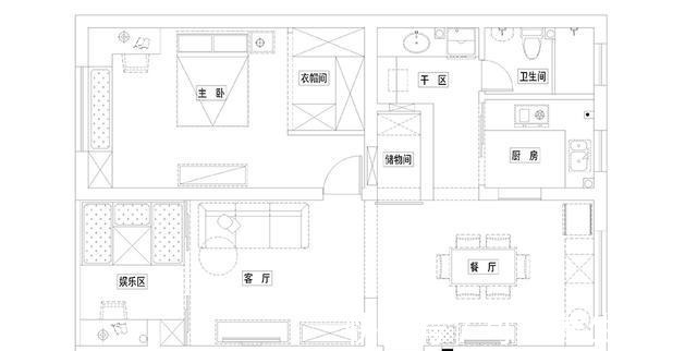
大家印象中的北欧风是不是都是极简黑白灰,时尚简约的那种,小居居这期内容给大家带来一个不一样的小户型北欧风,屋主艾女士喜欢饱和度很强的混搭北欧风,一改传统,尤其是中西结合的厨房和谷仓门的应用,令人拍案叫绝!下面就跟着小居居来看看艾女士的新家吧!户型图
玄关
由于是开门即见厅的尴尬户型,没有太多空间留给玄关换鞋处,但好在设计时必要的功能都顾及上了。宜家经典款鞋柜,墙上的壁灯用来晚归的照明,圆形壁镜出门前能整理下仪容仪表。餐厅
因为屋主艾女士非常喜欢做美食,希望有一个中西分离的厨房,所以设计师利用了北面的阳台做了西厨,并没有遮挡住餐厅的采光,空间的通透感仍然在。
这边能看到客厅,因为艾女士的老公非常喜欢看球,所以在餐厅位置也放了电视机,吃饭也不容错过任何精彩瞬间!
屋主二人都很喜欢饱和度高的东西,南瓜色的谷仓门是整个房最大的亮点,屋主超级满意,众所周知,网红谷仓门有很多类颜色,可南瓜色仅此一件。这里不放置玻璃推拉门而是谷仓门,是非常合适的,高饱和度的南瓜色不仅点亮整个家,而且明装的轨道推拉设计不会占用过多空间,不用凿墙破坏墙壁,安装方便,省了很多事。
门后是一个隐藏式的储物间,开合之间厨房可敞亮着也可封闭着。
南瓜色谷仓门旁边的窗洞,原本是厨房的门,如果全部砌平的话,是在太过单调,于是另辟蹊径,打个小窗户来交流,还能增加空间的采光,又能看到电视,厨房和餐厅互通起来。

窗户采用的折叠窗,如果在厨房进行爆炒,担心油烟四散,直接把窗户关起来就好了,很方便。做好的饭菜还能通过这个小窗口传递,减少不必要的动线。
厨房和储物间的结合是本期案例的第二大亮点!它原本像是单独隔出来的一间房,又能通过一个门洞与餐厅相连接,拐角处又能被利用为一个洗衣房,真的是:小空间的大利用呀!黑板漆的设计还有花砖的运用,都让这个走廊充满了活泼的感觉。厨房

原木色橱柜搭配白色墙砖和台面,浅色系的运用提亮了整个空间,轻快自然,L型的厨房布局,做饭十分的方便。客厅
从厨房出来,走向客厅。其实这个房子原本是80平的两室户型,是没有客厅的。最后根据屋主的生活习惯,还是将一间朝南的房间改成了客厅,同时将空间打造成开放式的,这样的不隔断,没有破坏原本南北通透的优点,更显得室内通透了。
推荐阅读
- 屋主|56㎡小户型老房改造,小而美的设计!
- 现代风|168㎡现代风,带着浓郁的归属感与愉悦感
- 深色|155㎡简约风,承载着三代人的生活,不花哨让家务少一半
- 混淆感|146㎡北欧经典白色三居室,诠释令人心醉的优雅
- 饱和度|173㎡轻奢新中式,古典和现代的碰撞,唯美浪漫!
- 背景墙|97㎡现代风,以时尚打造空间,以新颖突出特点
- 地板|160㎡四居室,玄关比我家卧室都大,这才是真正的低调奢华有内涵
- 棚户区改造|开盘预告|合肥又有6盘要加推,均价1.39-2.54万/㎡全都有
- 小房间|参观140㎡大婚房,朋友都夸餐边柜有档次,我却更喜欢主卧的飘窗
- 她家148平米,进门就被玄关迷住,不做吊顶跟背景墙,阳台超漂亮
