装配式建筑|农村盖房选这6套户型就够了,中式欧式全都有,建好就是人生赢家

农村盖房有南北方之分,南方多高楼,北方多小院,今天装配式建筑就给大家带来6套农村户型图,适合南北方,看看这些户型里,有没有你们喜欢的。
第一套户型是中式建筑,北方老百姓很喜欢,占地12X11米,客厅面积非常大,待客不限拥挤,坡屋顶既有利于排水而且增加了房屋高度。
平面布局图。
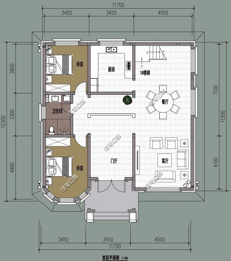
户型二是一套欧式小别墅,占地11X12米,如果是小两口盖房的话,这套户型很推荐,外墙用真石漆美化,既有质感而且不过时。卧室数量多,可以保证每个家人都有自己的独立卧室。
平面布局图。
平面布局图。
户型三是一套双拼户型,家里两兄弟准备盖房,选这套户型准没错,每人出资30万就能盖一栋很不错的房子。
平面布局图。
平面布局图。
户型四占地11X13米,跟前面几套户型不同的是,这套户型有堂屋设计,很多人会说有了客厅就没必要用堂屋了,其实不然,堂屋的功能客厅还是取代不了的。
平面布局图。
平面布局图。
户型五,这套户型属于方方正正的类型,占地14X14米,设计了两个入户门方便家人进出。
平面布局图。
平面布局图。
看完这6套农村自建房户型图,大家觉得哪套适合自己家呢?
平面布局图。
【 装配式建筑|农村盖房选这6套户型就够了,中式欧式全都有,建好就是人生赢家】关注装配式建筑,每天都有新户型。
推荐阅读
- 贷款|5月起,“2道铁令”,今后这1种买房方式再也行不通了
- 饱和度|173㎡轻奢新中式,古典和现代的碰撞,唯美浪漫!
- 小钱|游点好笑!收手机的新方式,一抓一个准!这老师怕是柯南看多了?
- 卫生间|129平现代美式三居室,打造出一个舒适又温馨的美式家
- 墙面|过道能''挤''出空间 5种方式帮你充分利用每一寸,档次蹭蹭上涨
- 灵魂深处|全屋定制案例|儒雅新中式,展现灵魂深处的东方情怀
- |中式庭院,这才是最让我们心动的院子
- 邮储银行|邮储银行:推进“一站式”不动产抵押登记服务
- 传统|189平现移步换景,以景造景打造富有传统韵味的新中式设计
- 搬家公司|乡住免费图纸土建造价参考88万面宽15.5m 进深14.4m 三层新中式别墅
