世茂都|146平米四居室热门案例 现代半包5万!-世茂都装修!
世茂都一套146平米的房子受到了大家的广泛推崇,原因是这套房子设计新颖独特,功能间齐全,能满足日常生活的方方面面。本套房子的设计风格采用的是现代风格,户型是标准的四居室。房子半包装修完只花了5万。接下来,我们一起来看看这套房子的效果图。【施工单位】:西安城市人家装修公司【设计说明】:本方案是围绕后现代为主题。客厅是主人品味的象征,体现了主人品格,地位,也是交友娱乐的场合,电视墙采用石材的设计元素,干净利落,视觉体验非常舒适。沙发背景墙采用石膏板做的几何造型,既简单又大方,上面可以放装饰画等。餐厅是家居生活的心脏,不仅要美观,更重要的实用性,整体性,餐厅的灯光很重要则以温馨和暖的黄色为基调。【温馨提示】:本案是城市人家设计师与客户量房沟通后,最终定的设计案例,喜欢本案设计风格的业主朋友可以预约装修设计。家里客厅的色调选择性很多,比如米色、浅绿色等,看起来都很大气,而且整体看起来很儒雅。沙发颜色可以选择的清新一点,这样让人有耳目一新的感觉。
电视墙采用石材的设计元素,干净利落,视觉体验非常舒适。【 世茂都|146平米四居室热门案例 现代半包5万!-世茂都装修!】
本方案是围绕后现代为主题。客厅是主人品味的象征,体现了主人品格,地位,也是交友娱乐的场合。
沙发背景墙采用石膏板做的几何造型,既简单又大方,上面可以放装饰画等。餐厅是一家人享受美妙用餐时光的重要场所,好的设计能让用餐氛围更加温馨,让享用美食也成为一种无上的乐趣,而每一种风格的餐厅,都显示出其主人的不同品味与性格。
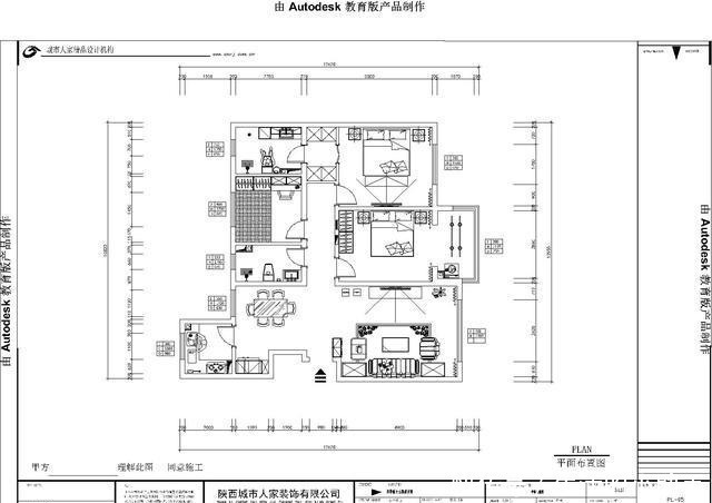
餐厅是家居生活的心脏,不仅要美观,更重要的实用性,整体性,餐厅的灯光很重要则以温馨和暖的黄色为基调。以下就是本套世茂都小区146平米四居室房子的户型图。
世茂都四室两厅两卫户型图世茂都小区146平米的现代风格设计案例,大家看了喜欢吗?其实146平米的房子打造出四居室是最为合理的,再加上现代风格,让房屋更显得高端大气,喜欢这种现代风格的朋友们可以考虑一下。另外,装修的时候注意空间的合理利用,避免出现浪费。
推荐阅读
- 宝龙地产|银行大厦几十层高,能“物尽其用”吗?各个楼层都是干啥的?
- 地板|160㎡四居室,玄关比我家卧室都大,这才是真正的低调奢华有内涵
- 装修|空调外机万万不能这样挂墙,若不是师傅提醒,我家都装错了!
- 洗头|崩溃现场:装修的10条坑,我都替你踩扁了,请你一定要避开
- 成都|双限当道的2022年,成都还有这些豪宅新面孔
- 购房置业|这个城市住房补贴都涨到600万了!
- 棚户区改造|开盘预告|合肥又有6盘要加推,均价1.39-2.54万/㎡全都有
- 炒房|房子有多难卖?三线城市炒房者:降价20万送车位都卖不掉
- 小房间|参观140㎡大婚房,朋友都夸餐边柜有档次,我却更喜欢主卧的飘窗
- 卫生间|房屋装修6大暗坑,哪个踩了都会导致返工,希望你没踩到。
