吧台|新古典风格装饰27㎡小户型,餐厅配多功能吧台,整体感觉不一样
面积越小的房子越能考验一个设计师的设计能力。27㎡的房子虽然小了些,但是用新古典风格装饰,看起来档次瞬间就提升了,而且在餐厅设计一个多功能吧台,功能丰富很多,整体感觉确实不一样。
本期案例的业主一对刚结婚的小夫妻,对生活有着精致典雅的要求,设计师用新古典风格装饰他们的小房子,再配合多功能家具的使用,正好满足了业主夫妻的心意。
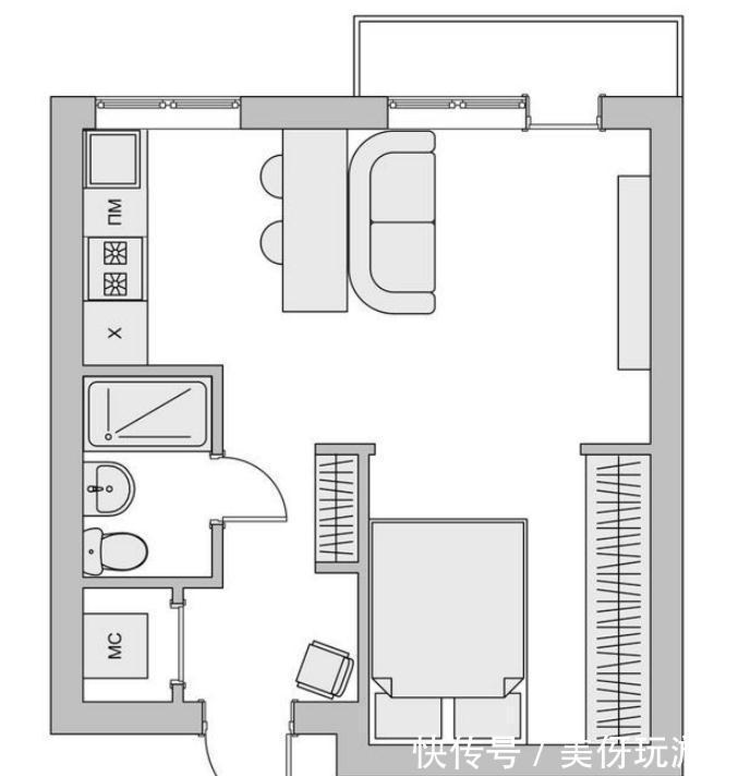
看看平面图:
看一下平面图,虽然结构紧凑,但是各项功能区域还是比较齐全。把客厅、餐厅和厨房做成了一个大的开放式空间,减少了压迫感,也使整个空间更加通透明亮。这样的这几手法确实很适合小户型房屋。
看看屋内实景:
玄关区的地面采用黑白色拼花瓷砖装饰,搭配典雅高贵的换衣镜,这种组合搭配彰显了新古典韵味。角落处还有一组通顶鞋柜,方便收纳。
走到客厅,可以看到一个开阔明亮的空间。客厅里的装饰也是沿用着新古典的风格,这个电视背景墙不仅典雅高贵,而且还很实用,可以收纳书籍和装饰品。采用罗马杆窗帘,搭配清新典雅的双人位沙发,看起来不仅大气还很温馨。客厅的球形吊灯款式很特别,也为空间增添了些许高雅品味。
沙发的背面就是餐厨空间,采用黑色+金色组合的配色方案,让人感觉不仅有古典韵味,而且还提升了档次。沙发靠背的多功能吧台的设计是一处点睛之笔,它不仅可以充当吧台、餐桌,而且还能当临时工作区使用,这个设计真是很巧妙,也很适合小户型空间。
餐厨空间中也采用了球形吊灯,与客厅相呼应,整体感更强。为了方便打理,橱柜下面的地面铺有黑白色点缀的瓷砖,看起来和橱柜也很呼应。
虽然卧室是一个暗厅,没有窗户,但是对于这个小户型空间来说也足够用了。
卧室门口采用罗马杆窗帘做隔断,与客厅相呼应,还方便实用。内部衣柜采用镜面柜门,提亮了空间,还有在视觉上延伸空间的作用。一张大大的双人床,睡起觉了更舒服。
【 吧台|新古典风格装饰27㎡小户型,餐厅配多功能吧台,整体感觉不一样】卫生间的装饰风格很古朴典雅。采用了干湿分离的设计,方便实用。马桶是悬空式的,方便打理卫生,不留卫生死角。
总结一下:
整个房子的空间虽然不大,但是整体的设计的感觉却高贵典雅,而且功能也很完善。能住进这样的空间中幸福感也会增加很多!如果小伙伴们有不同的看法,欢迎评论区留言讨论。
推荐阅读
- 上港|从上港星江湾现场发来一条项目新消息,请查看
- 装修|乔迁新房3月以泪洗面!当初的不理智,连犯15个极品装修坑!作孽
- 饱和度|173㎡轻奢新中式,古典和现代的碰撞,唯美浪漫!
- 小钱|游点好笑!收手机的新方式,一抓一个准!这老师怕是柯南看多了?
- 情形|速看!武汉住房公积金贷款信用审核新标准发布
- 安置|上城区紫阳街道加速回迁安置 焕新美好家园
- 背景墙|97㎡现代风,以时尚打造空间,以新颖突出特点
- 疯狂|1月20日广州新房网签210套,增城以43套再次蝉联榜首!势头强劲!
- 中海珑悦府|中海珑悦府好不好?置业顾问从项目现场发回新组图
- 武汉市自然资源和规划局|确定了!白沙洲将新添一所高中
