装修|54㎡无风格装修,两室一厅简洁温馨,住10年也不过时
今天分享的案例是54㎡小户型装修,两房一厅,有限空间,无限温馨。经典案例面积:54㎡坐标:厦门户型:两居室亮点:没有特定的风格,按照生活习惯和喜好装修,拥有踏实的幸福感。
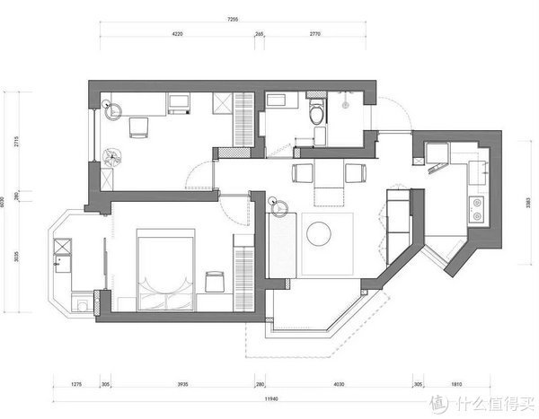
户型图
原建筑是90年代砖混结构的老房子,墙体不能拆除,改造的空间不大。
设计师几乎保留原有格局,只做了局部小改动。改变次卧开门方向,拆除卫生间隔墙,对空间进行优化。玄关
入户小玄关,鞋柜位于侧面,与电视柜一体设计,整洁美观又实用。
鞋柜采用上中下分体设计,中间留空贴几何图案花砖,增加趣味性。灯光点缀,爱犬相迎,打造回家的仪式感。客厅
客厅墙面选用壁纸装饰,以白色为主色调。整体采用无主灯设计,轨道灯、灯带搭配落地灯,照亮整个空间。
阳台纳入客厅,原木地台设计,集收纳与休闲功能于一体。电视墙设计组合柜,将电视机嵌入其中,整体感更强。
阳台的小角落,绿植清新,点缀空间。几种颜色搭配,看起来清新又养眼。餐厅
餐厅简单实用,伸缩式餐桌展开有1.3m,可以满足小户型家庭聚餐的需求。
一整面的护墙板设计,将卫生间门隐藏起来,美观大气。原木和白色搭配,满满的清新感。厨房
厨房空间不大,玻璃移门隐藏设计,看上去就像开放式厨房。冰箱旁边设计隔板柜,即可补充收纳,还有装饰作用。
白色墙砖搭配清新烤漆橱柜,视觉效果极佳。吊柜底部安装灯带,方便日常操作。卫生间
拆除原有隔墙,卫生间干湿分离,透明玻璃隔断,空间更显宽敞。
浴室柜左侧设计壁龛,洗漱用品收纳其中,既实用又美观。
淋浴房颜值极高,热水器隐藏设计,避免空间压抑。精心挑选的五金散件,细节设计很贴心。主卧
主卧简约清新,衣柜是现场制作的,白色烤漆柜门搭配铜把手,精致又耐看。
床头一侧摆放床头柜,另一侧则由衣柜延伸出简易桌子。平时既可以当办公桌,还可以当梳妆台,一举两得。
穿衣镜隐藏在门后,同时安装挂钩,最大限度发挥空间价值。书房
推荐阅读
- 屋主|56㎡小户型老房改造,小而美的设计!
- 装修|乔迁新房3月以泪洗面!当初的不理智,连犯15个极品装修坑!作孽
- 现代风|168㎡现代风,带着浓郁的归属感与愉悦感
- 装修|淋浴房还可以坐着洗澡,一开始很不理解,装修后才发现太实用了!
- 施工者|不管家多大,装修时做好这12处细节,美观与舒适并存,幸福感提升
- 深色|155㎡简约风,承载着三代人的生活,不花哨让家务少一半
- 混淆感|146㎡北欧经典白色三居室,诠释令人心醉的优雅
- 饱和度|173㎡轻奢新中式,古典和现代的碰撞,唯美浪漫!
- 心塞|5个月装修一套房,硬装让我喜出望外,结果家具一上全废了!心塞
- 背景墙|97㎡现代风,以时尚打造空间,以新颖突出特点
