院区|青岛市市立医院本部院区诊疗中心项目规划公示 建面约980.84㎡
半岛全媒体采访人员 于红靓
11日,半岛全媒体采访人员从市自然资源和规划局获悉,市立医院本部院区诊疗中心项目规划方案批前公示。
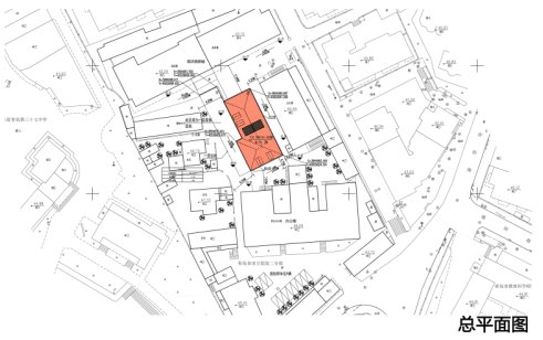
根据公示,市立医院本部院区诊疗中心项目位于市北区城阳路5号,地处市北区历史文化街区内。拟将原换热站功能调整至现状办公楼内,并在原换热站位置新建治疗中心及配套用房,建筑面积约980.84平方米。项目对外日照满足日照规范要求。




【 院区|青岛市市立医院本部院区诊疗中心项目规划公示 建面约980.84㎡】
推荐阅读
- 青岛市|父母与子女共同购买房屋,房屋所有权归谁?
- 青岛市|青岛达观天下二期延期交房内幕
- 院区|北京友谊医院通州院区二期主体结构封顶,预计后年5月竣工
- 青岛市|德国年轻人为什么不买房子?德国网友:我想生活得简单一点!
- 青岛市|久加诺夫:苏联1.5亿人有免费住房,现在房贷高,买房成梦想
- 青岛市|这一进一退,暗藏着青岛楼市的巨变!
- 青岛市|匠心独运,认识建筑之美
- 小区|青岛市南东海路房价迈入“4万+”,最贵的小区均价超过8万/平
- 小区|青岛市北四方利群房价迈入“1万+”,最贵的小区均价超过2万/平
- 小区|青岛市南八大关房价迈入“6万+”,最贵的小区均价超过6万/平
