别墅|200㎡现代轻奢别墅装修,简约不失高级,尽享诗意品质生活
不知道大家有没有幻想过,自己有房子之后,会把家里装修成什么样子?今天给大家介绍的是一套200平现代轻奢风格复式别墅,业主是一家三口,有一个可爱的女儿,对于新家的设计,夫妻俩都喜欢特别的设计,拒绝网红感,男业主喜欢简洁明了的现代风,而女主人则是喜欢轻奢优雅的生活,更是希望家里的每个角落都能散落着自己喜欢的物件。本案在设计时,采用现代风格加入少许的轻奢元素,将收纳空间做到极致。一起去欣赏一下这套复式别墅装修究竟如何呢?
【 别墅|200㎡现代轻奢别墅装修,简约不失高级,尽享诗意品质生活】
客餐厅一体化设计,开放式的布局让整体的视觉得到了延伸的效果,也让空间看起来更加通透明亮,电视背景墙做成柜体的设计,实用美观又大方,满足了客厅的收纳需求,地面通铺地砖简约大气。
小区名称:龙湖上第
项目性质:复式别墅
项目面积:200平方
装修风格:现代轻奢风格
主卧这里设计简约又舒适,墙面是乳白色墙布,配上几幅挂画让空间显得不那么单调,吊顶则是媳妇儿最喜欢的星空,晚上在这里睡觉既可以遥望窗外的夜景,也可以欣赏满满星空的个性之美。
卫生间设计,大理石铺设让整个空间的质感得到了提升,色调搭配让人感觉特别舒适,墙面挂上人像画,凸显个性张扬的气质。
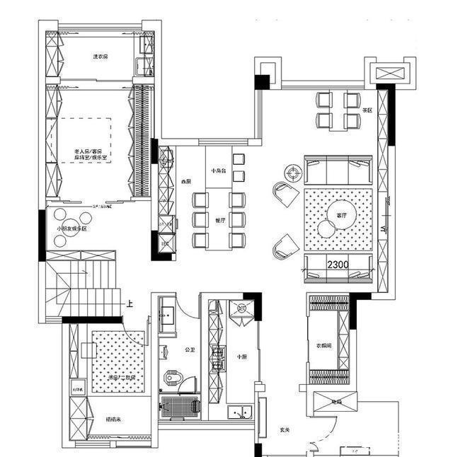
一楼平面布局设计,在原有的户型基础上,加入实用美观的柜子,满足业主平时的收纳需求。
女儿房延续实用壁布作为墙面搭配,简约不简单,通体大衣柜做成拼接颜色,个性时尚又大气,阳台推拉门装上既满足了私密性,也起到了装饰作用。
推荐阅读
- 屋主|56㎡小户型老房改造,小而美的设计!
- 现代风|168㎡现代风,带着浓郁的归属感与愉悦感
- 深色|155㎡简约风,承载着三代人的生活,不花哨让家务少一半
- 混淆感|146㎡北欧经典白色三居室,诠释令人心醉的优雅
- 出售|梅西挂牌出售美国豪宅 2年时间增值200万美元
- 饱和度|173㎡轻奢新中式,古典和现代的碰撞,唯美浪漫!
- 背景墙|97㎡现代风,以时尚打造空间,以新颖突出特点
- 地板|160㎡四居室,玄关比我家卧室都大,这才是真正的低调奢华有内涵
- 棚户区改造|开盘预告|合肥又有6盘要加推,均价1.39-2.54万/㎡全都有
- 建房子|面宽11米, 进深16.5米的农村三层别墅, 前后有花院还带车库, 完美!
