楼梯口|楼梯口正对着客厅,用木格栅隔断,关键比实心隔墙薄,更省空间
说到隔断,必须砌隔墙?
Nonono,隔断的材料和方式多种多样,而且现在更多的定制隔断好看又实用,关键比实心隔墙薄,省空间才是王道!
家里哪些情况下可以利用轻巧的半隔断就行呢?今天就一次性盘点到位,装修不纠结,直接套用就好!
①入户正对客厅或是门洞
出现这种情况主要是原始户型的错,在装修的时候可以通过两种方式来纠错。
第一种是入户正对门洞,可以改门洞位置,避免出现尴尬情况;
第二种是入户见厅,那么建议最好做隔断来解决。比如说不锈钢隔断,或者可以借助悬浮柜,底下完全留空,不仅发挥收纳功能,而且还起到隔断效果,给你家造了个玄关出来,实用性非常强。

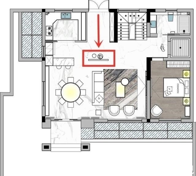
②楼梯入口正对客厅或其他功能区
如果你家是复式楼或者是loft结构房,一旦出现楼梯口正对着功能区,那么可以利用隔断来缓解尴尬,一种是可以利用木格栅隔断,中间做不同样式,起到隔断效果,通风换气效果也非常棒。

或者可以选择玻璃和金属组合做隔断,时尚大气,适合现代风、法式风和轻奢风~
③洗漱台外移需要隔断
有些卫生间小,真心建议将洗漱台外移出来,可以砌筑半墙做隔断,也可以用玻璃砖或玻璃隔断,这样不会暴露卫生间隐私,方便使用。
④阳台功能区之间做隔断
阳台大多情况下喜欢做打通设计,空间大1倍。但如果一个阳台实现生活和休闲的话,建议生活阳台一侧,可以做隔断分隔,这样避免暴露隐私,同时划分更明确,方便日常生活使用。
⑤大横厅做隔断
大横厅或大竖厅很受大家的欢迎,空间显大。虽然大横厅中间可以不做隔断,直接沙发为界限,但有条件的话,可以加一组半隔断,矮墙或者矮柜或者玻璃隔断都可以,这样不会造成功能区使用混乱。
⑥阳台垭口做吧台隔断
打通后的阳台,空间更开阔是没错,但其实可以好好利用垭口之间的空间,做桌面或者吧台都可以,实用性翻倍,也不会阻挡采光和通风。
【 楼梯口|楼梯口正对着客厅,用木格栅隔断,关键比实心隔墙薄,更省空间】(图片部分源于网络)
推荐阅读
- 客厅|参观向华强和陈岚的豪宅,房子层高太矮了,住着不压抑吗
- 亮点|等了6个月终于能晒晒新房了,都挺满意的,客厅是最大的亮点
- 庭院|取消客厅三件套,只摆一张大长桌,79㎡的家简洁质朴,太满意了
- 餐厅|这套新房真有创意,客厅改主卧,电视背景墙后面设吧台!
- 装修|越来越多人阳台不装推拉门了,如今流行将阳台包进客厅,太聪明了
- 客厅|有钱人从不在家里放这4样东西,暗喻越住越穷,有钱人都会避开
- 隔断|112㎡清新北欧风,客厅砌个半墙隔出一间书房,2居变3居真实用
- 客厅|西安一对夫妻在客厅打羽毛球,两人水平不相上下,网友:房子够大
- 客厅|住建部部长:房子是用来住的,不是用来炒的
- 客厅|37㎡独单光改水电就1万块,拆砸也3000多,老房子改造真费钱
