云埔|科学城新盘价格曝光!4.1万起买保利罗兰国际,值吗?( 三 )
其二,南向单位成本更高,而且首推只有一条梯腿,共30户,想买也不一定能抢到。
与其这样,不如提前锁定一个北向房源,因为相较于朝向,二手市场买家核心关注点还是地段、品质、圈层等方面,只要地段够硬,什么朝向的房子都有成长性。
房产君的好朋友“梅道理”就是个例子,她第一套房选择了科学城一套西北向单位,但不影响6年后资产价值翻了一倍,套现买入了天河。
| 买房,地段才是硬道理
去年换房,她也曾纠结天河只能买北向小面积,黄埔能住南向大户型,更舒适,是不是留在黄埔好。
但最终,地段让她做出了取舍,虽然买了北向,但资产溢价空间远高于黄埔的南向单位。
还是那句话,不要因为朝向,错过了好盘。
最后,其实85㎡三房虽为北向,但直面项目中心园林,儿童乐园、运动乐园、度假式泳池等尽收眼底,入手也不亏。
| 项目营销中心园林实景
悄悄告诉你,房产君壮着胆子给5#和6#做了一次声环境模拟,7成北向单位夜间分贝值40~45之间,属于安静的范围,比南向更静一些。
93㎡三房 VS 97㎡三房
再看建面约93~97㎡带主套三房,都是南向,面积差了4个平方,这种就是萝卜青菜各有所爱了。
93㎡横厅设计,灵动性更强一些,比如客餐厨一体化,减少了梁柱,如果有需要,可以打造餐厨一体的岛台,在客厅多划出一个工作区。
再比如主套,有一个独立的衣帽间,改造成临时的BB房,放上摇床,方便父母起夜。
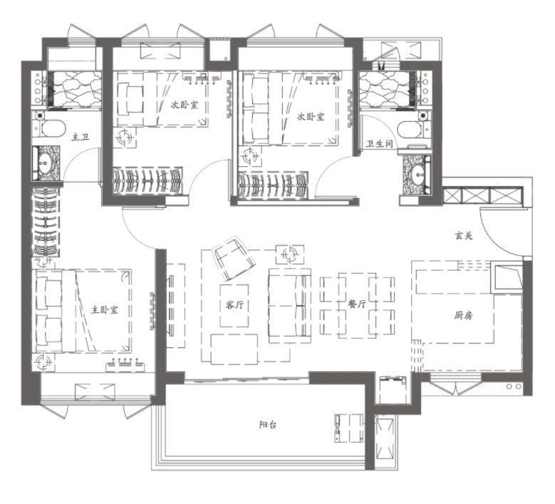
| 93㎡户型图
97㎡三房,竖厅设计,称得上刚需中的豪华配置。
一方面,三开间朝南,清风和阳光肆意闯入;另一方面,超宽阳台连通客厅与卧室,如果与老人同住,早上推开门就能打太极。
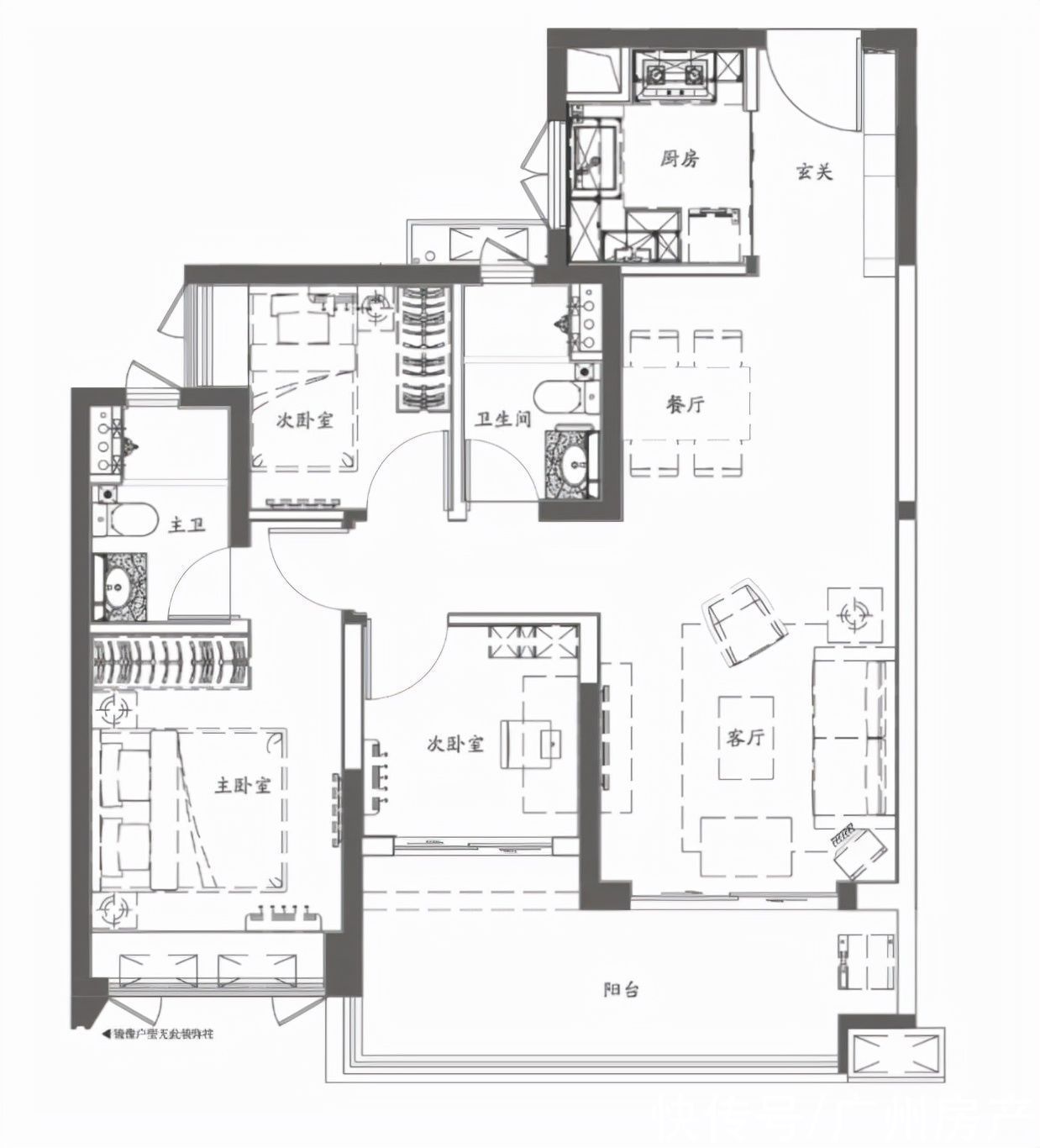
| 97㎡户型图
房产君的选筹建议是:两个户型都没有硬伤,各有受众群,大方向是视总价情况选取。
喜欢安静的,不妨选择93㎡高层;喜欢晒太阳的不妨看看选97㎡单位;喜欢舒适梯户比的,可挑选两梯四户的#6栋。
134㎡四房,价格合适可闭眼买
最后看建面约134㎡四房,两梯四户配置,分外舒适。
户型设计上,没有什么好挑剔的,餐客厅南北对流,而且客厅、阳台以及三个卧室全部朝南。
主卧自带步入式的衣帽间,一边一排柜子,男女主人都享有尊贵体验。
| 134㎡户型图
面积144㎡以下四房,在科学城相当稀有,也是科学城核心难得的在售四房,
好了,今天的答疑到此为止,对此你们怎么看?欢迎留言告诉我们。
推荐阅读
- 昆明|东湖科学城建设全面推进,光谷这些优质好盘别错过
- 封顶|30层,150米!张江科学之门组团首个超高层办公塔楼封顶
- |老话说“房前不栽树,屋后不种花”,究竟是科学,还是迷信?
- 购房置业|亲戚都劝我别买18楼,都是迷信的说法,没有一点科学依据
- 浦东新区|水泥使用寿命只有50年,50年后的房子该怎么办?科学家道明实情
- 餐厅|餐厅侧墙装梯形吊柜,倾斜30°设计巧妙,科学、实用、不担心碰头
- 张江|30层,150米!张江科学之门组团首个超高层办公塔楼封顶
- 淄博|门口鞋柜不能乱放?听听老师傅的话,不是迷信,有科学依据
- 反转|反转!广州新房成交5个月来首回升!超10000人杀入科学城
- 淄博|规划6000余亩!大面积商务商业用地,淄博科学城要发力了
