云埔|科学城新盘价格曝光!4.1万起买保利罗兰国际,值吗?( 二 )
商业配套它有,而且一口气给你近10个!
万达、香雪城、奥园广场等核心大mall,包括黄埔区政府点名的时尚消费地标——至泰商业广场,都在罗兰国际半径2.5公里内。
| 至泰商业广场效果图
学校它也有,一出手就是省一级小学开发区二小!
学校就在楼下,现已开学,软硬件水平如何,通通所见即所得。
根据今年黄埔区的招生政策,罗兰国际的适龄业主儿童就位于学校的招生地段内,虽说教育局每年会发布招生政策,可能存在微调,但社区教育都是一张有保障的底牌。
环顾科学城,已建成省级教育配套的在售盘,除了保利罗兰国际,你很难找出第二个。
| 开发区二小北校区实景图
至于居住环境、医疗配套更是一流。
沿着开创大道,串联着大大小小近10个公园,以及三甲医院——中山大学附属第三医院岭南分院。
从珠江新城下班归来,换件衣服就能牵着娃到公园漫步,难得惬意;家人不舒服,驱车就是三甲医院,时刻守护健康。
| 保利罗兰国际实拍图(@广州房产 细鹏)
如此地段、配套摆在你面前,本身就是项目价值的一部分,买在这里,快人一步享受核心配套,自然也更快享受溢价红利。
好比买珠江新城,你肯定也会选配套、环境更好的核心区,而不是边缘区域。
结果也很明显,地处核心的嘉裕公馆二手均价超过16万/㎡,而西区边缘的名悦,二手没破10万。(来源:链家)
选筹指南买罗兰国际,该怎么买?
就算认定了罗兰国际,也有买家纠结选筹:
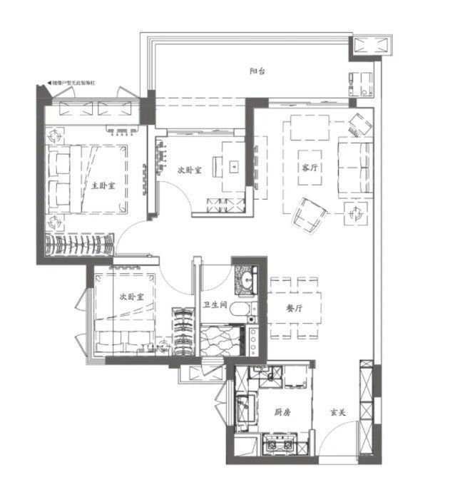
买建面约85㎡北向三房,还是咬牙升舱建面约88㎡南向三房?两者价差四五十万,说多不多,说少不少。
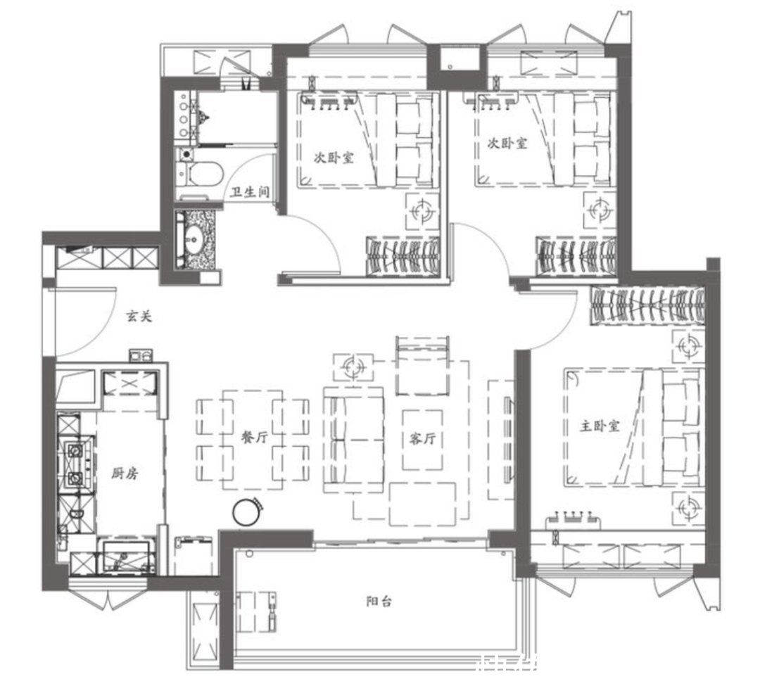
同样是南向四房,是该选建面约97㎡,还是省点钱买建面约93㎡?两者总价只差约18万。
| 项目首波推新楼栋示意
这也是人之常情。
一来,今年政策调整后,一手楼要等收楼、房产证满2年可售、证满5年免增值税交易,整个周期短则5年,长则8年,难吃后悔药,只能在选筹时谨慎再谨慎。
二来,太多人吃过选筹失误的亏,明明买入时价格差不多,卖出时难度大增还难溢价。
该怎么好?且看房产君贴心奉上的选筹攻略。
85㎡三房 VS 88㎡三房
【 云埔|科学城新盘价格曝光!4.1万起买保利罗兰国际,值吗?】先来聊聊三房单位,房产君知道,南方买家对南向蜜汁执着,但从户型、景观、舒适度看,其实两者各有优势。
建面约85㎡三房,竖厅设计,动静分区清晰,客厅沙发有靠山,更贴合传统买家的审美,景观阳台长达约6米,尺度媲美建面约120㎡的大户型。
| 85㎡户型图
建面约88㎡三房,走的是“时尚的横厅设计”,空间更阔绰大气,三开间朝南,采光、通风优越。
| 88㎡户型图
说说房产君的选房逻辑:如果对朝向特别敏感,追求阳光通透的房子,那就优先选择南向,不然,其实看菜下饭,选择北向也无伤大雅。
有三个根据:
首先,90㎡以下三房在科学城供不应求,不用担心朝向差异,未来在二手市场上缺少买家。
推荐阅读
- 昆明|东湖科学城建设全面推进,光谷这些优质好盘别错过
- 封顶|30层,150米!张江科学之门组团首个超高层办公塔楼封顶
- |老话说“房前不栽树,屋后不种花”,究竟是科学,还是迷信?
- 购房置业|亲戚都劝我别买18楼,都是迷信的说法,没有一点科学依据
- 浦东新区|水泥使用寿命只有50年,50年后的房子该怎么办?科学家道明实情
- 餐厅|餐厅侧墙装梯形吊柜,倾斜30°设计巧妙,科学、实用、不担心碰头
- 张江|30层,150米!张江科学之门组团首个超高层办公塔楼封顶
- 淄博|门口鞋柜不能乱放?听听老师傅的话,不是迷信,有科学依据
- 反转|反转!广州新房成交5个月来首回升!超10000人杀入科学城
- 淄博|规划6000余亩!大面积商务商业用地,淄博科学城要发力了
