原木色|140㎡简约原木风,没有奢华的元素,却每个细节都让人感到惊艳
这是一套位于杭州的140㎡大户型,面对高昂的房价,能够买得起这么一套大房子,家底一般都是挺殷实的。这套新房采用简约原木风装修,并非舍不得花钱。而是好的装修效果,要符合房主的审美和生活习惯。只有让人感觉舒适,那才能有家的温馨感。
房屋资料▼
房屋坐标:杭州
建筑面积:140㎡
装修风格:现代简约风格
装修费用:硬装25万左右
图片来源:小记
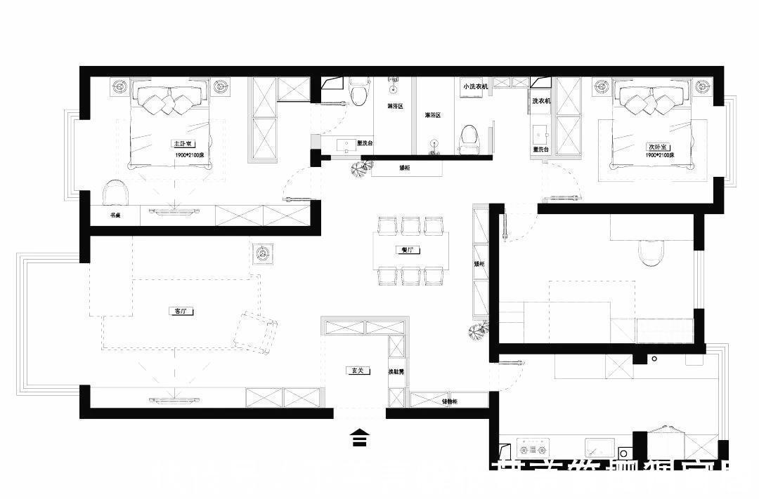
平面户型图▼
这套房子是三室两厅一厨两卫格局,因为空间足够大,每个功能区都能设计得游刃有余。户型方方正正,南北通透,客厅和厨房都带有阳台。
入户玄关▼
入户有一个独立的玄关,为了和客餐厅有一个明确的划分,地板采用灰色的仿古瓷砖。一进门就被强大的收纳效果给圈粉了,白色柜门的玄关柜、鞋柜。不仅收纳功能强大,颜值效果也是非常在线。
白色的柜门,和墙面的颜色浑然一体。白色的柜门和墙面,与地板的灰色调相互搭配,给人一种时尚清新的视觉感受。右手边的玄关柜底部,还有一排的双层鞋架。方便进出门的时候替换鞋子,不用每次都去翻鞋柜。中间是换鞋凳,换鞋子也更方便。
客厅▼
玄关进来就是开放式的客餐厅,客厅的阳台直接打通,让整个客厅看起来非常的敞亮大气。灰色的沙发、灰色的大理石电视墙,定制的原木风电视背景墙。灰色调和原木色调互相融合,呈现出清新雅致的效果。
整个客厅看起来简约又个性十足,天花板没有设计吊顶。电视墙的顶部是筒灯,沙发的上方是一排的轨道射灯。电视墙的电视柜连接着一套定制的原木柜子,收纳功能非常给力。
给原木收纳柜来个正面的特写,两边都是原木门的收纳柜,中间是开放式的展示架。展示柜方便摆放一些装饰品、书本、古董、小盆栽等等。
客厅的沙发背景墙没有做多余的造型,简单的乳胶漆而已。后期布置软装的时候,挂了一幅抽象的个性挂画上去做点缀。
把客厅的阳台打通是一个明智的决定,安装上落地窗之后。客厅的视觉效果立马提高了接近一倍,主要是采光条件足够强大,视觉效果非常通透大气。除了自然光之外,天花板的萤火虫吊顶,轨道射灯,墙壁的臂杆灯,都可以提供充足的氛围和光照条件。
餐厅▼
餐厅的装修设计,采用了更多的原木材料。天花板、墙面、餐桌椅,都是原木材料打造。不远处的白色餐边柜、墙面,和原木色材料互相搭配。视觉效果很有时尚和温馨感,让人看着由衷的感觉舒坦。
餐厅最里面的墙壁,上半部分是大理石材料打造,下半部分是原木收纳柜。天花板是两盏玫瑰金的吊灯,颜值效果出众,收纳功能也很到位。
推荐阅读
- 三居室|118平现代风三居室,一个简单而纯粹还原生活色彩的家
- 小房间|参观140㎡大婚房,朋友都夸餐边柜有档次,我却更喜欢主卧的飘窗
- 房产税|美国作为发达国家,他们为何不用混凝土建造房子原因很现实
- 烤漆面|老公坚持餐厅不做柜子,原来用吊兰做隔断可以这么漂亮,学到了
- 武汉|合肥楼市新房火热的原因找到了
- 购房置业|为什么买房要牢记“远二近三”原则?懂行的人都这么做,全国通用
- 开阳|房价下跌势头强劲,炒房客为何不积极抛房?主要有这5个原因
- 楼市|稳楼市不是说说就行的,这2个原因,让稳楼市的难度加大
- 购房置业|造纸业在北海铁山港区将再征地1405.2亩
- x2|三层现代风格别墅 140平米,清新脱俗,是当下年轻人最喜欢的设计
