平面|农村盖房就在这10套里选一套,颜值高还实用,尤其第7套特别亮
对于面积较小的宅基地,修建一栋带地下室的房子既能增加房屋使用面积,还多了一层备用空间,满足后期的不同需求。
今天便为大家介绍10套带地下室的别墅,均带全套图纸,户型多样,总有你喜欢的!
户型一:
占地尺寸:25.75m×17.42m
占地面积:326.6㎡
建筑面积:713㎡
总 高 度:10.38m
建筑情况:设9室 1保姆房 3厅 10卫 1厨房 1玄关 1堂屋 1茶室
平面布局图:


户型二:
占地尺寸:8.3m×12.76m
占地面积:111㎡
建筑面积:341.3㎡
建筑高度:12.25m
建筑结构:砖混结构
【 平面|农村盖房就在这10套里选一套,颜值高还实用,尤其第7套特别亮】建筑情况:4卧 1客厅 1餐厅 1厨 6卫 1洗衣房 1影音室 1车库 3阳台
平面布局图:


户型三:
占地尺寸:20m*12m
占地面积:240㎡
建筑面积:607.15㎡(双户总面积)
建筑高度:10.635m
建筑情况:4储藏室 2玄关 2大客厅 2起居室 2厨房 2餐厅 8卫生间 10卧室 4露台
平面布局图:


户型四:
占地尺寸:16.4×15m
占地面积:157.59㎡
建筑面积:318.51㎡
建筑高度:9.685m
建筑情况:4卧 2厅 4卫 1厨 5阳台 1阳光房 1露台
平面布局图:


户型五:
占地尺寸:19.82m×7.4m
占地面积:171.39㎡
建筑面积:307.84㎡
建筑高度:6.18米
建筑结构:砖混结构
建筑情况:2卧 3厅 1厨 3卫 1办公室 1KTV 1多功能室 1休息室 1棋牌室 1会议室 1茶室 1酒窖
平面布局图:

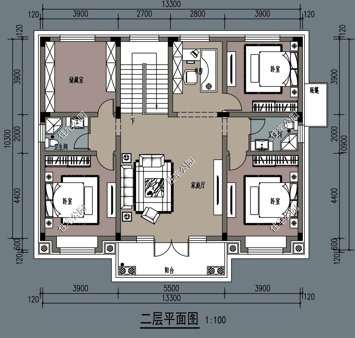
户型六:
占地尺寸:13.3m*10.3m
占地面积:147㎡
建筑面积:452㎡
建筑高度:10.4m
建筑情况:共设5室 4厅 5卫 1厨 1茶室 1娱乐室 3储藏室 1影音室 1书房 1阳台
平面布局图:


户型七:
占地尺寸:10m×12.8m
推荐阅读
- 建房子|面宽11米, 进深16.5米的农村三层别墅, 前后有花院还带车库, 完美!
- 别墅|参观亲戚上海的豪宅,别墅硬是住成农村房,真是糟蹋了好房子
- 购房置业|今年起,农村老家的老房子,统统按照“新规”处理,子女提前知晓
- 修建|精选10套三层户型图纸,占地面积均不足百平,尤其适合新农村修建
- 上海市|2022年农村人要“享福了”?实行按户补贴,跟村民们的房子有关
- 洗衣房|这三款农村四合院设计图让不少城里人羡慕,父母看了也欢喜
- 购房置业|农村建新房就选这套四层别墅,占地100多平,8间卧室人人都有地睡
- 别墅|土豪农村盖大别墅,人人羡慕,如今却成为全村人眼中的大笑料
- 李沧|农村建房不能超过几层?面积是怎么规定的?农村建房的流程及条件一览
- 露台|推荐5款三层别墅设计图纸,最适合农村建的房子
