齐家敏敏|90后夫妻40㎡的新家,一房改四房,每1㎡都不浪费,非常完美
90后是拼命想在大城市站稳脚跟的一代人,哪怕过蜗居般生活也不愿意离开。蜗居的场面每个人都再熟悉不过了,狭小的空间要安放下自己的身体和灵魂。想满足日常所需,设计师很重要。比如齐家敏敏今天带来的这套位于北京的40㎡一居室,经过设计师改造后,规划的十分完美,把一居室改造成四室一厅,兼顾着一家三代人生活,可以说空间利用到极致了。
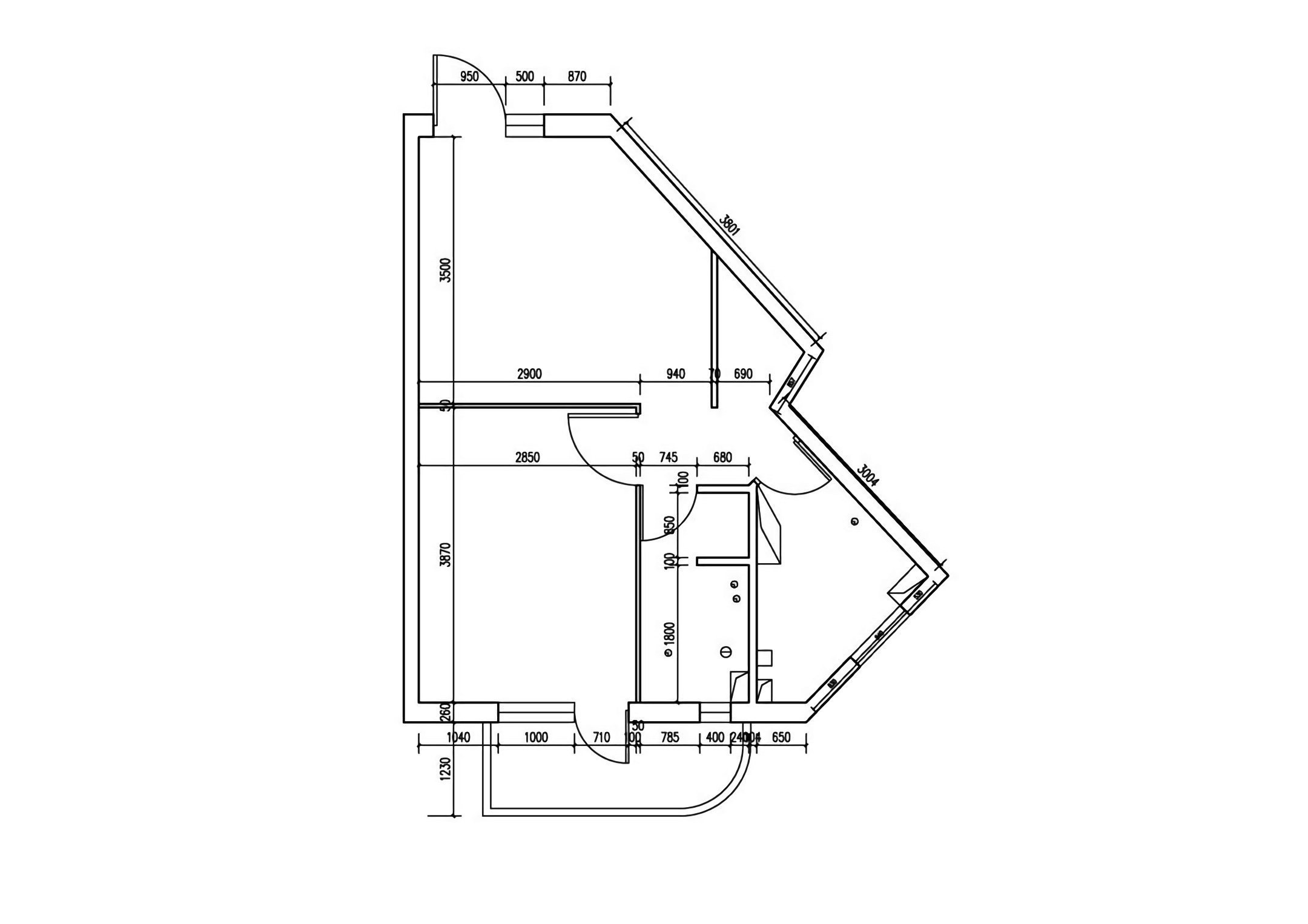
原始户型图
这是现场测量的原始户型图,40㎡的一居室,房子是早期建造,户型特点很奇葩。只有两面墙是90度直角,阳台成半弧形,厨房也是不规则,要想三代人一起生活显然是不太现实。
平面设计图
装修布局图,针对屋主的需求做出的整改和规划:
1、拆掉储物间和客厅之间的墙体,增加客餐厅使用面积,满足三代人的用餐需求;
2、通过类似三角的复合家具,“以斜治斜、斜斜得正”的手法,让电视墙和沙发的主墙平行,打造一个方正空间,提高空间使用率;
3、将空间进行重新划分,把一居室改造成四室一厅的多功能空间。
3D效果图
SU模型图,可以一眼看出室内的每个区域改造效果,空间虽小,功能很齐全,空间利用率提升到最大化,用来满足一家人生活需求。
客厅
把40㎡多边形斜角的户型改造成三代人居住温馨的家,客厅是整个布局问题最大的地方。不规则的墙体影响观影和看电视的舒适性。锐角三角形的储物间,让一家人吃饭也只能在茶几上,非常的不方便。
餐厅
设计师原创设计出一个类似三角的复合家具将客厅重新规划,形成一个方正的格局 ,不仅沙发靠在墙上看电视方便多了。拆掉储物间,刚好可以摆放餐桌和餐椅,扩大了客餐厅的使用面积,满足年轻人使用率最高的空间。
电视墙
入户没有单独的玄关设计,设计师巧妙的把鞋柜隐藏在楼梯当中,方便家人日常更换鞋子,既实用又节省了空间,细节设计太用心了。
次卧
电视墙上方是一张圆形大床,为整个家增加一个卧室房间,考虑到采光和隐私问题,床头上方
安装嵌入式的玻璃窗增加采光。
厨房
原本的厨房样式还停留在上一个世纪,格局也十分局促。改造后,厨房升级换新,也对动线和操作台进行重新规划和设计,不仅功能齐全,黑白灰色配色也更加时尚高级。
洗手台
卫生间内部
改造前的卫生间最严重是排水问题,整个地面像泡在水里,重新规划的卫生间三分离设计,最外侧放置洗脸盆,减少同时使用卫生间的拥挤。中间是马桶,最里面是淋浴区,地面做成斜坡处理,方便排水。
推荐阅读
- 装修|淋浴房还可以坐着洗澡,一开始很不理解,装修后才发现太实用了!
- 大悦城|家里这两个地方别漏了贴瓷砖,许多人为了省钱,入住就后悔了
- 贷款|5月起,“2道铁令”,今后这1种买房方式再也行不通了
- 住宅|现在买房,选“高层”还是“低层”好专家20年后差别很大
- 管道|为什么说:再穷也不买二层?了解这些弊端之后,就知道多糟心了!
- 床头柜|95后姑娘的“穷装”卧室火了,环保又精致,软装的力量真强大
- 建房子|面宽11米, 进深16.5米的农村三层别墅, 前后有花院还带车库, 完美!
- 拉萨|付金雅律师解读:婚前房产, 婚后共同还贷离婚后能分得财产吗
- 房子|退休以后当“包租婆”,该庆幸还是后悔?答案或许和你想的不一样
- 垃圾桶|家庭主妇:厨房地柜不要全打满,空一格更实用!后悔我家装太早了
