荷香园|90后小夫妻花5万元装修的现代风格,100平米二居室太赞了!-荷香园装修( 二 )
【 荷香园|90后小夫妻花5万元装修的现代风格,100平米二居室太赞了!-荷香园装修】
吊顶将客餐厅分成两个空间,客厅吊顶用直线灯池吊顶、双层石膏板贴顶以及黑色不锈钢条。
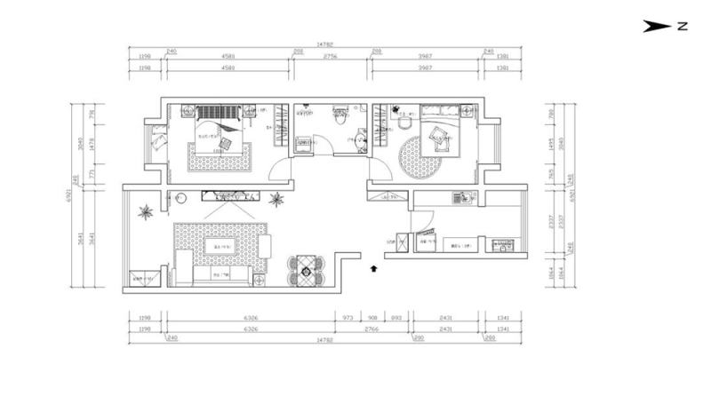
以下就是本套荷香园小区100平米二居室房子的户型图。
此户型属于南北通透,通风方面非常,客厅阳台有个大窗户采光特别好,主卧、次卧各有一个飘窗,采光方面非常好,户型全明设计整体布局合理,生活方便舒适,设计和谐自然,给人以美的生活体验。
在现代快节奏的生活步伐下,能遇到这样一套现代风的装修案例实属不易,这套荷香园的二居室的案例中,通过现代风的装修化户型缺点为优点,不浪费每一个空间,最大化发挥房子的使用价值,充满了装修小窍门的活用,想来住在这样的家里,一定每天都是幸福满满吧。
推荐阅读
- 装修|淋浴房还可以坐着洗澡,一开始很不理解,装修后才发现太实用了!
- 大悦城|家里这两个地方别漏了贴瓷砖,许多人为了省钱,入住就后悔了
- 贷款|5月起,“2道铁令”,今后这1种买房方式再也行不通了
- 住宅|现在买房,选“高层”还是“低层”好专家20年后差别很大
- 管道|为什么说:再穷也不买二层?了解这些弊端之后,就知道多糟心了!
- 床头柜|95后姑娘的“穷装”卧室火了,环保又精致,软装的力量真强大
- 建房子|面宽11米, 进深16.5米的农村三层别墅, 前后有花院还带车库, 完美!
- 拉萨|付金雅律师解读:婚前房产, 婚后共同还贷离婚后能分得财产吗
- 薄荷蓝|走进她家,才知什么叫美观与实用并存,全屋温暖又清爽,太舒服了
- 房子|退休以后当“包租婆”,该庆幸还是后悔?答案或许和你想的不一样
