施工|太牛了!这种独特传统四合院,让您的豪宅,成为村里面最靓的仔
如果哪天您飞黄腾达,您会选择在高楼大厦里面喝咖啡,陪伴钢筋水泥度过一生,还是愿意住在草木生辉,庭院优雅的四合院呢?【设计单位】:苏州岚林阁设计【项 目 地】:福 建【楼 层】: 2层半【建筑风格】:苏式建筑【建筑占地】:28m x 40m【结构形式】:框架结构【设 计 师】:张工、陶工、章工、李工1.提前两周预约岚林阁设计师

2.踏勘风水宝地

3.现场勘查 航拍 测量 规划布局

4.外观三维方案



5.建筑庭院效果方案

时至今日,自建房四合院成为了一种新潮流,高大上。在自家宅基地上,建上这么一栋白墙黛瓦、庭院曲径幽深的四合院,简直是让人陶醉不已。

整体建筑为中式风格,来营造古色古香的古建风格,在材质上,通过真石漆和灰瓦,打造了原汁原味的中式合院的风格。

庭院幽深,搭配绿枝,古朴静谧之中,创造出惬意的居家环境。中部庭院作为休闲空间,小桥流水,为整个院子带来了自然气息,放上茶桌,品茶待客,庭院闲聊,岂不乐哉!6.建筑施工图


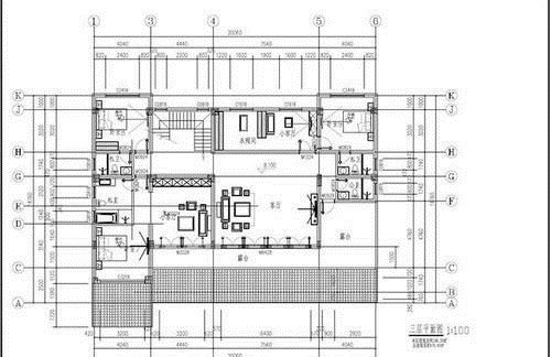
一套完整的施工图纸,客户和施工队拿到手即可开工啦, 让我们期待不久的作品完美落地吧。7.古建师傅上门指导
8.施工现场花絮
施工过程中,有不清楚的工艺,我们都有施工指导员上门为您现场指导。9.实景完成效果
让每个方案作品,在全国各地能够完美落地,是客户的意愿,也是设计师的梦想!感谢业主选择苏州岚林阁。
推荐阅读
- 装修|淋浴房还可以坐着洗澡,一开始很不理解,装修后才发现太实用了!
- 施工者|不管家多大,装修时做好这12处细节,美观与舒适并存,幸福感提升
- 大悦城|家里这两个地方别漏了贴瓷砖,许多人为了省钱,入住就后悔了
- 贷款|5月起,“2道铁令”,今后这1种买房方式再也行不通了
- 灰尘|家中阳台不要装推拉门了,装这种更实用个性,不得不感叹太聪明了
- 心塞|5个月装修一套房,硬装让我喜出望外,结果家具一上全废了!心塞
- 管道|为什么说:再穷也不买二层?了解这些弊端之后,就知道多糟心了!
- 小钱|游点好笑!收手机的新方式,一抓一个准!这老师怕是柯南看多了?
- 集体经济|征拆赔款找,查了才知有这么“多”…
- 购房置业|上海女子拍下对楼住户家无敌露台,超大空间网友酸了:买房送操场
