小房子|小户型要这么装,24㎡玄关秒变厨房和洗衣房,收纳翻倍方便实用!
以前买了小房子总觉得不够住,如今结了婚住上了大房子,但却总怀念以前靠自己打拼买下的那套小房子。这次要介绍的案例来自上海普陀,屋主@喵呜EVA她家只有27㎡,而且这套房子的房龄已有30年,可以说是一个不折不扣的“老破小”。不过参观了她家装修改造后的样子却把我迷住了,翻新装修之后不仅布局合理巧妙,而且实用性翻倍,风格大气不容易过时,关键是收纳还不输大户型!反而让我羡慕一个人住在小房子里那种自由自在的感觉。
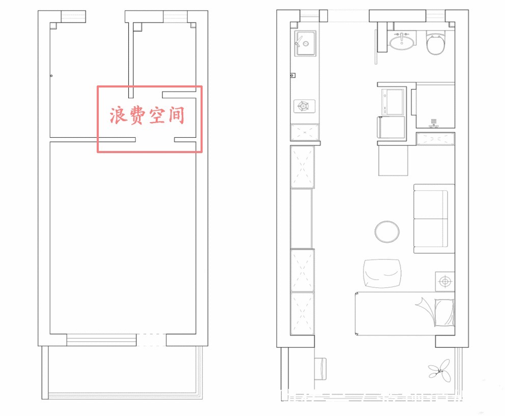
原始户型图PK设计方案图24㎡的空间是这套房子的实际使用面积。(扣除了墙体)房子是典型的一室户型,原始户型当中入户区域的布局十分不合理,不仅显得空间闭塞还浪费面积。在不拆除承重墙的前提下给门厅做了个大改造。完工后空间宽敞一倍,实用性和储物功能也大大增强!
改造前一进屋就是厨房,旁边就是卫生间,妨碍了房子的通风采光,过道空间也十分浪费。
改造后厨房的位置没变,改动室内门洞让其和入户门持平,视觉空间瞬间变大减少闭塞感。节约出来的过道空间用于给卫生间做独立淋浴房,而卫生间就可以分离出来一部分空间给予过道,在右侧摆放洗衣机、冰箱。现在的玄关可以秒变厨房和洗衣房,中间铺设复古的灰色瓷砖用于过人,耐磨又好打理!
电器上方还有额外吊柜,底部加装灯带,不仅增大储物空间还强化了入户区采光。
橱柜别看是紧凑的一字型橱柜,但洗切炒的布局相当合理,一人居住或者二人居住完全足够了,台面用的还是不锈钢材质,耐用好打理,下面的地柜还装了嵌入式的消毒柜,实用性极了。大吸力的侧吸油烟机加上单眼灶不占空间又杜绝油烟问题。
杂物柜左侧的高柜打造成一个杂物柜,可以收纳常用的手持吸尘器、不常用的工具箱、折叠梯等等。

卫生间进去之后首先是洗漱、蹲便区,这里就作为干区。马桶做墙排改成壁挂式,悬空的设计更好打理卫生。镜柜能照人能储物相当实用。

干区对面也就是前面提到的节约出来的过道空间,打造了一个独立的淋浴房,右侧还做了壁龛设计便于存放洗浴品。拉上浴帘就可以隔绝积水,干湿分离设计打扫方便。
客厅
室内仅剩的空间要做出客厅、卧室、餐厅功能。拉平吊顶,大面积的白墙非常适合小户型,实木地板、北欧风灰色沙发,搭配出来更显清爽耐看,圆形茶几减少磕碰颜值更高。适当深色墙漆的涂刷在客厅左侧从视觉上格局餐厅区。
推荐阅读
- 屋主|56㎡小户型老房改造,小而美的设计!
- 小钱|游点好笑!收手机的新方式,一抓一个准!这老师怕是柯南看多了?
- 公示|一处体育中心项目、一处小型口袋公园!市北两项目规划公示,配套升级
- 碧桂园|小城市的房住不炒,遇上返乡置业
- 小户型|发现丈夫赠人房产 妻子怒讨买房款
- 小房间|参观140㎡大婚房,朋友都夸餐边柜有档次,我却更喜欢主卧的飘窗
- 卫生间|什么才叫好户型?来看看这5个标准,你家房子符不符合?
- 修建|精选10套三层户型图纸,占地面积均不足百平,尤其适合新农村修建
- 楼层|对于买房选楼层,一旦你忽视这5件小事,就只能买到“垃圾楼层”
- 住房公积金|什么才叫好户型?来看看这5个标准,你家房子符不符合?
