洛阳市偃师区中医院|偃师这家医院要扩建啦!
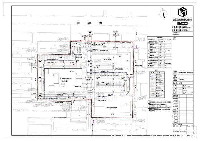
公示洛阳市偃师区中医院申请办理建设用地规划许可证,根据国家城乡规划有关法律、法规规定,现将有关事宜公示如下:一、项目单位洛阳市偃师区中医院二、项目名称洛阳市偃师区中医院扩建综合病房楼项目三、地块位置、范围、面积及性质该地块位于偃师区商都路南侧、和顺广场西,总用地面积16562.59平方米,净用地面积14118.82平方米,用地性质为医疗卫生用地。四、公示时间即日起七日五、监督电话偃师区自然资源和规划局:6777996967757085偃师区自然资源和规划局2021年9月7日


来源:掌上偃师
推荐阅读
- 深圳市|深圳市罗湖区中医院地块有所调整
- 变卖期|河南省洛阳市一85平房产将拍卖,以70万元起拍
- 河南省住房和城乡建设厅|洛阳市关于2021年第十四批房地产开发企业资质审查意见的公示
- 一拖|一拖股份136.3亩土地拟被洛阳市收储,补偿款5289.6万元
- 洛阳市|洛阳市关于2021年第十三批房地产开发企业资质审查意见的公示
- 大方中医院|众悦城红盘火热抢购中,这个楼盘真香
- 中医院|南昌县中医院中西医结合综合大楼新建工程设计方案公示
- 三亚市中医院|超强买房攻略!想知道三亚天涯区爱上山·梦想小镇都有啥?这就带你看
- 居然之家|洛阳市老城区举行重大项目建设暨第二期“三个一批”活动
- 东直门中医院|北京通州买新房攻略 品质楼盘推荐
