墙面|小户型难设计?看她如何将60㎡混搭小两居变得宽敞、时尚又温馨
今天齐家小灵儿给大家分享一套60平米的小户型两居室装修案例,整屋色调以沉稳的蓝色铺展开来,再以粉色和灰色搭配,呈现出一个宁静、祥和的舒适家居空间。
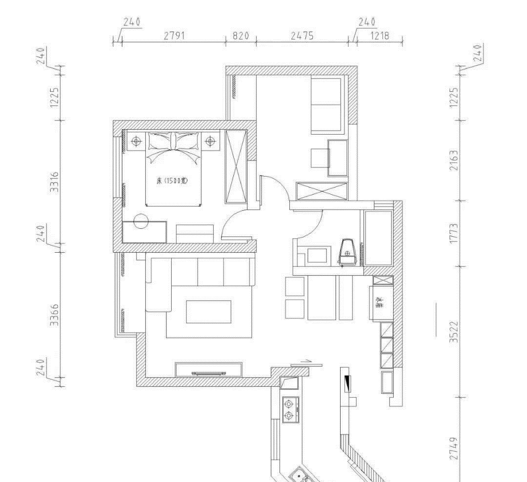
▲ 平面布局图玄 关
▲ 玄关空间很小,只在墙面上安装了几个挂钩,用来挂放包包、外套什么的。鞋子收纳的话,则安排在了餐厅的餐厅柜这边,正好挨着玄关,使用起来也比较方便。餐桌旁边的粉色谷仓门里头,是厨房空间。餐 厅
▲ 餐边柜做成了鞋柜+吊柜的一体式设计,吊柜下方的凹入式空间刚好用来摆放冰箱。
▲ 小小的胡桃木餐桌靠墙摆放,搭配上金属铁艺餐椅,轻奢时尚。墙面还做了两块置物隔板,用来摆放些装饰品,省得餐厅墙面过于单调。客 厅
▲ 餐厅的沙发墙和电视墙都涂刷了蓝色乳胶漆,整体给人一种沉静内敛的感觉。虽说客厅没有阳台只有飘窗,但好在飘窗面积还挺大,所以采光通风效果照样很好。
▲ 电视墙除了有胡桃木电视柜之外,还在墙面上有序对称的安装了几块一字型隔板,用来摆些鲜花绿植,或者其他装饰品,都再好不过了。
▲ 除了厨房和卫生间之外,其他空间通铺木地板,不仅脚感舒适,而且看起来也更加自然温馨。
▲ 蓝色的沙发墙上也安装了两个一字型隔板,L型灰色布艺沙发,搭配圆形原木组合茶几,简单精致。厨 房
▲ 厨房的瓷砖选用的很有意思,墙面运用浅灰色和浅粉色小瓷砖拼贴,地面搭配黑白灰三色的六角形地砖,不同颜色和形状的碰撞,让小小的厨房变得生动可爱了许多。卧 室
▲ 主卧室的床头背景墙就很夸张了,整面墙的黑白绿植壁纸,接受不了的勿选哦!
▲ 金属杆架式床铺,搭配橡皮粉床品和深蓝色床头柜,简单的几件物品,就让整个卧室都变得高级精致了许多。卫 生 间
▲ 卫生间采用了白色+粉色砖墙地一体设计,无论谁看了都少女心爆棚。而浴室柜则选择了沉稳的黑色+玫瑰金搭配,让卫浴空间柔软中带有一丝稳重,可盐可甜。齐家小灵儿提供更多装修资讯,喜欢我的朋友记得收藏和关注哦!(素材来源于网络,无法核实真实出处,如有侵权,请直接联系齐家小编删除。谢谢!)
推荐阅读
- 屋主|56㎡小户型老房改造,小而美的设计!
- 小钱|游点好笑!收手机的新方式,一抓一个准!这老师怕是柯南看多了?
- 公示|一处体育中心项目、一处小型口袋公园!市北两项目规划公示,配套升级
- 碧桂园|小城市的房住不炒,遇上返乡置业
- 小户型|发现丈夫赠人房产 妻子怒讨买房款
- 小房间|参观140㎡大婚房,朋友都夸餐边柜有档次,我却更喜欢主卧的飘窗
- 卫生间|什么才叫好户型?来看看这5个标准,你家房子符不符合?
- 修建|精选10套三层户型图纸,占地面积均不足百平,尤其适合新农村修建
- 楼层|对于买房选楼层,一旦你忽视这5件小事,就只能买到“垃圾楼层”
- 住房公积金|什么才叫好户型?来看看这5个标准,你家房子符不符合?
