收纳|60㎡简约风小户型,客厅藏张床打开秒变3居室,太机智了!( 二 )

上下铺的小楼梯还设计了储物功能,节约空间,而且使用很方便。
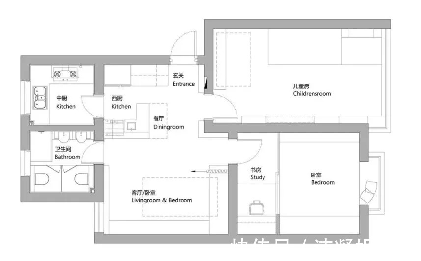
主卧采用榻榻米设计,整体上没有过多的装饰,而墙体也是采用隐藏式橱柜定制,大大增加了收纳空间。
床头的柜子留空设计,不仅能当床头柜使用,也让空间看起来更多层次感。卧室门后的纽扣衣挂,装饰空间的同时还能悬挂衣物。
飘窗与榻榻米相连,摆上手风琴式折叠茶几、坐垫打造成一个小休闲区,平时可以在这里休息喝茶,享受岁月静好。
主卧还隔出一个独立的书房,采用玻璃推拉门作为隔断,工作台同时还能当梳妆台使用,一举多得。
因为家里人口多,卫生间设计了双台盆,双马桶,同时拥有淋浴间,儿童浴缸及老人洗澡用的座位,最大限度地满足家庭成员的生活需求。
(本文由齐家安安整理编辑,图片来源于网络,如有侵权请告知我们删除!
推荐阅读
- 屋主|56㎡小户型老房改造,小而美的设计!
- 现代风|168㎡现代风,带着浓郁的归属感与愉悦感
- 深色|155㎡简约风,承载着三代人的生活,不花哨让家务少一半
- 混淆感|146㎡北欧经典白色三居室,诠释令人心醉的优雅
- 饱和度|173㎡轻奢新中式,古典和现代的碰撞,唯美浪漫!
- 背景墙|97㎡现代风,以时尚打造空间,以新颖突出特点
- 地板|160㎡四居室,玄关比我家卧室都大,这才是真正的低调奢华有内涵
- 棚户区改造|开盘预告|合肥又有6盘要加推,均价1.39-2.54万/㎡全都有
- 收纳|去邻居家参观才知道,卫生间不装柜子这样设计,防潮耐脏好清洁
- 小房间|参观140㎡大婚房,朋友都夸餐边柜有档次,我却更喜欢主卧的飘窗
