安阳市|安阳10月建设项目批后公告汇总,幼儿园、产业园、住宅用地……
【21年54号】新建安阳市二道街幼儿园(东区园)建设项目批后公告
项目名称:新建安阳市二道街幼儿园(东区园)项目位置:盖津路与TD37号路交叉口西南角建设规模:地上8846.27平方米,地下5033.4平方米建设单位:安阳市二道街幼儿园批准号:410502202100062号公告期限:建设项目规划核实合格后为止
【21年50号】安阳师范学院学生公寓和食堂项目建设项目批后公告
项目名称:安阳师范学院学生公寓和食堂项目4号5号6号7号学生公寓楼和2号学生食堂项目位置:弦歌大道与平原路交叉口西南安阳师范学院南校区内建设规模:地上114149.84平方米,地下8222.48平方米建设单位:安阳师范学院批准号:410502202100059号公告期限:建设项目规划核实合格后为止
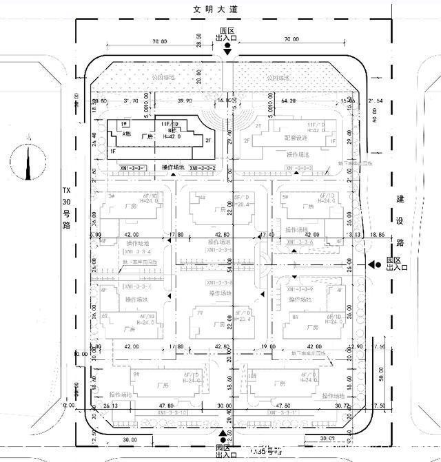
【21年53号】安阳市龙安区东风产业园项目(XN1-3-3-1地块)安阳市龙安区东风产业园项目(XN1-3-3-2地块)建设项目批后公告
项目名称:安阳市龙安区东风产业园项目(XN1-3-3-1地块)、安阳市龙安区东风产业园项目(XN1-3-3-2地块)项目位置:安阳市龙安区文明大道与建设路交叉口西南建设规模:(XN1-3-3-1地块)地上6111.54平方米,地下2127.61平方米;(XN1-3-3-2地块)地上6361.64平方米,地下2458.86平方米建设单位:河南省中润建设工程股份有限公司批准号:410506202100060号、410506202100061号公告期限:建设项目规划核实合格后为止
【21年49号】安阳市龙安区东风产业园项目(XN1-3-3-4地块)建设项目批后公告
项目名称:安阳市龙安区东风产业园项目(XN1-3-3-4地块)项目位置:安阳市龙安区文明大道与建设路交叉口西南角建设规模:地上5084.92平方米,地下2199.73平方米建设单位:安阳市纬地置业有限责任公司批准号:410506202100057号公告期限:建设项目规划核实合格后为止【21年51号】安阳万泉产业园项目建设项目批后公告
项目名称:安阳万泉产业园项目项目位置:弦歌大道与衡山大街交叉口西南建设规模:地上69618.26平方米,地下3994.38平方米建设单位:河南万泉园区管理服务有限公司批准号:410502202100058号公告期限:建设项目规划核实合格后为止
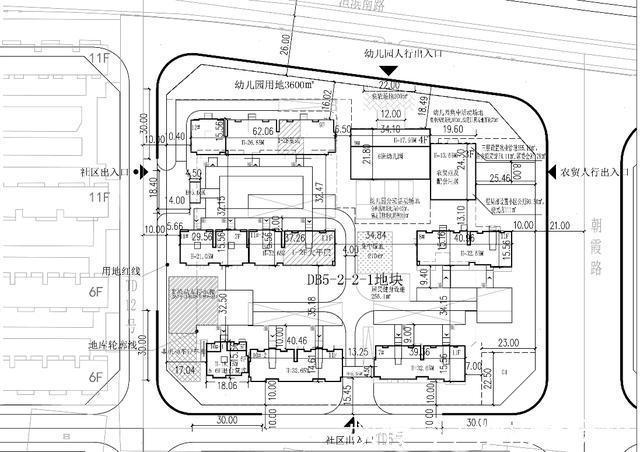
【21年52号】合泰臻园(DB5-2-2-1地块)建设项目批后公告
项目名称:合泰臻园(DB5-2-2-1地块)项目位置:安阳市北关区洹滨南路与朝霞路交叉口西南建设规模:地上39529.61平方米,地下17380.66平方米建设单位:安阳泰禾置业有限公司批准号:410503202100060号公告期限:建设项目规划核实合格后为止
【21年KG20号】安阳市DN4-2-14-2地块控制性详细规划批后公告
DN4-2-14-2地块位于安阳市文昌大道与盖津路(TD47号路)交叉口西北,规划总用地1.11公顷(约11100平方米),用地性质为消防用地、公园绿地;地块容积率小于1.0,建筑密度不得大于35%,建筑高度小于24米。
推荐阅读
- 提前还贷|10月起,贷款买房不可不知的5大潜规则,最后一个尤为关键
- 安阳|12×15米经典二层别墅,新年就盖这样的房
- 离婚|10月起,房产证写谁的“名字”,也不影响财产分配,再闹都没用
- 交易所|香港金管局:今年11月份新批出的按揭贷款额环比10月增加4.8%至514亿港元
- 按揭贷款|美国房价10月同比上涨近20%
- 庐山西海|2021年10月楼市月报:新房签约1789套,住宅成交环比持平
- 产权|10月起,有房产证的房子存在这5种情况时,很容易引发纠纷
- 地块|地产先锋|安阳示范区再增2宗商服用地,繁华商圈未来可期
- 住房公积金|兰州润兰之城破土动工 2024年10月前竣工入住
- 余额|个人住房贷款余额继续增加,较10月多增532亿
