户型|约3.2万/平!旁有主题公园+天际线!雅居乐湾际壹号备案价出炉!

乐居买房讯近日,位于马鞍岛的雅居乐北塔项目——雅居乐湾际壹号备案价出炉了!
中山发改局公布了雅居乐湾际壹号组团内的雅深花园与雅海花园共4幢的备案价格,其中雅深花园1幢,雅海花园3幢,备案价格在25878-31820元/㎡之间。(根据相关政策规定,实际销售价格高于备案价或下降的幅度超过15%的商品房,将无法进行网签)
雅深花园为一期2幢,合计有222套房源,从详细的表格中能看到,雅深花园楼层从2层开始,最高可达40层,建筑面积为81-119㎡二至三房,一层有6户,备案价区间为25878-30111元/㎡。

雅海花园一期1幢,合共有93套房源,一共有32层,基本为119㎡与143㎡两种户型,119㎡为三房两卫,143㎡为三房三卫,一层3户中,有2户为143㎡,1户为119㎡,备案价区间为27475-31677元/㎡。

雅海花园一期2幢,合共93套房源,一共有32层,基本为为119㎡与143㎡两种户型,备案价区间为27374-31820元/㎡。

雅海花园二期3幢,合共有95套房源,一共为32层,除了1层多了两户101与102,一期2幢没有1层户型,其他与一期2幢户型与面积基本一致,价格区间为27495-31697元/㎡。

从项目内部地块分布图来看,湾际壹号共有6块地块,拟会分为7大组团分期开发,目前本次开发的地块为G83地块,即雅海花园,本次出炉的备案价其中3幢就位于雅海花园,G79地块为雅深花园,图中最高的建筑物为预计建设为460米高的北塔项目。
我们靠近一点看雅海花园G83地块,1-5幢为滨水楼栋,具备一定的水景资源,本次备案的1/2/3幢就位于此处。6、7、8、10幢为沿路楼栋,序号9与序号10建筑物配建设施,预计为配套的12班幼儿园、室内泳池、羽毛球场等设施。
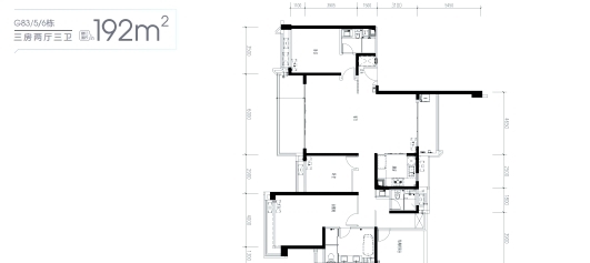
目前该项目的户型图也已经出炉,主推82-142㎡3-4房美宅,目前已经9月30日开放了营销中心,同时开启了优惠活动,认筹3千可抵3万元。




在2020年的7月7日,雅居乐以总价38.8亿,楼面地价4221.9元/平的价格,竞得翠亨新区368亩综合用地。
推荐阅读
- 屋主|56㎡小户型老房改造,小而美的设计!
- 深色|155㎡简约风,承载着三代人的生活,不花哨让家务少一半
- |一年涨了3成!纽约市一卧租金涨幅惊人
- 小户型|发现丈夫赠人房产 妻子怒讨买房款
- 卫生间|什么才叫好户型?来看看这5个标准,你家房子符不符合?
- 净利率|低盈利质量、票据违约,中南建设怎么了?
- 修建|精选10套三层户型图纸,占地面积均不足百平,尤其适合新农村修建
- 住房公积金|什么才叫好户型?来看看这5个标准,你家房子符不符合?
- 民营企业|小户型必看扩容6招,让家里每 1㎡ 都不浪费!
- 兰州|建面约10万㎡ 兰州鱼池口小商品批发市场“变身”住宅小区
